Bénéficiez des services de nos partenaires locaux soigneusement sélectionnés
pour vous accompagner dans votre parcours d'achat immobilier

Maison familiale individuelle – Terrain clos et arboré de 700 m² – Secteur résidentiel à Corbas

— Corbas 69960 —
410 000 €
137 m² / 700 m²
4 pièces
parkingbalcon/terrasse

Nos partenaires locaux
En exclusivité chez Liberkeys, découvrez cette maison familiale construite en 1973 d'une superficie de 137 m² habitables répartis sur deux niveaux. Elle se situe au sein d'un petit lotissement calme et recherché de la commune de Corbas, dans le Sud-Est de Lyon.
Un bien sain et fonctionnel, idéal pour une famille en quête d'espace, de verdure et de praticité au quotidien.

Cette maison se distingue par sa configuration modulable, qui peut répondre à plusieurs projets de vie :
Une famille souhaitant s'installer dans un environnement pavillonnaire calme, avec un grand jardin et de beaux volumes.
Un jeune couple recherchant une maison évolutive, capable de s'adapter aux différentes étapes de la vie.
Un projet mixte résidence principale / revenu complémentaire grâce à un rez-de-chaussée pouvant être aménagé en espace indépendant.

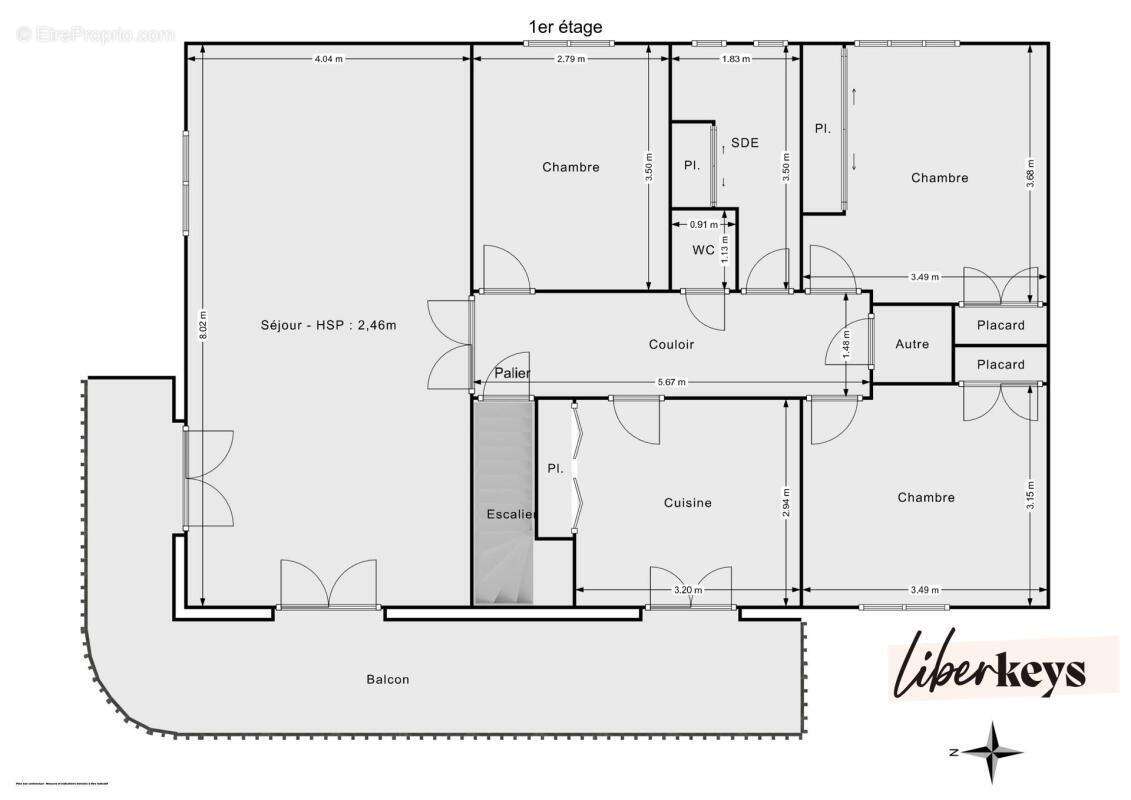
La maison s'organise aujourd'hui sur deux niveaux avec :
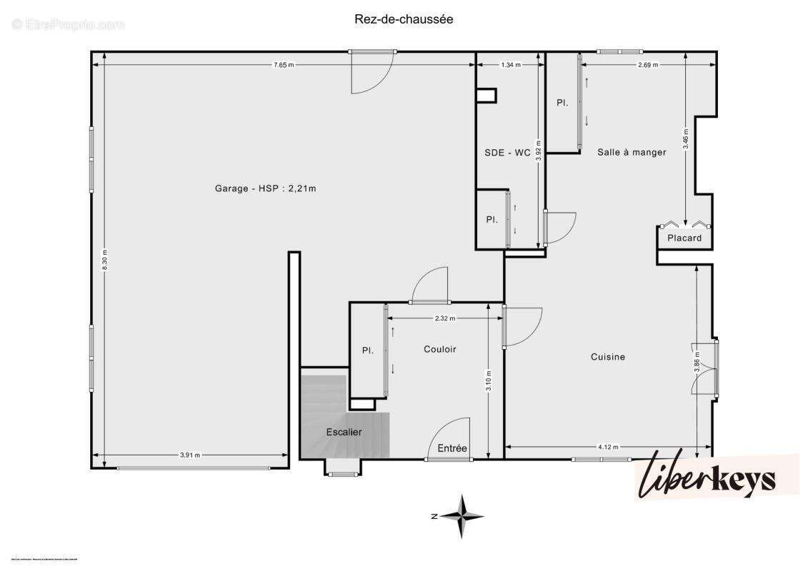
- au rez-de-chaussée : un espace comportant un coin salon et/ou chambre, une cuisine, une salle d'eau avec WC pouvant être utilisé comme appartement indépendant d'environ 43 m² (idéal pour accueillir un proche, un adolescent, une activité professionnelle ou envisager une location).
- à l'étage : une pièce de vie lumineuse, une cuisine séparée complètement équipée, 3 chambres confortables, une salle d'eau, des WC séparés.

Côté extérieur, vous serez également parfaitement lotis avec :
un terrain clos et arboré de 700 m² ;
Une terrasse protégée avec auvent d'environ 20 m² ;
Un grand balcon de 28 m² à l'étage accessible depuis le salon ;
Un abri de jardin et un abri bois.

Vous bénéficiez par ailleurs d'un grand garage intérieur de 52 m² avec porte motorisée ainsi que d'un garage extérieur supplémentaire. Vous pouvez également stationner plusieurs véhicules dans l'enceinte de la maison et dans les rues calmes du lotissement.

Confort & équipements techniques :
Fenêtre double vitrage avec volets manuels (motorisation possible) ;
Climatisation ;
Cheminée fonctionnelle ;
Fibre optique ;
Cumulus 200 L remplacé il y a 3 ans ;
Ravalement de façade avec isolation par l'extérieur réalisé en 2019 ;
Isolation du plafond du garage ;
Toiture révisée et panneaux solaires installés il y a environ 15 ans, générant environ 2 400 € d'économies par an.

Côté localisation :
Quartier pavillonnaire agréable, ambiance familiale et conviviale ;
Écoles, structures sportives et commerces de proximité accessibles à pied ;
Lignes de bus TCL juste à côté ;
Accès rapides vers Lyon via A43, A46 et Rocade Est ;
Aéroport Lyon Saint-Exupéry à moins de 20 minutes.

Infos pratiques :
Lotissement de 16 lots ;
Charges d'environ 80 €/an (paiement en 2 fois) ;
Taxe foncière 2025 de 1 252 € ;
DPE C - GES B ;
Honoraires à la charge du vendeur.

Visite virtuelle pour découvrir chaque recoin de la maison depuis chez vous ! Et si cette navigation en ligne a conforté votre intérêt, contactez directement l'agent commercial Solenne Legros (immatriculé au RSAC de Lyon sous le numéro 534 710 173) pour davantage d'informations et visiter ce bien sans plus tarder !​

Liberkeys, vous ne connaissez pas encore ? C'est votre agence immobilière, en mieux
Voir plus

Référence: DOM20894
Bien en copropriété. Nombre de lots : 16. Charges de copropriété : 6 €.
Honoraires à la charge du vendeur.
DPE
A
B
C
D
E
F
G
GES
A
B
C
D
E
F
G
Maison à CORBAS
Maison à CORBAS
Maison à CORBAS
Maison à CORBAS
Maison à CORBAS
Maison à CORBAS
Maison à CORBAS
Maison à CORBAS
Maison à CORBAS
Maison à CORBAS
Maison à CORBAS
Maison à CORBAS
Maison à CORBAS
Géorisques

Les informations sur les risques auxquels ce bien est exposé sont disponibles sur le site Géorisques : www.georisques.gouv.fr

Ce site est protégé par hCaptcha Politique de confidentialité et Conditions d’utilisation s’appliquent.

En poursuivant votre navigation sans modifier vos paramètres, vous acceptez l'utilisation de cookies susceptibles de réaliser des statistiques de visite. Cliquez ici pour plus d'informations