Bénéficiez des services de nos partenaires locaux soigneusement sélectionnés
pour vous accompagner dans votre parcours d'achat immobilier

A vendre SAINTE SAVINE, maison 6 pièces de 132m2 - 3 chambres - Terrain 280m2

— Sainte-Savine 10300 —
205 000 €
132 m²
6 pièces
parking

Nos partenaires locaux
Baisse de prix : Une maison de caractère où l’ancien rencontre le confort d’aujourd’hui.

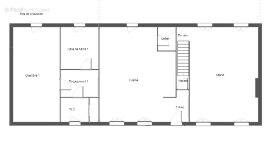
Derrière sa façade en pierres et briques, cette maison de 132 m2 raconte une histoire… celle d’un lieu rénové avec soin, où le charme d’hier s’accorde parfaitement avec une ambiance intérieure moderne et chaleureuse.

Dès l’entrée, on découvre une cuisine indépendante équipée, un cellier discret, puis une belle pièce de vie baignée de lumière, propice aux moments partagés. Un espace bureau, un espace buaderie (à personnaliser selon vos envies en salle d'eau) et des toilettes indépendantes complètent ce niveau.

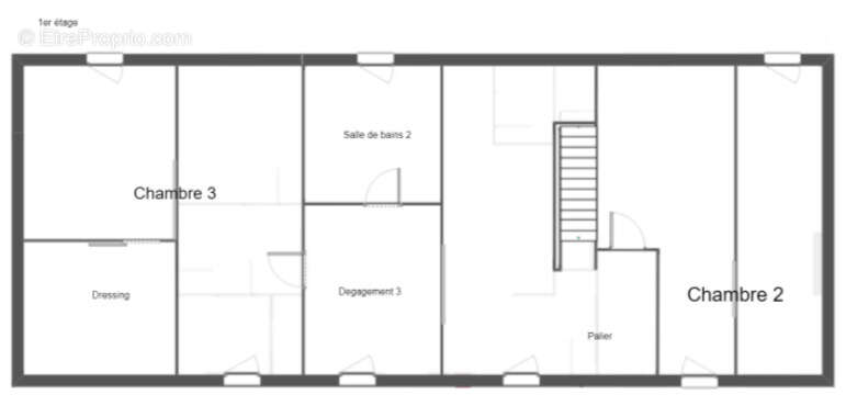
À l’étage, l’atmosphère devient plus intime : un pallier avec rangements, deux chambres et une salle de bains avec WC, parfait pour créer un espace totalement independant.

Et puis, il y a ce petit plus qui fait toute la différence…Un studio indépendant, accessible par escalier, avec sa salle d’eau et WC. Idéal pour un adolescent en quête d’autonomie, pour recevoir, ou pour imaginer un projet locatif type Airbnb, grâce à son entrée séparée.

À l’extérieur, un jardin avec dépendance invite aux instants de calme, aux projets et aux saisons qui passent.Garage, cave, chauffage gaz, système de filtration d'eau, DPE D : tout est là pour conjuguer charme et confort au quotidien.

Une maison pleine d’âme, prête à accueillir une nouvelle histoire. Peut-être la vôtre…

DPE : D (Estimation des coûts annuels d'énergie du logement entre 2280 € et 3140 € par an)

Taxe foncière : 1900 € par an.

Prix de vente : 205.000 € FAI ( Frais Agence Inclus charge vendeur).

Pour la visiter, contactez Alexandre COSTUMÉ au [Coordonnées masquées]

L'information d'affichage énergétique sur ce bien : classe ENERGIE : D indice 195 et classe CLIMAT : D indice 34. Les informations sur les risques auxquels ce bien est exposé, y compris l'obligation légale de débroussaillement, sont disponibles sur le site Géorisques : www.georisques.gouv.fr.

La présente annonce immobilière a été rédigée sous la responsabilité éditoriale de Mr COSTUME Alexandre, mandataire indépendant en immobilier (sans détention de fonds), agent commercial de la SAS Bien Chez Soi immatriculée au RSAC de TROYES sous le numéro 799326319, titulaire de la carte de démarchage immobilier pour le compte de la société Bien Chez Soi SAS
Voir plus

Honoraires à la charge du vendeur.
Barème des honoraires
DPE
A
B
C
D
E
F
G
GES
A
B
C
D
E
F
G
Maison à SAINTE-SAVINE
Maison à SAINTE-SAVINE
Maison à SAINTE-SAVINE
Maison à SAINTE-SAVINE
Maison à SAINTE-SAVINE
Maison à SAINTE-SAVINE
Maison à SAINTE-SAVINE
Maison à SAINTE-SAVINE
Maison à SAINTE-SAVINE
Maison à SAINTE-SAVINE
Maison à SAINTE-SAVINE
Maison à SAINTE-SAVINE
Maison à SAINTE-SAVINE
Maison à SAINTE-SAVINE
Maison à SAINTE-SAVINE
Maison à SAINTE-SAVINE
Maison à SAINTE-SAVINE
Maison à SAINTE-SAVINE
Maison à SAINTE-SAVINE
Géorisques

Les informations sur les risques auxquels ce bien est exposé sont disponibles sur le site Géorisques : www.georisques.gouv.fr

Ce site est protégé par hCaptcha Politique de confidentialité et Conditions d’utilisation s’appliquent.

En poursuivant votre navigation sans modifier vos paramètres, vous acceptez l'utilisation de cookies susceptibles de réaliser des statistiques de visite. Cliquez ici pour plus d'informations