Vente Maison 6 pièces de 124m² - 24700 Le Pizou

— Le Pizou 24700 —
88 000 €
124 m² / 14 800 m²
6 pièces
jardin

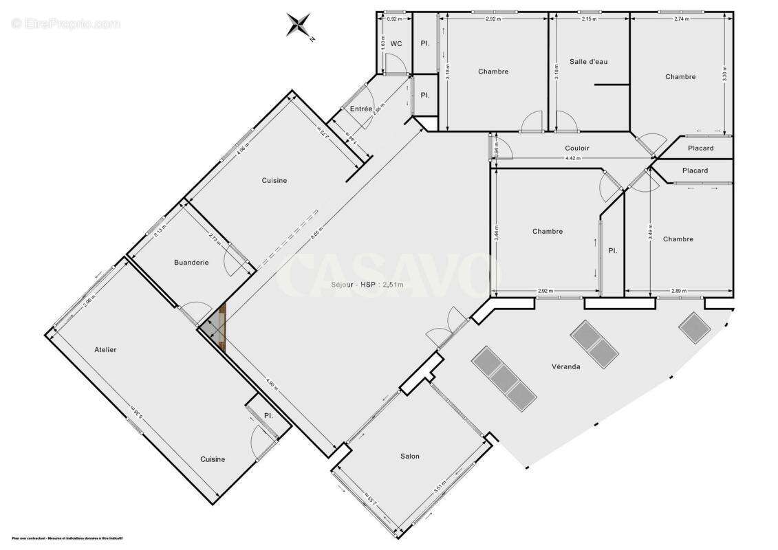
Casavo vous propose à la vente, en viager occupé sur 2 têtes, cette maison de 6 pièces de 124.0 m² localisée en Dordogne limite Gironde ( proximité de Saint Seurin Sur l'Isle et de sa gare pour Bordeaux).

Edifié sur 1ha48a au cadastre, il se compose d'un séjour avec terrasse sur Jardin, d'une cuisine US, de 4 chambres, d'une salle d'eau, cellier, arrière cuisine ou suite parentale possible, d'un WC séparé, terrasse. De nombreuses dépendances complètent ce bien. Un accès indépendant vous laissera le loisir d'utiliser le terrain

Orienté Sud , il dispose d'un système de chauffage pompe à chaleur et de doubles vitrages sur l'ensemble des fenêtres.

Bouquet:80 000euros Rente:440euros/mois
Frais d'agence: 8000 euros à charge acquéreur soit 88 000 euros frais d'agence inclus
Ages des propriétaires: 74 et 75 ans
Taxe foncière : 851€ par an

Ce bien est commercialisé par Casavo.

Intéressé par ce bien ? Plus d'informations sur le site de Casavo.
Voir plus

Référence: 51178
Honoraires à la charge du vendeur.
DPE
A
B
C
D
E
F
G
GES
A
B
C
D
E
F
G
Maison à LE PIZOU
Maison à LE PIZOU
Maison à LE PIZOU
Maison à LE PIZOU
Maison à LE PIZOU
Maison à LE PIZOU
Maison à LE PIZOU
Maison à LE PIZOU
Maison à LE PIZOU
Géorisques

Les informations sur les risques auxquels ce bien est exposé sont disponibles sur le site Géorisques : www.georisques.gouv.fr

Ce site est protégé par hCaptcha Politique de confidentialité et Conditions d’utilisation s’appliquent.