Appartement 25 m² à Grenoble

— Grenoble 38100 —
55 000 €
25 m²
2 pièces
ascenseuraccès handicapé

STUDIO POUR INVESTISSEUR DE 25m² - L'AGENCE AUBRETON / Peggy BOUYOUD, Agent Commercial en immobilier O6.51.25.O9.6O (n°RSAC de Vienne 889 737 409) vous propose à la vente sur :

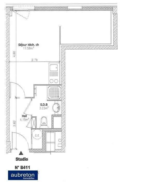
GRENOBLE Rue Guy Môquet, ce grand studio de 25m² avec un coin nuit séparé par une demi cloison de la pièce de vie et pouvant être fermé par simple ajout d'un bloc porte.
Vente avec locataire en place depuis Août 2023.

L'appartement se compose d'un hall d'entrée avec placard de 4.19 m², d'une salle de bains avec wc et douche de 3.23m², d'une kitchenette ouverte sur la pièce de vie et d'un coin nuit fermé par une demi cloison de 17.58m². Deux fenêtres en double vitrage.
Immeuble de 15 ans avec ascenseur et local vélo. Faibles charges de copropriété.
Tavaux de réfection d'étanchéité de la couverture votés et financés par le vendeur.
Chauffage et eau chaude individuel électrique. Eau froide collective.
La note énergétique est en C avec une consommation de 473 à 640 € par an pour le chauffage.
Le bien est disponible.

Loué 334 € hors charges et 36 € de provisions pour charges.
Taxe foncière 2025 de 993 € comprenant les ordures ménagères.
Charges 670 € par an dont 463 € récupérables au locataire.

Écoles à proximité : Institut d'urbanisme et de Géographie Alpine, Ecole nationale supérieure d'architecture, Institut des métiers et techniques et le Lycée hôtelier Lesdiguières - Site Clos d'or
Transports à proximité : Tram A à proximité et Bus C3 et C5. Le bien est soumis au statut de la copropriété , la copropriété comporte 1 lots , la quote-part budget prévisionnel (dépenses courantes) est de 670,00 euros/an.
Honoraires à la charge du vendeur. Le bien est à vendre par l'intermédiaire de l'agent commercial Peggy BOUYOUD. Montant estimé des dépenses annuelles d'énergie pour un usage standard : entre 390 et 590 euros. Prix moyens des énergies indexés en 2023. Les informations sur les risques auxquels ce bien est exposé sont disponibles sur le site Géorisques : https://www.georisques.gouv.fr
Voir plus

Référence: 1696PBDA
DPE
A
B
C
D
E
F
G
GES
A
B
C
D
E
F
G
Appartement à GRENOBLE
Appartement à GRENOBLE
Appartement à GRENOBLE
Appartement à GRENOBLE
Appartement à GRENOBLE
Appartement à GRENOBLE
Appartement à GRENOBLE
Appartement à GRENOBLE
Appartement à GRENOBLE
Appartement à GRENOBLE
Appartement à GRENOBLE
Appartement à GRENOBLE
Appartement à GRENOBLE
Appartement à GRENOBLE
Appartement à GRENOBLE
Appartement à GRENOBLE
Appartement à GRENOBLE
Appartement à GRENOBLE
Géorisques

Les informations sur les risques auxquels ce bien est exposé sont disponibles sur le site Géorisques : www.georisques.gouv.fr

Ce site est protégé par hCaptcha Politique de confidentialité et Conditions d’utilisation s’appliquent.

En poursuivant votre navigation sans modifier vos paramètres, vous acceptez l'utilisation de cookies susceptibles de réaliser des statistiques de visite. Cliquez ici pour plus d'informations