Bénéficiez des services de nos partenaires locaux soigneusement sélectionnés
pour vous accompagner dans votre parcours d'achat immobilier

Voir tous les partenaires locaux

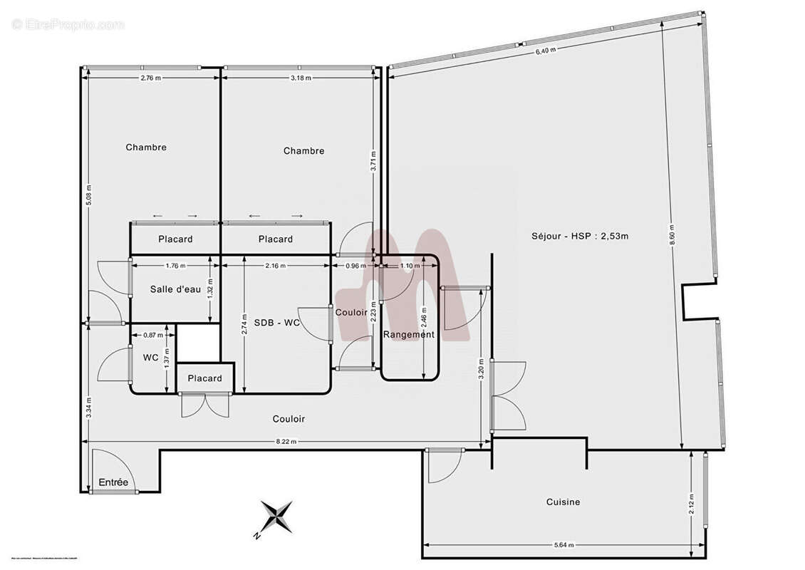
Appartement 108 m² à Paris-15e

— Paris-15e 75015 —
995 000 €
108 m²
5 pièces
parkingascenseur

Nos partenaires locaux
Matera vous propose en exclusivité ce bel appartement 5 pièces baigné de lumière, à deux pas du pont Mirabeau.

Situé en étage élevé au sein d'une grande et belle copropriété 1975, venez découvrir cet agréable appartement composé d'une belle entrée avec placards, triple séjour (possibilité d'y refaire la 3ème chambre), cuisine aménagée et équipée (possibilité US), deux chambres avec placards, un dressing, une salle de bains avec WC, une salle d'eau et un WC séparé.

Appartement à rafraîchir, offrant de vastes volumes et un très beau potentiel.

Exposé sud, sud-est et sud-ouest, vous profiterez d'une luminosité constante tout au long de la journée, avec une vue imprenable sur les toits de Paris et sur la Seine, majoritairement sans vis-à-vis et à proximité immédiates de nombreux commerces :
- Centre commercial Beaugrenelle : 2 minutes à pied.
- Transports : métro Javel (ligne 10) et RER C à 3 minutes à pied.
- Nombreux commerces de proximité : Monoprix, Auchan, pharmacie, boulangerie... à 5 minutes.
- Nombreux restaurants et terrasses à moins de 10 minutes à pied.

Résidence confort, sécurisée avec gardien 24h/24, sécurité incendie. Chauffage urbain CPCU
Ascenseurs
Ravalement effectué en 2024.
Charges : 750€/mois, comprenant : eau froide, eau chaude, chauffage, entretien, ascenseur, gardien.

Une cave complète ce bien.
Possibilité de reprendre la location de la place de parking en sous-sol dans l'immeuble, accessible par ascenseur.

Taxe foncière 2024 : 2.604 €.

Dans une copropriété de 544 lots. Quote-part moyenne du budget prévisionnel 9 544 €/an. Aucune procédure n'est en cours. Classe énergie D, Classe climat D Montant estimé des dépenses annuelles d'énergie pour un usage standard : entre 1.00 € et 2.00 € sur les années 2021, 2022 et 2023 (abonnements compris). Les informations sur les risques auxquels ce bien est exposé sont disponibles sur le site Géorisques : georisques.gouv.fr.

Votre conseiller Matera : Pantéa Shafa
Agent commercial (Entreprise individuelle)
Voir plus

Référence: 27-MATERA75
Bien en copropriété. Nombre de lots : 544. Charges de copropriété : 9544 €.
Honoraires à la charge de l'acquéreur.
DPE
A
B
C
D
E
F
G
GES
A
B
C
D
E
F
G
Appartement à PARIS-15E
Appartement à PARIS-15E
Appartement à PARIS-15E
Appartement à PARIS-15E
Appartement à PARIS-15E
Appartement à PARIS-15E
Appartement à PARIS-15E
Appartement à PARIS-15E
Appartement à PARIS-15E
Géorisques

Les informations sur les risques auxquels ce bien est exposé sont disponibles sur le site Géorisques : www.georisques.gouv.fr

Ce site est protégé par hCaptcha Politique de confidentialité et Conditions d’utilisation s’appliquent.