Bénéficiez des services de nos partenaires locaux soigneusement sélectionnés
pour vous accompagner dans votre parcours d'achat immobilier

Voir tous les partenaires locaux

Appartement avec terrasse et vue sublime

— Marseille-8e 13008 —
599 000 €
87 m²
3 pièces
parkingbalcon/terrasse

Nos partenaires locaux
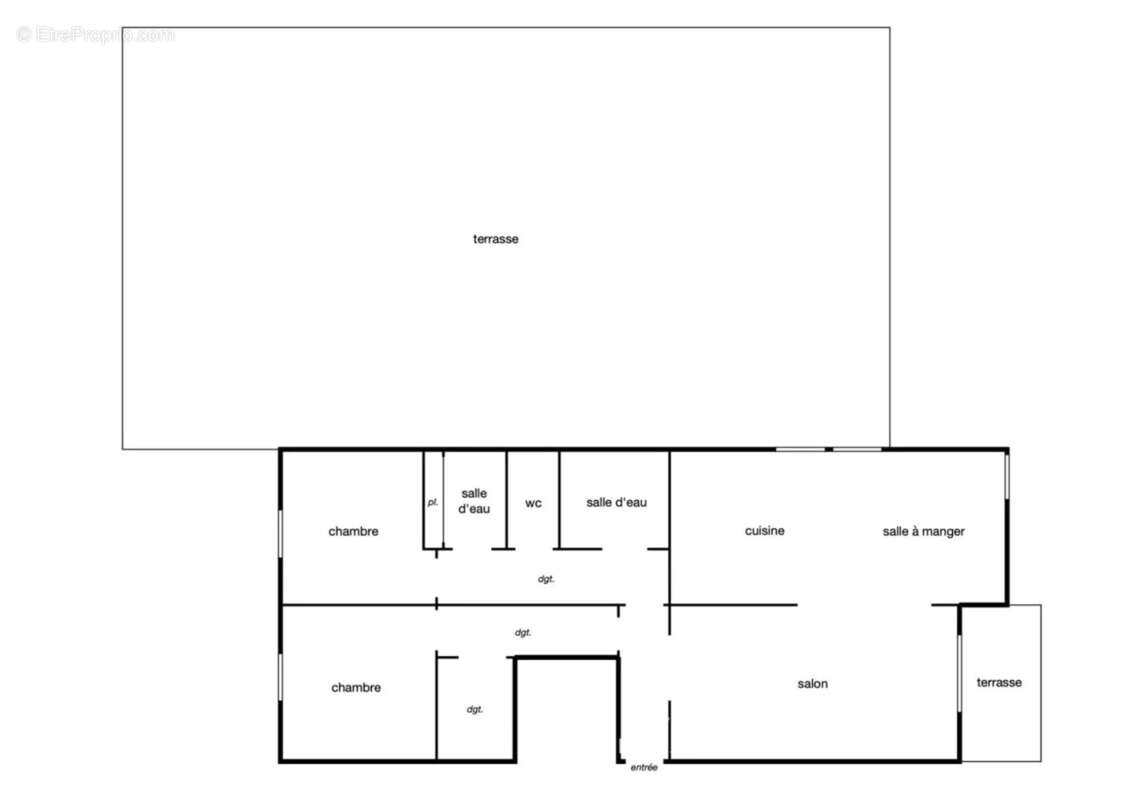
Appartement 3 piècesde 87 m2 situé au cœur de la prestigieuse résidence de la Cadenelle. Il bénéficie d’une exceptionnelle terrasse de 67 m2 orientée est-ouest, offrant une vue dégagée sur la ville et la mer.
L’entrée mène, d’un côté, à un vaste salon lumineux ouvrant sur un balcon de 7,5 m2 avec jolie vue mer, et de l’autre, à une cuisine ouverte sur la salle à manger. Ces pièces de vie communiquent de plain-pied avec la grande terrasse, idéale pour profiter des beaux jours et admirer des panoramas splendides.
L’espace nuit se compose d’une chambre avec dressing, de toilettes séparées, d’une salle de bains, ainsi que d’une seconde chambre avec rangements.
Situé au 8eme étage, l’appartement dispose également d’un parking et d’une cave.
La résidence offre des prestations rares : gardiennage 24h/24, piscine chauffée, restaurants, supérette, tennis, piscines et un superbe parc de 15 hectares parfaitement entretenu. Les charges comprennent ces prestations ainsi que l'eau chaude, le chauffage collectif et la climatisation.
Un cadre de vie exceptionnel, alliant confort, sécurité et loisirs, à découvrir sans tarder !
Contact ml de Bryas [Coordonnées masquées]
Voir plus

Référence: 2126b
Bien en copropriété. Nombre de lots : 2140. Charges de copropriété : 5400 €.
Honoraires à la charge du vendeur.
Barème des honoraires
DPE
A
B
C
D
E
F
G
GES
A
B
C
D
E
F
G
Appartement à MARSEILLE-8E
Appartement à MARSEILLE-8E
Appartement à MARSEILLE-8E
Appartement à MARSEILLE-8E
Appartement à MARSEILLE-8E
Appartement à MARSEILLE-8E
Appartement à MARSEILLE-8E
Appartement à MARSEILLE-8E
Appartement à MARSEILLE-8E
Appartement à MARSEILLE-8E
Appartement à MARSEILLE-8E
Appartement à MARSEILLE-8E
Appartement à MARSEILLE-8E
Appartement à MARSEILLE-8E
Appartement à MARSEILLE-8E
Appartement à MARSEILLE-8E
Appartement à MARSEILLE-8E
Appartement à MARSEILLE-8E
Appartement à MARSEILLE-8E
Appartement à MARSEILLE-8E
Appartement à MARSEILLE-8E
Appartement à MARSEILLE-8E
Géorisques

Les informations sur les risques auxquels ce bien est exposé sont disponibles sur le site Géorisques : www.georisques.gouv.fr

Ce site est protégé par hCaptcha Politique de confidentialité et Conditions d’utilisation s’appliquent.

En poursuivant votre navigation sans modifier vos paramètres, vous acceptez l'utilisation de cookies susceptibles de réaliser des statistiques de visite. Cliquez ici pour plus d'informations