Maison à vendre Rayol Canadel sur Mer

— Rayol-Canadel-Sur-Mer 83820 —
975 000 €
126 m² / 430 m²
6 pièces
parkingjardin

Rayol-Canadel-sur-Mer – Maison de caractère rénovée avec vue mer

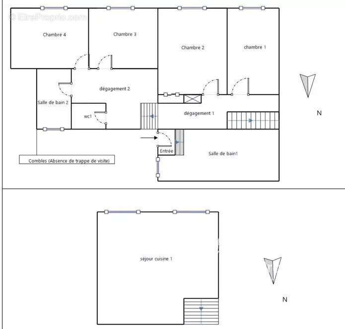
Au cœur du village du Rayol-Canadel-sur-Mer, découvrez cette maison de caractère à la vue mer, entièrement rénovée avec soin, développant une surface habitable d’environ 127 m². Elle conjugue avec harmonie prestations modernes et charme authentique, dans un cadre de vie recherché.

Au niveau principal, une entrée mène à l’espace nuit comprenant trois chambres, un bureau ou dressing, une salle d’eau, un toilette indépendant ainsi qu’une salle de bains avec toilettes, offrant un confort optimal au quotidien.

En contrebas, quelques marches conduisent à une cuisine entièrement équipée et aménagée, ouverte sur un salon-séjour lumineux. Cet espace de vie s’ouvre directement sur une agréable terrasse, idéale pour les repas en extérieur, dotée d’un coin barbecue et d’un espace détente, parfait pour partager des moments conviviaux en famille ou entre amis.

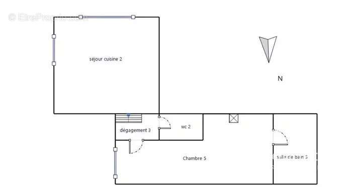
La propriété dispose également d’un appartement indépendant, idéal pour recevoir ou pour un projet locatif. Il se compose d’un séjour avec cuisine ouverte entièrement équipée, d’une chambre, d’une salle d’eau avec coin laverie, de toilettes séparées et d’une terrasse privative.

Édifiée sur un terrain d’environ 460 m², la maison bénéficie de plusieurs emplacements de stationnement sécurisés.

Un bien rare, alliant modernité, authenticité et vue mer, situé au cœur d’un village typique et prisé du littoral varois.

Pour plus d’informations ou pour organiser une visite, contactez Marie PENNA au [Coordonnées masquées].

Les informations sur les risques auxquels ce bien est exposé sont disponibles sur le site Géorisques : www.georisques.gouv.fr
Voir plus

Référence: 83596876
Barème des honoraires
DPE
A
B
C
D
E
F
G
GES
A
B
C
D
E
F
G
Maison à RAYOL-CANADEL-SUR-MER
Maison à RAYOL-CANADEL-SUR-MER
Maison à RAYOL-CANADEL-SUR-MER
Maison à RAYOL-CANADEL-SUR-MER
Maison à RAYOL-CANADEL-SUR-MER
Maison à RAYOL-CANADEL-SUR-MER
Maison à RAYOL-CANADEL-SUR-MER
Maison à RAYOL-CANADEL-SUR-MER
Maison à RAYOL-CANADEL-SUR-MER
Maison à RAYOL-CANADEL-SUR-MER
Maison à RAYOL-CANADEL-SUR-MER
Maison à RAYOL-CANADEL-SUR-MER
Maison à RAYOL-CANADEL-SUR-MER
Maison à RAYOL-CANADEL-SUR-MER
Maison à RAYOL-CANADEL-SUR-MER
Maison à RAYOL-CANADEL-SUR-MER
Maison à RAYOL-CANADEL-SUR-MER
Maison à RAYOL-CANADEL-SUR-MER
Maison à RAYOL-CANADEL-SUR-MER
Maison à RAYOL-CANADEL-SUR-MER
Maison à RAYOL-CANADEL-SUR-MER
Maison à RAYOL-CANADEL-SUR-MER
Maison à RAYOL-CANADEL-SUR-MER
Maison à RAYOL-CANADEL-SUR-MER
Maison à RAYOL-CANADEL-SUR-MER
Géorisques

Les informations sur les risques auxquels ce bien est exposé sont disponibles sur le site Géorisques : www.georisques.gouv.fr

Ce site est protégé par hCaptcha Politique de confidentialité et Conditions d’utilisation s’appliquent.

En poursuivant votre navigation sans modifier vos paramètres, vous acceptez l'utilisation de cookies susceptibles de réaliser des statistiques de visite. Cliquez ici pour plus d'informations