Bénéficiez des services de nos partenaires locaux soigneusement sélectionnés
pour vous accompagner dans votre parcours d'achat immobilier

Voir tous les partenaires locaux

Superbe Appartement village Passy 177m2, 3/4CH profession libérale

— Paris-16e 75016 —
2 100 000 €
177 m²
5 pièces
ascenseur

Nos partenaires locaux
Votre déménageur
Déménagement national ou international ? Bénéficiez d'un accompagnement sur mesure à chaque étape.
04 78 97 33 43 ou cliquez-ici
Votre assurance emprunteur
Faites appel à Denis pour vous accompagner dans votre assurance de prêt
06 09 24 11 24 ou cliquez-ici
Votre déménageur local
Simplifiez vous la vie ! Déménagement, Monte-meuble, Vente de matériel et Débarras sur toute l'Ile de France !
01 44 90 02 18 ou cliquez-ici
Votre concepteur créateur
Notre savoir faire vous assure une vrai expertise pour la conception de vos espaces de vie : dressings, cuisines, ect.
01 84 14 66 65 ou cliquez-ici
Votre diagnostiqueur
Nous vous proposons différentes prestations : DPE , diagnostic amiante avant démolition, plomb , termites , gaz etc...
06 17 91 48 19 ou cliquez-ici
Votre déménageur local
Vous apporte sérénité et professionnalisme depuis vos inventaires jusqu’au déballage et à l’installation. Contact au :
01 40 11 90 90 ou cliquez-ici

Voir tous les partenaires locaux

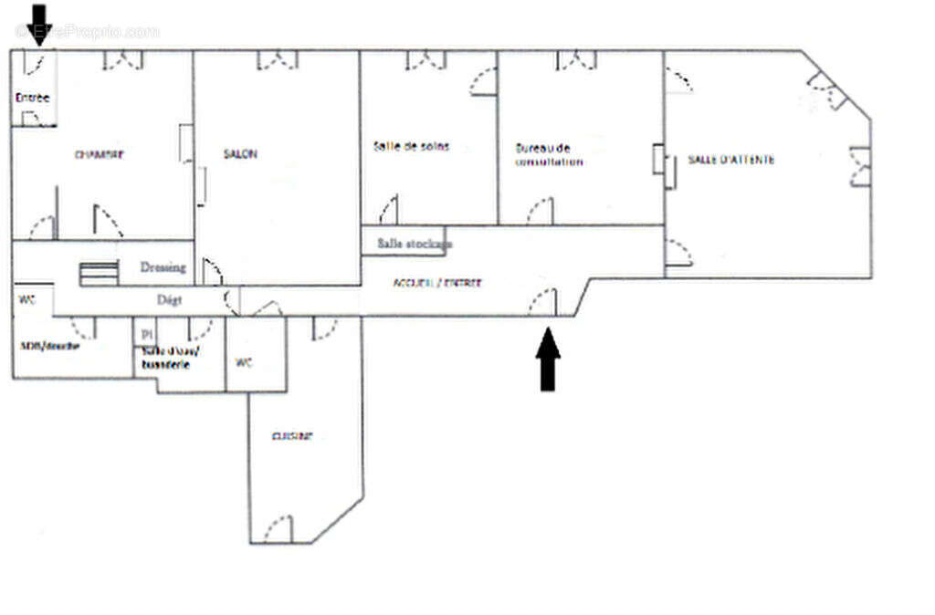
Guy Hoquet Prestige présente au coeur du Village Passy un magnifique appartement de 177m2 actuellement à usage mixte d'appartement privé et de profession libérale (accès PMR). Cet appartement sublimement refait par architecte dispose de magnifiques volumes , une hauteur sous plafond de 3,11m et de 2 entrées différentes. Le bien se compose d'une galerie d'entrée, d'un double séjour de 31m2 d'une cuisine dinatoire indépendante neuve, de 3 chambres et une suite parentale avec sa salle d'eau et son dressing et une hauteur sous plafond exceptionnelle de 3,5m, d'une salle d'eau et d'une lingerie. Le bien est situé idéalement à proximité des commerces et transports en commun. L'appartement est vendu avec une cave. A voir rapidement. Taxe foncière : 2490 euros Ch : 4740 euros Honoraires ch acq 5% (5.00 % honoraires TTC à la charge de l'acquéreur.) Copropriété de 55 lots - dont 15 lots habitation. Charges annuelles : 4740 euros.
Voir plus

Bien en copropriété. Nombre de lots : 55. Charges de copropriété : 4740 €.
Honoraires d'agence de 5% à la charge de l'acquéreur
Appartement à PARIS-16E
Appartement à PARIS-16E
Appartement à PARIS-16E
Appartement à PARIS-16E
Appartement à PARIS-16E
Appartement à PARIS-16E
Appartement à PARIS-16E
Appartement à PARIS-16E
Appartement à PARIS-16E
Appartement à PARIS-16E
Appartement à PARIS-16E
Appartement à PARIS-16E
Appartement à PARIS-16E
Géorisques

Les informations sur les risques auxquels ce bien est exposé sont disponibles sur le site Géorisques : www.georisques.gouv.fr

Ce site est protégé par hCaptcha Politique de confidentialité et Conditions d’utilisation s’appliquent.

En poursuivant votre navigation sans modifier vos paramètres, vous acceptez l'utilisation de cookies susceptibles de réaliser des statistiques de visite. Cliquez ici pour plus d'informations