Bénéficiez des services de nos partenaires locaux soigneusement sélectionnés
pour vous accompagner dans votre parcours d'achat immobilier

À Vendre I Marseille Les Camoins I Maison de village I T5 en R+2 I Garage spacieux

— Marseille-11e 13011 —
299 000 €
188 m²
5 pièces
parkingbalcon/terrasse

Nos partenaires locaux
1894 - L'Immobilier - Agence Immobilière Marseille vous propose cette maison de village à rénover pleine de charme, idéalement située au cœur du village des Camoins, dans un cadre calme et proche de toutes les commodités.

Avec ses trois niveaux et un grand garage de 43,5 m², elle offre un fort potentiel pour un projet familial ou un investissement locatif.

Un espace de vie modulable et lumineux, élevée sur trois niveaux, cette maison dispose de volumes généreux qui permettent de personnaliser chaque étage selon vos envies.

Le rez-de-chaussée, comprend une grande entrée, une cuisine indépendante avec balcon, une chambre, un WC et l'accès au garage par des escaliers.

Au premier étage, vous trouverez deux chambres, un dressing fonctionnel et une salle d'eau avec WC.

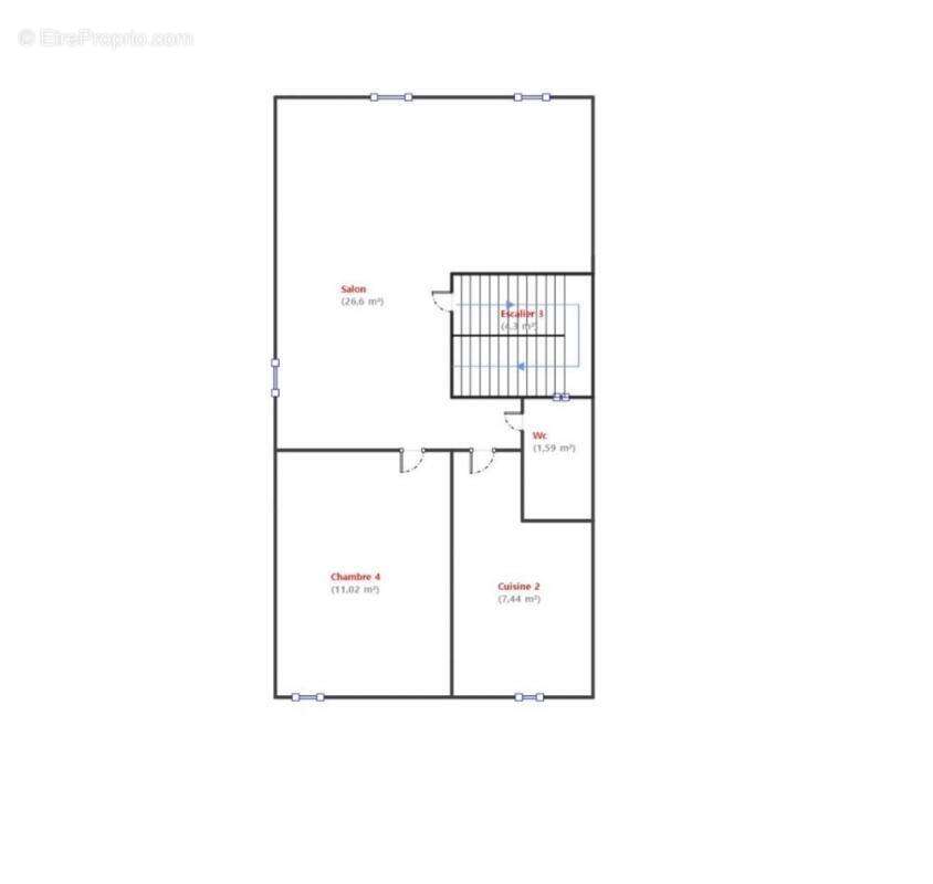
Le deuxième étage, propose un séjour spacieux et lumineux avec climatisation réversible, une cuisine, une chambre et un WC, offrant un espace de vie agréable avec une jolie vue dégagée.

Contactez-nous dès aujourd'hui pour organiser une visite et découvrir tout le potentiel de cette maison.

Surface habitable: 135,97m2
Surface au sol: 188,96m2

Estimation des coûts annuels d'énergie pour un usage standard: entre 2990 € et 4110 € par an.
Prix moyens des énergies indexés sur les années 2021,2022,2023
Les informations sur les risques auxquels ce bien est exposé sont disponibles sur le site Géorisques : www.georisques.gouv.fr

Contact: Lucile Toufet-EI- Chef de Projet Immobilier [Coordonnées masquées]
Agent commercial en immobilier enregistré au RSAC du greffe de Marseille sous le n° 888 918 190 titulaire de la carte de démarchage immobilier pour le compte de la société 1894-L'immobilier.
Honoraires charge vendeur
La présente annonce a été rédigée sous la responsabilité éditoriale de l'agent commercial en contact.
Selon l'article L.561.5 du Code Monétaire et Financier, pour l'organisation de la visite, la présentation d'une pièce d'identité vous sera demandée.
Référence agence : 14497
Voir plus

Référence: EN7R-DFK-225
Honoraires à la charge du vendeur.
DPE
A
B
C
D
E
F
G
GES
A
B
C
D
E
F
G
Maison à MARSEILLE-11E
Maison à MARSEILLE-11E
Maison à MARSEILLE-11E
Maison à MARSEILLE-11E
Maison à MARSEILLE-11E
Maison à MARSEILLE-11E
Maison à MARSEILLE-11E
Maison à MARSEILLE-11E
Maison à MARSEILLE-11E
Maison à MARSEILLE-11E
Maison à MARSEILLE-11E
Maison à MARSEILLE-11E
Maison à MARSEILLE-11E
Maison à MARSEILLE-11E
Maison à MARSEILLE-11E
Maison à MARSEILLE-11E
Maison à MARSEILLE-11E
Maison à MARSEILLE-11E
Maison à MARSEILLE-11E
Maison à MARSEILLE-11E
Géorisques

Les informations sur les risques auxquels ce bien est exposé sont disponibles sur le site Géorisques : www.georisques.gouv.fr

Ce site est protégé par hCaptcha Politique de confidentialité et Conditions d’utilisation s’appliquent.

En poursuivant votre navigation sans modifier vos paramètres, vous acceptez l'utilisation de cookies susceptibles de réaliser des statistiques de visite. Cliquez ici pour plus d'informations