Mansart 7 pièces 216m² indépendant sous-sol DPE C

— Coubron 93470 —
599 000 €
151 m² / 420 m²
7 pièces
parkingbalcon/terrasse

Les chevaux comme voisins ! Vue imprenable sur les champs et la forêt !

Quartier pavillonnaire, entre les chevaux et les écoles maternelle et primaire, ce pavillon de plain pied édifié sur sous-sol en 1980 de 151m² habitable, 216m² utile, permet de vivre de PLAIN PIED et de profiter du terrain de 420m². Finitions incroyable !

Futur métro ligne 16 à 5 min :
• A 30 min de la Défense
• A 45 min de la gare du Nord
• A 15 min de la gare RER B du Vert Galant

Agencement
De plain-pied
• Entrée
• Séjour triple (44m²)
• Terrasse avec pergola (25m²)
• Cuisine aménagée et équipée (9m²)
• Chambre (11m²)
• Salle d'eau (2m²)
• WC avec lave-main

Etage
• Palier
• Chambre (9,5m²)
• Chambre (11m²)
• Suite parentale : chambre (10,5m²), dressing (11m²), salle d'eau (5m²)
• Salle d'eau (2,6m²)
• WC

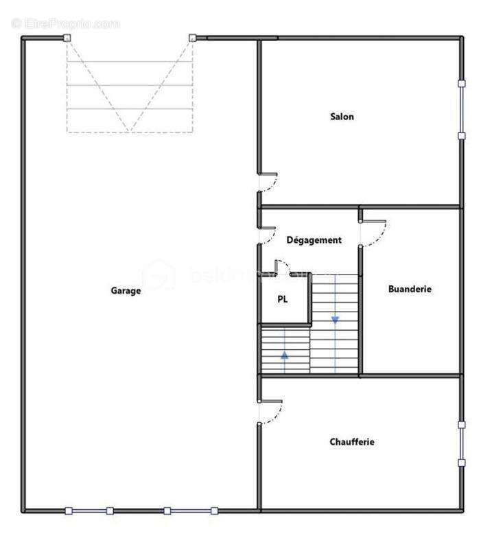
Sous-sol (HSP 2,10m)
• Garage double (43m²)
• Salon (14m²)
• Buanderie
• Chaufferie
• Cave

Jardin sans vis-à-vis, de la place pour 4 véhicules, 2 bateaux, 2 portails

Prestations
• Double vitrage PVC, volets roulant électrique (2020)
• Isolation intérieure et extérieure (2023)
• Chauffage au gaz, chaudière récente
• DPE performant en C
• Chambre et salle d'eau au rez-de-chaussée (idéal pour une vie sans escaliers)
• PRESTATIONS EXCEPTIONNELLES

Informations financières
• Prix de vente : 599 000 €
• Taxe foncière : 2 200 €

Ludovic MOREL
Votre Partenaire Immobilier
Depuis 2010

•••

Cette annonce référence 317304 vous est présentée par votre agent commercial BSK Immobilier LUDOVIC MOREL (EI) immatriculé au RSAC de BOBIGNY (93000) sous le numéro 91259345600029.

Prix du bien : 599 000,00 €
Les honoraires d'agence sont à la charge du vendeur.

A propos des performances énergétiques :
Date de réalisation du diagnostic énergétique : 19/06/2025
Score DPE : 95 kWhEP/m²/an
Score GES : 18 kgepCO2/m²/an
Montant estimé des dépenses annuelles d'énergie pour un usage standard : entre 1400.00 € et 1940.00 € par an. Prix moyens des énergies indexés sur l'année 2021 (abonnements compris).

Les informations sur les risques auxquels ce bien est exposé sont disponibles sur le site Géorisques : www.georisques.gouv.fr
Voir plus

Référence: 317304
Honoraires à la charge du vendeur.
DPE
A
B
C
D
E
F
G
GES
A
B
C
D
E
F
G
Maison à COUBRON
Maison à COUBRON
Maison à COUBRON
Maison à COUBRON
Maison à COUBRON
Maison à COUBRON
Maison à COUBRON
Maison à COUBRON
Maison à COUBRON
Maison à COUBRON
Maison à COUBRON
Maison à COUBRON
Maison à COUBRON
Maison à COUBRON
Maison à COUBRON
Maison à COUBRON
Maison à COUBRON
Maison à COUBRON
Maison à COUBRON
Maison à COUBRON
Maison à COUBRON
Maison à COUBRON
Maison à COUBRON
Maison à COUBRON
Géorisques

Les informations sur les risques auxquels ce bien est exposé sont disponibles sur le site Géorisques : www.georisques.gouv.fr

Ce site est protégé par hCaptcha Politique de confidentialité et Conditions d’utilisation s’appliquent.

En poursuivant votre navigation sans modifier vos paramètres, vous acceptez l'utilisation de cookies susceptibles de réaliser des statistiques de visite. Cliquez ici pour plus d'informations