Commerce 280 m² à Casson

— Casson 44390 —
371 000 €
280 m²
parking

TCB Immobilier vous propose à la vente 2 cellules d'activités neuves à Casson (44390) disponibles courant avril 2026 :
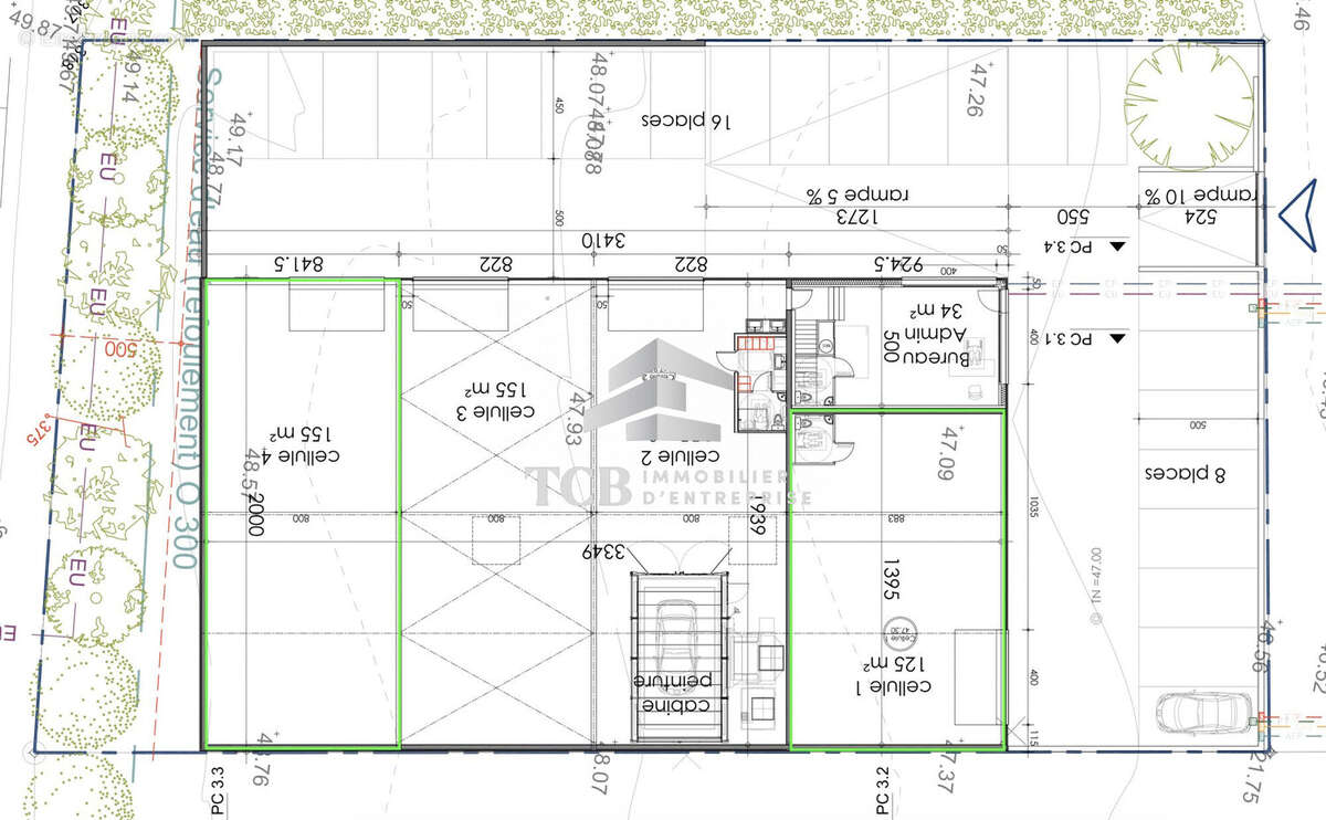
Cellule 1 : 125 m² + 4 places de parking ? 156 250 € net vendeur + reliquat de TVA
Cellule 2 : 155 m² + 3 places de parking ? 193 750 € net vendeur + reliquat de TVA
Atouts majeurs de ces locaux neufs :
Hauteur libre : 6,10 m ? idéale pour stockage, mezzanine ou engins légers
2 Porte sectionnelles motorisées : 3,50 m (H) × 4 m (L)
Équipements inclus : sanitaire (WC), menuiseries aluminium double vitrage, façade bardage moderne et esthétique
Site clos et sécurisé
3 et 4 places de parking privatives
Idéal pour jeunes entreprises, artisans, TPE/PME, stockage, atelier léger, services
Interdit : activités automobiles / réparation / carrosserie

Situation stratégique (nord de Nantes – environ 20-25 min du périphérique) :
Accès rapide : 12 min de la N137 (axe Nantes ? Rennes)
Route départementale D37 (Sucé-sur-Erdre ? Nort-sur-Erdre)
Bus ligne 347 à proximité
Gare SNCF à environ 30 min (Nort-sur-Erdre / Sucé)

En Zone Ue du PLUi (Artisanat et commerce de détail, commerce de gros, cctivités de services avec l'accueil d'une
clientèle, équipements sportifs...)

Honoraires charge Preneur 6%HT du prix net vendeur, soit ;

cellule 125m2 9.375€HT soit 11.250€TTC
cellule 155m2 11.625€HT soit 13.950€TTC
cellules 1 et 2; 21.000€HT soit 25.200€TTC




Honoraires inclus de 6% HT à la charge de l'acquéreur. Prix hors honoraires 350 000 € HT. DPE en cours. Les informations sur les risques auxquels ce bien est exposé sont disponibles sur le site Géorisques : georisques.gouv.fr.

Votre conseiller TCB - IMMOBILIER D'ENTREPRISE : Associé - Gérant - Tristan COYAC
Carte T CPI44[Coordonnées masquées]00070
RCP 904045077
Voir plus

Référence: TC186-TCB
Honoraires d'agence de 6% à la charge de l'acquéreur
Barème des honoraires
Commerce à CASSON
Commerce à CASSON
Commerce à CASSON
Géorisques

Les informations sur les risques auxquels ce bien est exposé sont disponibles sur le site Géorisques : www.georisques.gouv.fr

Ce site est protégé par hCaptcha Politique de confidentialité et Conditions d’utilisation s’appliquent.

En poursuivant votre navigation sans modifier vos paramètres, vous acceptez l'utilisation de cookies susceptibles de réaliser des statistiques de visite. Cliquez ici pour plus d'informations