Bénéficiez des services de nos partenaires locaux soigneusement sélectionnés
pour vous accompagner dans votre parcours d'achat immobilier

Terrain 529m² à couffoulens

— Couffoulens 11250 —
65 000 €
529 m²
jardin

Nos partenaires locaux
L'agence Home For Life Immobilier vous propose ce terrain constructible de 529 m² situé à Couffoulens, aux portes de Carcassonne.

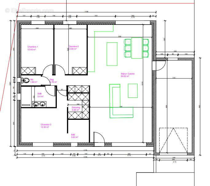
Les études de sol G1 et G2 ont été réalisées, et un permis de construire a été déposé et validé pour une villa de 107 m² comprenent trois chambres, dont une suite parentales avec salle d'eau et dressing, une piéce à vivre de 54 m², ainsi quun garage de 24.80 m².

Ce terrain, piscinable, bénéficie d'un environnement calme dans un lotissement agéable.
Voir plus

Référence: 73
Terrain à COUFFOULENS
Terrain à COUFFOULENS
Terrain à COUFFOULENS
Terrain à COUFFOULENS
Géorisques

Les informations sur les risques auxquels ce bien est exposé sont disponibles sur le site Géorisques : www.georisques.gouv.fr

Ce site est protégé par hCaptcha Politique de confidentialité et Conditions d’utilisation s’appliquent.