Bénéficiez des services de nos partenaires locaux soigneusement sélectionnés
pour vous accompagner dans votre parcours d'achat immobilier

Maison Vitry Sur Seine

— Vitry-Sur-Seine 94400 —
686 000 €
160 m² / 500 m²
6 pièces
parkingbalcon/terrassejardin

Nos partenaires locaux
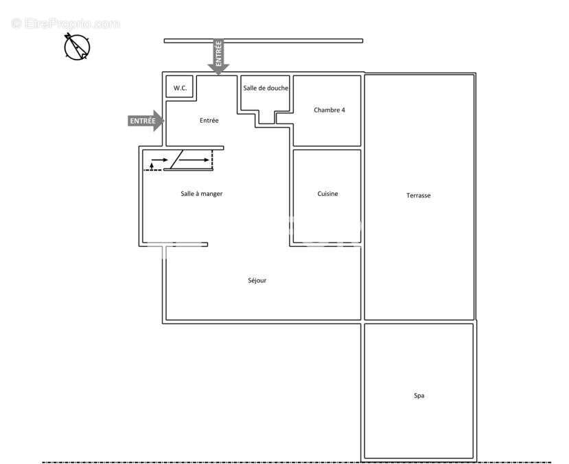
Votre agence LAFORÊT, leader à Vitry-sur-Seine depuis 25 ans et N°1 de la confiance depuis 15 ans, vous propose dans le quartier calme et pavillonnaire des Coteaux-Malassis, proche des écoles, des commerces et à seulement 3 minutes à pied du T9 et du futur métro 15, cette maison familiale qui propose une organisation pratique du quotidien. Au rez-de-chaussée, l'entrée mène à une cuisine aménagée et équipée avec verrière donnant sur la salle à manger et le séjour qui forment ensemble un bel espace de vie d'environ 51 m², lumineux et agréable à vivre. Une chambre avec sa salle d'eau et un WC se trouve également à ce niveau. A l'étage, le palier en mezzanine sert de coin bureau ou d'espace détente et distribue trois chambres ainsi qu'une salle de bains avec baignoire et douche plus un w.c. La maison est élevée sur un sous-sol total avec un grand garage, offrant de nombreuses possibilités de rangement ou d'aménagement, ainsi que d'une véranda d'environ 19 m² qui permet de profiter du jardin tout au long de l'année. Ce bien fonctionnel et idéalement situé constitue un cadre parfait. Contactez-nous!
Voir plus

Référence: 5495
Honoraires à la charge du vendeur.
Barème des honoraires
DPE
A
B
C
D
E
F
G
GES
A
B
C
D
E
F
G
Maison à VITRY-SUR-SEINE
Maison à VITRY-SUR-SEINE
Maison à VITRY-SUR-SEINE
Maison à VITRY-SUR-SEINE
Maison à VITRY-SUR-SEINE
Maison à VITRY-SUR-SEINE
Maison à VITRY-SUR-SEINE
Maison à VITRY-SUR-SEINE
Maison à VITRY-SUR-SEINE
Maison à VITRY-SUR-SEINE
Maison à VITRY-SUR-SEINE
Maison à VITRY-SUR-SEINE
Maison à VITRY-SUR-SEINE
Maison à VITRY-SUR-SEINE
Maison à VITRY-SUR-SEINE
Maison à VITRY-SUR-SEINE
Maison à VITRY-SUR-SEINE
Maison à VITRY-SUR-SEINE
Géorisques

Les informations sur les risques auxquels ce bien est exposé sont disponibles sur le site Géorisques : www.georisques.gouv.fr

Ce site est protégé par hCaptcha Politique de confidentialité et Conditions d’utilisation s’appliquent.

En poursuivant votre navigation sans modifier vos paramètres, vous acceptez l'utilisation de cookies susceptibles de réaliser des statistiques de visite. Cliquez ici pour plus d'informations