Bénéficiez des services de nos partenaires locaux soigneusement sélectionnés
pour vous accompagner dans votre parcours d'achat immobilier

Maison 159 m² à Anduze

— Anduze 30140 —
449 900 €
159 m² / 1 998 m²
6 pièces
parkingjardinpiscine

Nos partenaires locaux
30140 - ANDUZE - VILLA PLAIN-PIED - 4 CHAMBRES - PISCINE - TERRAIN 2000 M2 - VUE EXCEPTIONNELLE - GARAGE - DÉPENDANCE

efficity, l'agence qui estime votre bien en ligne, vous propose votre nouveau havre de paix

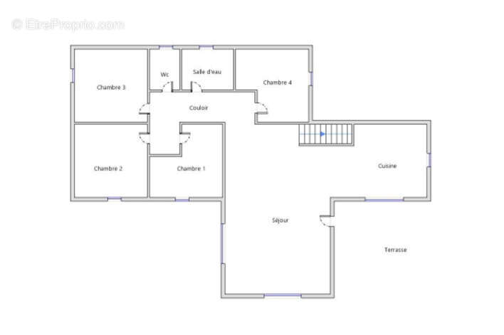
Nous vous présentons cette superbe villa de plain-pied de 158 m2, érigée en 2001, nichée dans un cadre enchanteur paisible. Son intérieur, soigneusement aménagé, se caractérise par des volumes spacieux et une cuisine de 17 m² entièrement équipée, s'ouvrant sur un vaste séjour de 53 m², idéal pour des réceptions raffinées.

Cette propriété offre 4 chambres baignées de lumière, avec la possibilité de convertir un bureau de 16 m² en une 5ème chambre, selon vos besoins.

Le sous-sol carrelé un potentiel supplémentaire à exploiter comprend :
- Toilette séparé
- Douche
- Bureau lumineux facilement transformable en chambre
En outre, il offre la possibilité sur les 53 M2 de garage attenant, d'aménager une cuisine-salon permettant de créer une dépendance confortable et fonctionnel.

À l'extérieur, un terrain clos et arboré de 2000 m², agrémenté de 23 oliviers, constitue un véritable havre de paix. La piscine UV de 9x4 invite à la détente pendant les chaudes journées d'été, tandis qu'un terrain de pétanque promet des moments conviviaux en famille ou entre amis. Un atelier de 20 m² et une cave sont également à disposition pour vos projets créatifs ou de rangement.

Avantages complémentaires :La villa est dotée du tout-à-l'égout, de panneaux photovoltaïques, d'un système de chauffage air/eau, ainsi que d'un chauffe-eau thermodynamique. Avec une note énergétique exceptionnelle de B, vous bénéficierez d'économies substantielles au quotidien. Double vitrage et volets électriques.

Située à proximité des commodités d'Anduze (boulangeries, pharmacie, médecins, supermarché, buraliste, coiffeur) et accueillant les jeunes résidents de la crèche au collège.

Pour toute information complémentaire ou pour organiser une visite personnalisée, nous serions ravis de vous accueillir. N'hésitez pas à nous contacter.
Les informations sur les risques auxquels ce bien est exposé sont disponibles sur le site Georisque : georisques. gouv. fr
Dana Nguyen - EI - est Agent Commercial mandataire en immobilier, immatriculé au Registre Spécial des Agents Commerciaux du Tribunal de Commerce de Nîmes sous le n°479888174.
Siège social du mandant : effiCity, 48 avenue de Villiers - 75017 PARIS - Société par Actions Simplifiée, société au capital de 132 373,05 euros, immatriculée au RCS Paris 497 617 746 et titulaire de la Carte professionnelle CPI 75[Coordonnées masquées]02 025 - CCI Paris IDF - Caisse de Garantie : GALIAN Assurances 89 rue de la Boétie 75008 Paris
Voir plus

Référence: 203665
Honoraires à la charge du vendeur.
Barème des honoraires
DPE
A
B
C
D
E
F
G
GES
A
B
C
D
E
F
G
Maison à ANDUZE
Maison à ANDUZE
Maison à ANDUZE
Maison à ANDUZE
Maison à ANDUZE
Maison à ANDUZE
Maison à ANDUZE
Maison à ANDUZE
Maison à ANDUZE
Maison à ANDUZE
Maison à ANDUZE
Maison à ANDUZE
Maison à ANDUZE
Maison à ANDUZE
Maison à ANDUZE
Maison à ANDUZE
Maison à ANDUZE
Maison à ANDUZE
Maison à ANDUZE
Géorisques

Les informations sur les risques auxquels ce bien est exposé sont disponibles sur le site Géorisques : www.georisques.gouv.fr

Ce site est protégé par hCaptcha Politique de confidentialité et Conditions d’utilisation s’appliquent.

En poursuivant votre navigation sans modifier vos paramètres, vous acceptez l'utilisation de cookies susceptibles de réaliser des statistiques de visite. Cliquez ici pour plus d'informations