Bénéficiez des services de nos partenaires locaux soigneusement sélectionnés
pour vous accompagner dans votre parcours d'achat immobilier

6 Appartements

— Lunel 34400 —
520 000 €
342 m²
balcon/terrasse

Nos partenaires locaux
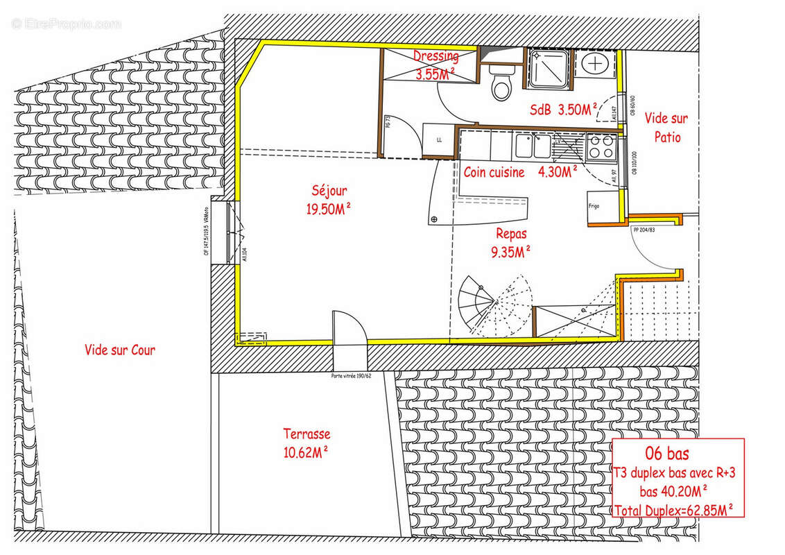
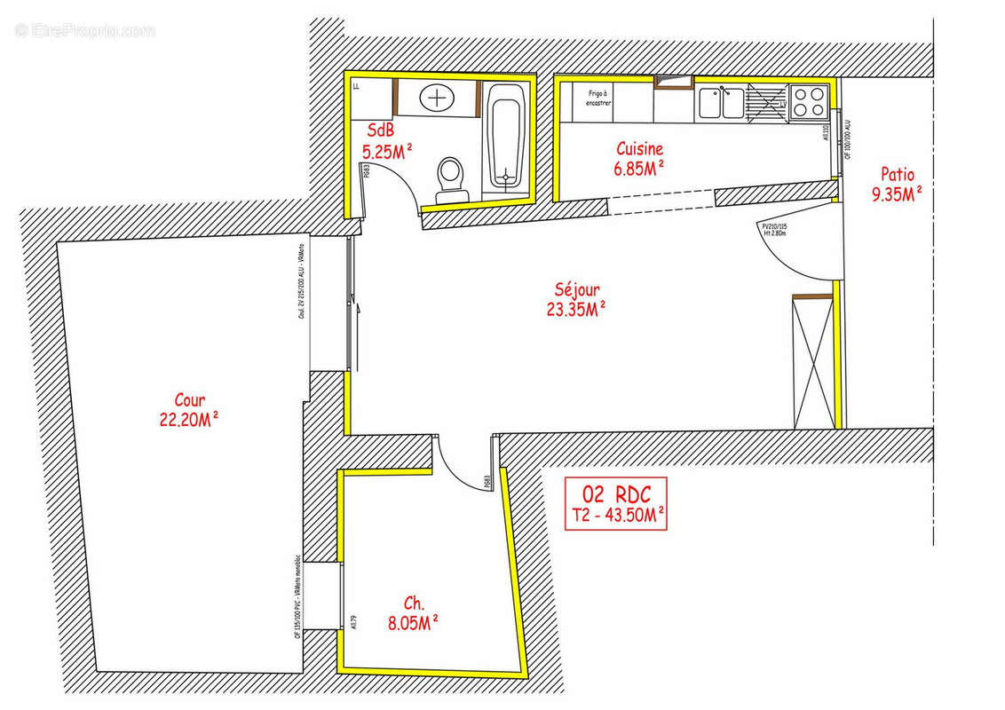
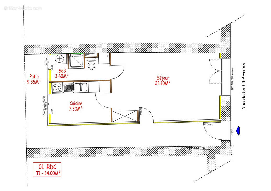
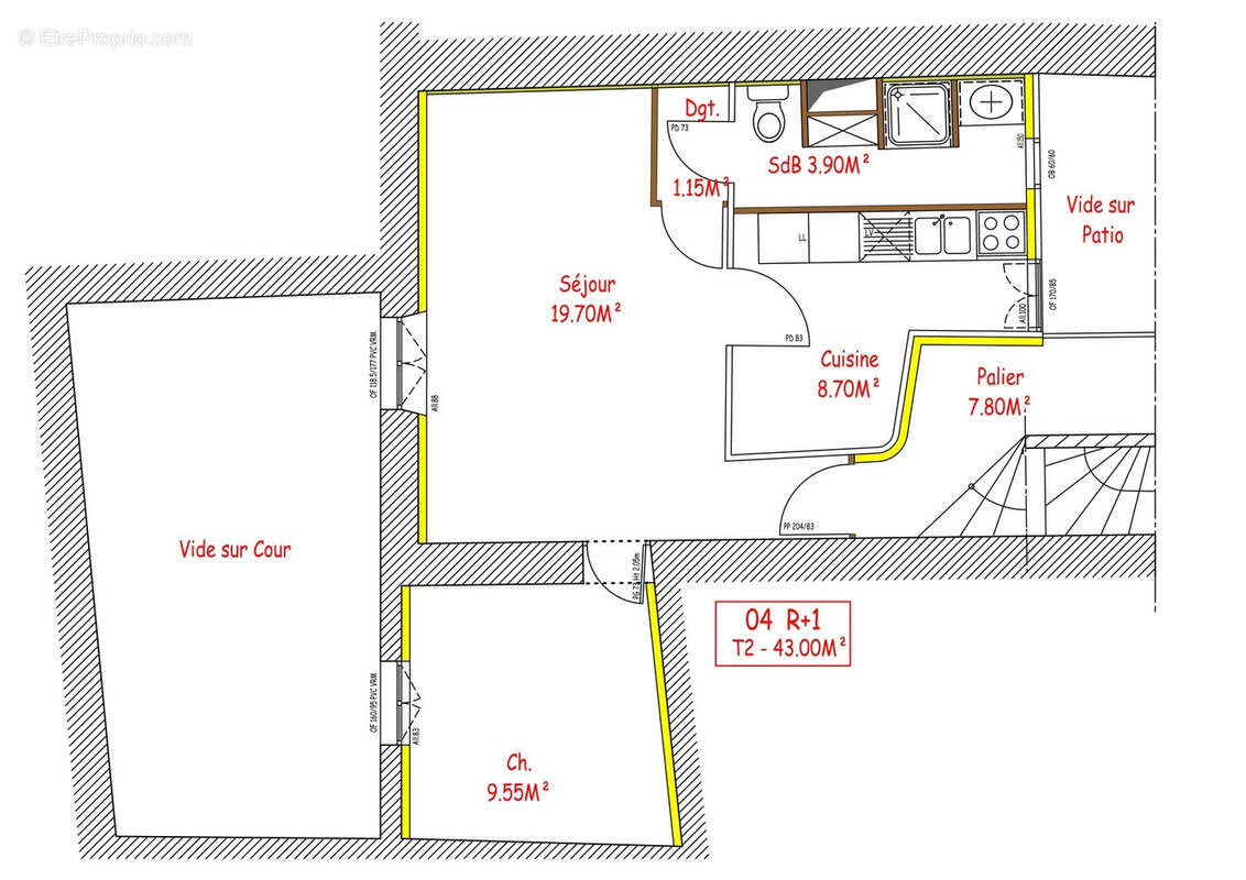
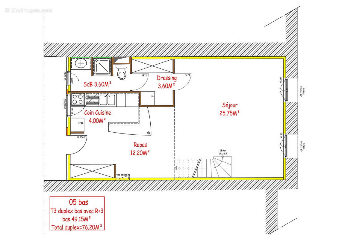
Très rare, superbe Immeuble de 342m2 en bon état, composé de 6 appartements, au RDC: un Studio de 34m2 loué 345.76 euros et un Appartement de T2 de 43.50m2 avec cour de 22m2 loué 520 euros, au 1er étage: deux appartements de Type 2 de 48.90m2 et 43m2 loués 539.65 euros et 519.12 euros et au 2eme étage: deux appartement de Type 3 Duplex de 76.40m2 et de 62.10m2 avec une cour de 10m2 loués 668.44 euros et 636.67 euros soit une rentabilité de 3 229.64 par mois et de 38 755.68 euros à l'année.
Superficie totale de 342.50m2, superficie des logements de 307.90m2 et superficie des parties communes de 34.60m2
Bel emplacement, au coeur de la ville centre historique, quartier calme, proche gare, commerces, écoles, collège et lycée.
A environ 20 minutes de MONTPELLIER et de NIMES, à environ 10 minutes de LA GRANDE MOTTE et à environ 15 minutes du GRAU DU ROI false
Voir plus

Référence: 12091
Honoraires à la charge du vendeur.
Barème des honoraires
DPE
A
B
C
D
E
F
G
GES
A
B
C
D
E
F
G
Appartement à LUNEL
Appartement à LUNEL
Appartement à LUNEL
Appartement à LUNEL
Appartement à LUNEL
Appartement à LUNEL
Appartement à LUNEL
Appartement à LUNEL
Appartement à LUNEL
Appartement à LUNEL
Appartement à LUNEL
Appartement à LUNEL
Appartement à LUNEL
Appartement à LUNEL
Appartement à LUNEL
Appartement à LUNEL
Appartement à LUNEL
Appartement à LUNEL
Appartement à LUNEL
Appartement à LUNEL
Géorisques

Les informations sur les risques auxquels ce bien est exposé sont disponibles sur le site Géorisques : www.georisques.gouv.fr

Ce site est protégé par hCaptcha Politique de confidentialité et Conditions d’utilisation s’appliquent.

En poursuivant votre navigation sans modifier vos paramètres, vous acceptez l'utilisation de cookies susceptibles de réaliser des statistiques de visite. Cliquez ici pour plus d'informations