Bénéficiez des services de nos partenaires locaux soigneusement sélectionnés
pour vous accompagner dans votre parcours d'achat immobilier

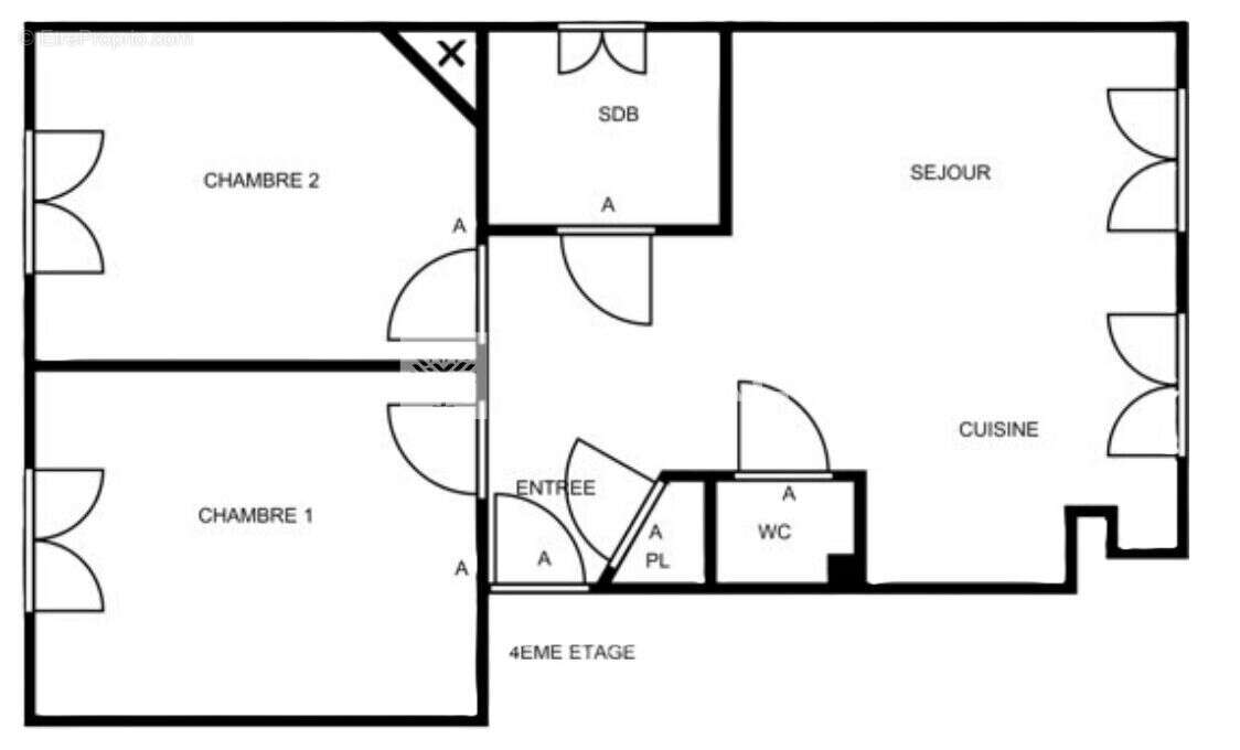
Appartement ancien bois colombes - 3 pièce(s) - 57 m2

— Bois-Colombes 92270 —
360 000 €
57 m²
3 pièces
balcon/terrasse

Nos partenaires locaux
Venez découvrir cet appartement de 57 m² aux prestations soignées, alliant le charme de l'ancien et un agencement fonctionnel. Il se compose de trois pièces, dont deux chambres, offrant des volumes bien répartis et une belle luminosité pour un confort de vie immédiat. Situé au 4e étage d'un immeuble de caractère, à quelques pas de la gare de Bois-Colombes (Transilien), ce bien bénéficie d'un environnement de qualité : commerces de proximité rue des Bourguignons, marché de quartier et restaurants à quelques minutes à pied. (4.35 % honoraires TTC à la charge de l'acquéreur.) Copropriété de 28 lots - dont 12 lots habitation. Charges annuelles : 2499 euros.
Voir plus

Référence: 10371
Bien en copropriété. Nombre de lots : 28. Charges de copropriété : 2499 €.
Honoraires d'agence de 4.35% à la charge de l'acquéreur
Barème des honoraires
DPE
A
B
C
D
E
F
G
GES
A
B
C
D
E
F
G
Appartement à BOIS-COLOMBES
Appartement à BOIS-COLOMBES
Appartement à BOIS-COLOMBES
Appartement à BOIS-COLOMBES
Appartement à BOIS-COLOMBES
Appartement à BOIS-COLOMBES
Appartement à BOIS-COLOMBES
Appartement à BOIS-COLOMBES
Appartement à BOIS-COLOMBES
Géorisques

Les informations sur les risques auxquels ce bien est exposé sont disponibles sur le site Géorisques : www.georisques.gouv.fr

Ce site est protégé par hCaptcha Politique de confidentialité et Conditions d’utilisation s’appliquent.

En poursuivant votre navigation sans modifier vos paramètres, vous acceptez l'utilisation de cookies susceptibles de réaliser des statistiques de visite. Cliquez ici pour plus d'informations