Bénéficiez des services de nos partenaires locaux soigneusement sélectionnés
pour vous accompagner dans votre parcours d'achat immobilier

Maison de Maître à vendre 7 pièces à Rieux-Volvestre (31)

— Carbonne 31390 —
413 000 €
213 m² / 1 070 m²
7 pièces

Nos partenaires locaux
(31310) - RIEUX-VOLVESTRE- MAISON DE MAÏTRE - CHARME DE L'ANCIEN - PIERRE - VOLUME - CADRE PAISIBLE -

Nichée au cœur d'un environnement privilégié, cette magnifique maison de maître de 213 m² habitables (303 m² de surface totale), édifiée en 1859, séduit par son harmonieux mariage entre le charme de l'ancien et le confort moderne.

Dès l'entrée, le ton est donné : une entrée traversante baignée de lumière dessert quatre belles pièces aux volumes généreux.
La pièce de vie de 47,5 m², composée d'un salon et d'une salle à manger communicants, s'articule autour d'une majestueuse cheminée avec insert, idéale pour des moments chaleureux.
La cuisine indépendante de 17 m², elle aussi dotée d'une cheminée, offre un accès direct à une vaste terrasse de 50 m² et une vue dégagée sur le jardin et la piscine.
Une quatrième pièce de 18,30 m², actuellement aménagée en salon, peut facilement devenir une chambre grâce à sa salle d'eau privative.

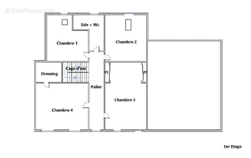
À l'étage, vous découvrirez quatre chambres spacieuses, aux surfaces comprises entre 15,40 m² et 25,80 m². L'une d'elles bénéficie d'un dressing, tandis qu'une autre dispose de deux grands placards coulissants. Une salle d'eau de 7,90 m² complète ce niveau.

Les combles aménagés, d'une surface totale de 54 m² (dont 16,90 m² avec une hauteur supérieure à 1,80 m), accueillent actuellement une salle de sport et offrent de nombreuses possibilités : chambres supplémentaires, salle de jeux ou espace détente.

À l'extérieur, le jardin arboré et entièrement clôturé invite à la sérénité. Il est agrémenté d'une grande terrasse de 50 m², d'une piscine couverte de 10 x 5 m et d'une véranda lumineuse de 40 m², idéale pour profiter du jardin toute l'année.

La maison est chauffée au gaz de ville et dispose d'un garage attenant de 50 m² avec portail motorisé, apportant un confort supplémentaire.

Situé à Rieux-Volvestre, charmant village offrant commerces de proximité, école et maison de santé, ce bien d'exception bénéficie d'un emplacement stratégique, à seulement 5 minutes de la gare de Carbonne et de l'autoroute A64.

Une demeure rare, idéale pour les amoureux des belles pierres et des grands espaces, à découvrir sans tarder.
L'intégralité du dossier de vente est à votre disposition et vous sera présenté lors de la visite.
Je reste à votre entière disposition pour organiser un rendez-vous à votre convenance. Les honoraires d'agence sont à la charge de l'acquéreur, soit 3,25% TTC du prix hors honoraires.
Les informations sur les risques auxquels ce bien est exposé sont disponibles sur le site Géorisques : www. georisques. gouv. fr.

Contactez Romain BOISSON Entrepreneur Individuel, Agent commercial OptimHome (RSAC N°879 812 907 Greffe de TOULOUSE) [Coordonnées masquées] (réf. 600067 )
Voir plus

Référence: 830034733047
DPE
A
B
C
D
E
F
G
GES
A
B
C
D
E
F
G
Maison à CARBONNE
Maison à CARBONNE
Maison à CARBONNE
Maison à CARBONNE
Maison à CARBONNE
Maison à CARBONNE
Maison à CARBONNE
Maison à CARBONNE
Maison à CARBONNE
Maison à CARBONNE
Maison à CARBONNE
Maison à CARBONNE
Maison à CARBONNE
Maison à CARBONNE
Maison à CARBONNE
Maison à CARBONNE
Maison à CARBONNE
Maison à CARBONNE
Maison à CARBONNE
Géorisques

Les informations sur les risques auxquels ce bien est exposé sont disponibles sur le site Géorisques : www.georisques.gouv.fr

Ce site est protégé par hCaptcha Politique de confidentialité et Conditions d’utilisation s’appliquent.

En poursuivant votre navigation sans modifier vos paramètres, vous acceptez l'utilisation de cookies susceptibles de réaliser des statistiques de visite. Cliquez ici pour plus d'informations