Bénéficiez des services de nos partenaires locaux soigneusement sélectionnés
pour vous accompagner dans votre parcours d'achat immobilier

Maison à vendre

— Romainville 93230 —
419 000 €
90 m²
4 pièces
parking

Nos partenaires locaux
°°ROMAINVILLE BAS PAYS PROXIMITE PARC°°
maison libre et en commercialisation en exclusivité
Dans une Impasse tranquille, cette charmante maison sur une parcelle de 250 m2, 128 m2 habitable, 86 m2 de surface au sol offre un cadre de vie idéal pour ceux qui cherchent à combiner confort et commodité.
Double séjour, cuisine séparée, 3 belle chambres, une salles d'eau toilettes, cette demeure est parfaitement adaptée à une vie familiale dynamique. Le grand séjour est l'endroit rêvé pour recevoir des invités ou pour des soirées en famille. De plus, la proximité du parc de Romainville permet de profiter de la nature et des espaces verts pour des promenades ressourçâtes.
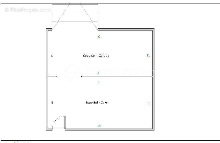
Avec son double garage de 40 m2 , pouvant être aménagé en studio ou deux pièces, équipée de l'électricité, arrivée d'eau, évacuation, WC avec une hauteur sous plafond de 2m50.
Parquet massif dans les pièces de nuit, double vitrage, cheminée.
Cette maison sans mitoyenneté représente une opportunité pour ceux qui désirent s'établir dans un quartier paisible.
Proche Ecole Parc Commerces BUS et métro ligne 5 Raymond Quenaud ou ligne 11 CARNOT à 20minutes.
maison Mitoyenne .
DPE E-
TX : 2340 €

Cette annonce référence 261838 vous est présentée par votre agent commercial BSK Immobilier LAURENT JOUARY (EI) immatriculé au RSAC de PARIS-1ER-ARRONDISSEMENT (75001) sous le numéro 91245775100010.

Prix du bien : 419 000,00 €
Les honoraires d'agence sont à la charge du vendeur.

A propos des performances énergétiques :
Date de réalisation du diagnostic énergétique : 01/12/2024
Score DPE : 250 kWhEP/m²/an
Score GES : 54 kgepCO2/m²/an
Montant estimé des dépenses annuelles d'énergie pour un usage standard : entre 1900.00 € et 2620.00 € par an. Prix moyens des énergies indexés sur l'année 2024 (abonnements compris).

Les informations sur les risques auxquels ce bien est exposé sont disponibles sur le site Géorisques : www.georisques.gouv.fr
Voir plus

Référence: 261838
Honoraires à la charge du vendeur.
DPE
A
B
C
D
E
F
G
GES
A
B
C
D
E
F
G
Maison à ROMAINVILLE
Maison à ROMAINVILLE
Maison à ROMAINVILLE
Maison à ROMAINVILLE
Maison à ROMAINVILLE
Maison à ROMAINVILLE
Maison à ROMAINVILLE
Maison à ROMAINVILLE
Maison à ROMAINVILLE
Maison à ROMAINVILLE
Maison à ROMAINVILLE
Maison à ROMAINVILLE
Maison à ROMAINVILLE
Maison à ROMAINVILLE
Maison à ROMAINVILLE
Maison à ROMAINVILLE
Maison à ROMAINVILLE
Maison à ROMAINVILLE
Maison à ROMAINVILLE
Maison à ROMAINVILLE
Maison à ROMAINVILLE
Maison à ROMAINVILLE
Maison à ROMAINVILLE
Maison à ROMAINVILLE
Maison à ROMAINVILLE
Géorisques

Les informations sur les risques auxquels ce bien est exposé sont disponibles sur le site Géorisques : www.georisques.gouv.fr

Ce site est protégé par hCaptcha Politique de confidentialité et Conditions d’utilisation s’appliquent.

En poursuivant votre navigation sans modifier vos paramètres, vous acceptez l'utilisation de cookies susceptibles de réaliser des statistiques de visite. Cliquez ici pour plus d'informations