Bénéficiez des services de nos partenaires locaux soigneusement sélectionnés
pour vous accompagner dans votre parcours d'achat immobilier

Maison 138 m² à Fontenay-Aux-Roses

— Fontenay-Aux-Roses 92260 —
690 000 €
138 m² / 319 m²
7 pièces
parkingbalcon/terrassejardin

Nos partenaires locaux
EN LIMITE DE LA VILLE DE SCEAUX - PROCHE RER B - MAISON FAMILIALE DE 7 PIECES
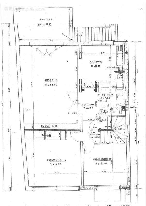
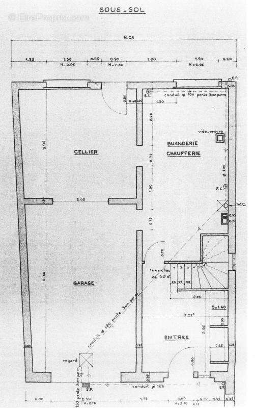
Efficity, l'agence qui estime votre bien ligne, vous propose cette grande maison familiale sur 3 niveaux, d'une superficie de 138 m2 (véranda comprise, plus un rez-de-chaussée) sur un terrain de 320 m2.
Maison datant des années 60, très bien entretenue se compose :
- Au rez-de-chaussée, d'une vaste entrée, d'un garage, d'une buanderie, chaufferie, atelier
- Au 1er niveau, une cuisine (communicante avec un passe-plat sur le séjour), un séjour de 25 m2, véranda, 2 chambres avec placards, salle de douche, wc séparés.
- Au 2ème niveau, 3 chambres, un bureau, salle de bain, wc séparés, dégagements et placards.
A cela se rajoute des combles non aménageables de 50m2.
Le jardin de 265 m2 situé à l'arrière de la maison est à l'abris des regards.

Des travaux de mise au goût du jour sont nécessaires pour certaines pièces.

Les informations sur les risques auxquels ce bien est exposé sont disponibles sur le site Géorisques : http://georisques.gouv.fr
Les informations sur les risques auxquels ce bien est exposé sont disponibles sur le site Georisque : georisques. gouv. fr
Christel Anne Gabard - EI - est Agent Commercial mandataire en immobilier, immatriculé au Registre Spécial des Agents Commerciaux du Tribunal de Commerce de Nanterre sous le n°495290397.
Siège social du mandant : effiCity, 48 avenue de Villiers - 75017 PARIS - Société par Actions Simplifiée, société au capital de 132 373,05 euros, immatriculée au RCS Paris 497 617 746 et titulaire de la Carte professionnelle CPI 75[Coordonnées masquées]02 025 - CCI Paris IDF - Caisse de Garantie : GALIAN Assurances 89 rue de la Boétie 75008 Paris
Voir plus

Référence: 202363
Honoraires à la charge du vendeur.
Barème des honoraires
DPE
A
B
C
D
E
F
G
GES
A
B
C
D
E
F
G
Maison à FONTENAY-AUX-ROSES
Maison à FONTENAY-AUX-ROSES
Maison à FONTENAY-AUX-ROSES
Maison à FONTENAY-AUX-ROSES
Maison à FONTENAY-AUX-ROSES
Maison à FONTENAY-AUX-ROSES
Maison à FONTENAY-AUX-ROSES
Maison à FONTENAY-AUX-ROSES
Maison à FONTENAY-AUX-ROSES
Maison à FONTENAY-AUX-ROSES
Maison à FONTENAY-AUX-ROSES
Maison à FONTENAY-AUX-ROSES
Maison à FONTENAY-AUX-ROSES
Maison à FONTENAY-AUX-ROSES
Maison à FONTENAY-AUX-ROSES
Maison à FONTENAY-AUX-ROSES
Maison à FONTENAY-AUX-ROSES
Maison à FONTENAY-AUX-ROSES
Maison à FONTENAY-AUX-ROSES
Maison à FONTENAY-AUX-ROSES
Maison à FONTENAY-AUX-ROSES
Maison à FONTENAY-AUX-ROSES
Maison à FONTENAY-AUX-ROSES
Géorisques

Les informations sur les risques auxquels ce bien est exposé sont disponibles sur le site Géorisques : www.georisques.gouv.fr

Ce site est protégé par hCaptcha Politique de confidentialité et Conditions d’utilisation s’appliquent.

En poursuivant votre navigation sans modifier vos paramètres, vous acceptez l'utilisation de cookies susceptibles de réaliser des statistiques de visite. Cliquez ici pour plus d'informations