Bénéficiez des services de nos partenaires locaux soigneusement sélectionnés
pour vous accompagner dans votre parcours d'achat immobilier

Maison neuve T4 plain-pied avec piscine - Corbières

— Boutenac 11200 —
237 000 €
114 m² / 400 m²
4 pièces
parkingbalcon/terrassejardinpiscine

Nos partenaires locaux
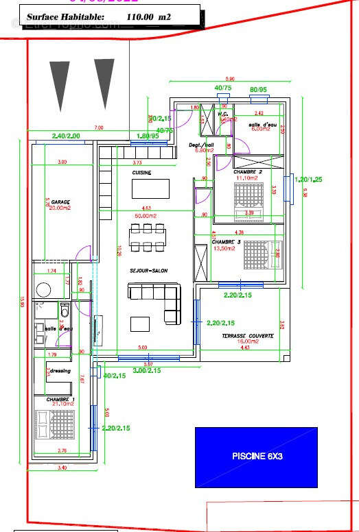
Située dans le charmant village de Boutenac, cette maison neuve de 2025 est un véritable joyau. Baignée de lumière naturelle, elle offre un cadre de vie exceptionnel. Proche des commodités, cette propriété bénéficie d'un emplacement idéal. Le bien s'étend sur un terrain de 400 m2, comprenant une piscine en pierre de Bali de 6x3 mètres, idéale pour se rafraîchir lors des journées ensoleillées. Deux places de parking et un garage offrent un espace de stationnement pratique. L'aménagement extérieur est pensé pour allier confort et esthétisme, offrant un cadre de vie agréable aux futurs résidents. À l'intérieur, cette maison de plain-pied de 110 m2 se compose de 4 pièces, dont 3 chambres lumineuses. La chambre parentale dispose d'une salle d'eau privative et d'un dressing. L'espace de vie se caractérise par une cuisine ouverte sur un salon spacieux. Avec 2 toilettes et 2 salles de bain, le confort et l'intimité des occupants sont assurés. Cette propriété moderne et bien pensée saura charmer les acheteurs en quête d'un bien alliant confort et fonctionnalité. Les informations sur les risques auxquels ce bien est exposé sont disponibles sur le site Géorisques : www.georisques.gouv.fr
Voir plus

Honoraires d'agence de 5.33% à la charge de l'acquéreur
Barème des honoraires
DPE
A
B
C
D
E
F
G
GES
A
B
C
D
E
F
G
Maison à BOUTENAC
Maison à BOUTENAC
Maison à BOUTENAC
Maison à BOUTENAC
Maison à BOUTENAC
Maison à BOUTENAC
Maison à BOUTENAC
Maison à BOUTENAC
Maison à BOUTENAC
Maison à BOUTENAC
Maison à BOUTENAC
Maison à BOUTENAC
Maison à BOUTENAC
Maison à BOUTENAC
Maison à BOUTENAC
Maison à BOUTENAC
Maison à BOUTENAC
Maison à BOUTENAC
Maison à BOUTENAC
Maison à BOUTENAC
Géorisques

Les informations sur les risques auxquels ce bien est exposé sont disponibles sur le site Géorisques : www.georisques.gouv.fr

Ce site est protégé par hCaptcha Politique de confidentialité et Conditions d’utilisation s’appliquent.