Bénéficiez des services de nos partenaires locaux soigneusement sélectionnés
pour vous accompagner dans votre parcours d'achat immobilier

Voir tous les partenaires locaux

Bel appartement de caractère, 100 m², 3 chambres, Carré d’Or

— Nice 06000 —
807 000 €
100 m²
4 pièces
ascenseur

Nos partenaires locaux
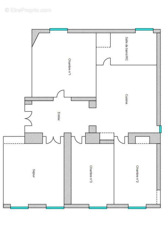
Situé dans un immeuble ancien de standing, cet appartement développe une surface de 100 m² Loi Carrez et offre un cadre de vie confortable, lumineux et bien équilibré.

Les volumes généreux et la hauteur sous plafond apportent une réelle sensation d'espace dès l'entrée. L'agencement est fluide et fonctionnel, permettant une utilisation agréable au quotidien.

L'espace de vie s'articule autour d'une cuisine équipée, pensée pour être à la fois pratique et conviviale. Elle s'organise autour d'un îlot central et s'intègre naturellement à l'espace repas. Le parquet présent dans les pièces de vie apporte chaleur et caractère à l'ensemble.

L'appartement comprend trois chambres de belles dimensions, adaptées aussi bien à une vie de famille qu'à l'aménagement d'un bureau ou d'une chambre d'amis.

Il dispose également d'une salle de bains spacieuse, équipée d'une baignoire ainsi que d'une douche, offrant un espace confortable et lumineux.

Le bien bénéficie d'une situation recherchée, à proximité immédiate de l'arrêt de tram, au cœur du Carré d'Or de Nice, à quelques pas de Jean Médecin, des boutiques de prestige, des commerces et de la Coulée Verte, offrant un cadre de vie urbain à la fois pratique et agréable.

L'appartement bénéficie en complément d'une mansarde située dans le même immeuble, offrant un espace de rangement supplémentaire appréciable.

Un bien de 100 m², recherché pour ses volumes, son emplacement et sa qualité générale, idéal en résidence principale comme en pied-à-terre.
Voir plus

Référence: 2466
Bien en copropriété. Nombre de lots : 26.
DPE
A
B
C
D
E
F
G
GES
A
B
C
D
E
F
G
Appartement à NICE
Appartement à NICE
Appartement à NICE
Appartement à NICE
Appartement à NICE
Appartement à NICE
Appartement à NICE
Appartement à NICE
Appartement à NICE
Appartement à NICE
Appartement à NICE
Appartement à NICE
Appartement à NICE
Appartement à NICE
Appartement à NICE
Appartement à NICE
Géorisques

Les informations sur les risques auxquels ce bien est exposé sont disponibles sur le site Géorisques : www.georisques.gouv.fr

Ce site est protégé par hCaptcha Politique de confidentialité et Conditions d’utilisation s’appliquent.

En poursuivant votre navigation sans modifier vos paramètres, vous acceptez l'utilisation de cookies susceptibles de réaliser des statistiques de visite. Cliquez ici pour plus d'informations