Bénéficiez des services de nos partenaires locaux soigneusement sélectionnés
pour vous accompagner dans votre parcours d'achat immobilier

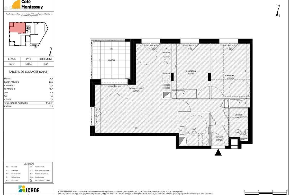
Appartement T3 de 64,3 m² - Caluire-et-Cuire

— Caluire-Et-Cuire 69300 —
198 000 €
64 m²
3 pièces
balcon/terrasse

Nos partenaires locaux
Rare à Caluire-et-Cuire : T3 disponible en Bail Réel Solidaire !
Devenez propriétaire jusqu'à 50 % moins cher que le prix du marché, dans un cadre verdoyant à deux pas du Fort de Montessuy.

La résidence « Côté Montessuy » allie élégance architecturale et confort moderne, à proximité des commerces et des transports, dans un environnement paisible.

Ce T3 de 64,3 m² (lot 202) offre une entrée avec placard, des WC séparés, un cellier, une salle de bains avec baignoire et deux chambres spacieuses de 12,1 m² et 10,7 m².
Le séjour-cuisine lumineux de 27,5 m² s'ouvre sur une loggia de 7,3 m².

Résidence certifiée NF Habitat, Label biosourcé et conforme à la RE 2020.

À partir de 198 000 €
Redevance : 102,88 € / mois
Charges estimées : 150,03 € / mois
Voir plus

Référence: 8029.1.1.202
Appartement à CALUIRE-ET-CUIRE
Appartement à CALUIRE-ET-CUIRE
Appartement à CALUIRE-ET-CUIRE
Géorisques

Les informations sur les risques auxquels ce bien est exposé sont disponibles sur le site Géorisques : www.georisques.gouv.fr

Ce site est protégé par hCaptcha Politique de confidentialité et Conditions d’utilisation s’appliquent.

En poursuivant votre navigation sans modifier vos paramètres, vous acceptez l'utilisation de cookies susceptibles de réaliser des statistiques de visite. Cliquez ici pour plus d'informations