Maison de village à réhabiliter à SORIO

— Sorio 20246 —
42 500 €
78 m²
5 pièces

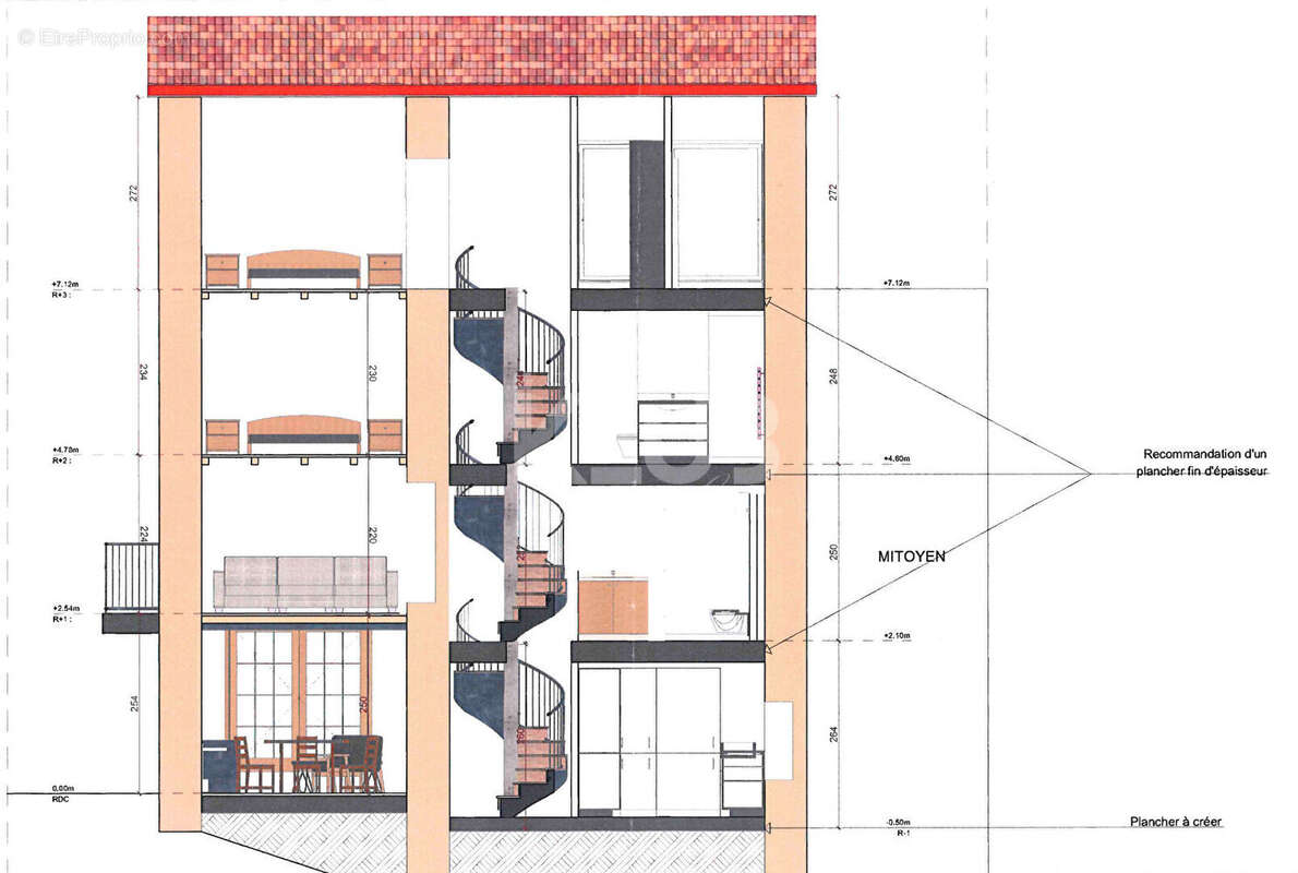
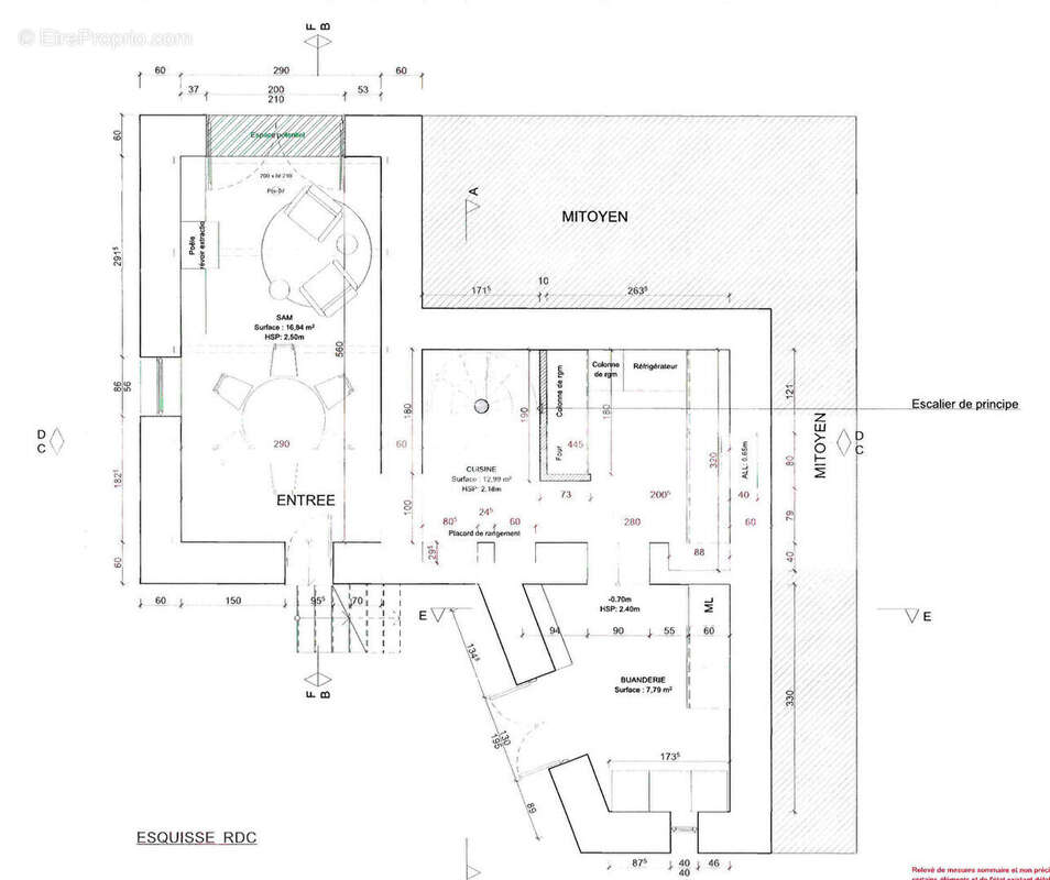
Maison de village à réhabiliter située à SORIO, offrant un fort potentiel pour les amateurs de rénovation. Ce bien se compose de 5 pièces, dont 3 chambres, et s'étend sur une surface de 78 m² répartis sur 4 niveaux. Bien que la maison nécessite des travaux pour révéler tout son charme, elle est idéalement située au coeur du Nebbiu, ce qui ajoute à son attrait. Ne manquez pas cette opportunité d'un potentiel de valorisation significatif avec un projet d'architecte déjà prêt à vous être proposé. Anthony ALLEGRINI CASTA (EI) Agent Commercial - Numéro RSAC : 800 824 559 - Bastia.
Voir plus

Référence: 3820
Honoraires à la charge du vendeur.
Barème des honoraires
Maison à SORIO
Maison à SORIO
Maison à SORIO
Maison à SORIO
Géorisques

Les informations sur les risques auxquels ce bien est exposé sont disponibles sur le site Géorisques : www.georisques.gouv.fr

Ce site est protégé par hCaptcha Politique de confidentialité et Conditions d’utilisation s’appliquent.

En poursuivant votre navigation sans modifier vos paramètres, vous acceptez l'utilisation de cookies susceptibles de réaliser des statistiques de visite. Cliquez ici pour plus d'informations