Bénéficiez des services de nos partenaires locaux soigneusement sélectionnés
pour vous accompagner dans votre parcours d'achat immobilier

Appartement

— Elancourt 78990 —
332 000 €
80 m²
4 pièces
parkingbalcon/terrasseascenseur

Nos partenaires locaux
78990 - ELANCOURT - LES REAUX - APPARTEMENT 4 PIECES ENTIEREMENT RENOVE - 80 M²

efficity, l'agence qui estime votre bien en ligne, vous propose ce magnifique appartement situé dans un quartier résidentiel récent, sécurisé et de standing, recherché et très bien entretenu (Quartier Les Réaux).

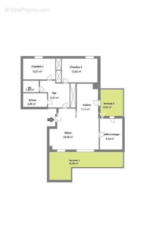
Spacieux 4 pièces entièrement rénové en 2022, répondant aux normes PMR, comprenant trois chambres avec de nombreux rangements, deux terrasses respectivement de 9 et 16 m² pour profiter d'un espace extérieur en toutes saisons, une cave et deux places de stationnement en sous-sol (dont une équipée d'une borne de recharge électrique).

Situé au 3ème étage, découvrez ce bel appartement traversant de 80 m² (79,46 m² Carrez) offrant de très agréables volumes ainsi qu'un confort de vie optimal, proche des commerces de quartier et des transports (arrêts de bus à proximité immédiate, gare de la Verrière reliant Paris-Montparnasse en 35 mn).

Il se compose de :
•Une entrée accueillante avec dégagement
•Un vaste séjour lumineux ouvrant sur une cuisine ouverte équipée de matériaux contemporains, idéale pour partager des moments conviviaux
•Trois chambres avec de nombreux rangements
•Une salle d'eau moderne avec espace buanderie
•Un wc séparé avec lave-mains
•De nombreux placards intégrés
•Deux terrasses de 9 et 16 m²

Pour compléter ce bien :
•Une cave de 6 m²
•Deux emplacements de parking en sous-sol dont un équipé d'une borne de recharge électrique
•Un local vélos et poussettes

Cet appartement allie parfaitement fonctionnalité, luminosité et environnement calme avec des espaces extérieurs généreux. Il n'attend plus que vous !
Ne tardez pas à le découvrir !
Contactez-moi dès maintenant pour une visite.
Les informations sur les risques auxquels ce bien est exposé sont disponibles sur le site Georisque : georisques. gouv. fr
Nicole Roquejoffre - EI - est Agent Commercial mandataire en immobilier, immatriculé au Registre Spécial des Agents Commerciaux du Tribunal de Commerce de Versailles sous le n°912494341.
Siège social du mandant : effiCity, 48 avenue de Villiers - 75017 PARIS - Société par Actions Simplifiée, société au capital de 132 373,05 euros, immatriculée au RCS Paris 497 617 746 et titulaire de la Carte professionnelle CPI 75[Coordonnées masquées]02 025 - CCI Paris IDF - Caisse de Garantie : GALIAN Assurances 89 rue de la Boétie 75008 Paris
Voir plus

Référence: 200380
Bien en copropriété. Nombre de lots : 189. Charges de copropriété : 244 €.
Honoraires à la charge du vendeur.
Barème des honoraires
DPE
A
B
C
D
E
F
G
GES
A
B
C
D
E
F
G
Appartement à ELANCOURT
Appartement à ELANCOURT
Appartement à ELANCOURT
Appartement à ELANCOURT
Appartement à ELANCOURT
Appartement à ELANCOURT
Appartement à ELANCOURT
Appartement à ELANCOURT
Appartement à ELANCOURT
Appartement à ELANCOURT
Appartement à ELANCOURT
Appartement à ELANCOURT
Géorisques

Les informations sur les risques auxquels ce bien est exposé sont disponibles sur le site Géorisques : www.georisques.gouv.fr

Ce site est protégé par hCaptcha Politique de confidentialité et Conditions d’utilisation s’appliquent.

En poursuivant votre navigation sans modifier vos paramètres, vous acceptez l'utilisation de cookies susceptibles de réaliser des statistiques de visite. Cliquez ici pour plus d'informations