Bénéficiez des services de nos partenaires locaux soigneusement sélectionnés
pour vous accompagner dans votre parcours d'achat immobilier

Vente appartement t4 _ paris

— Paris-13e 75013 —
560 000 €
75 m²
4 pièces

Nos partenaires locaux
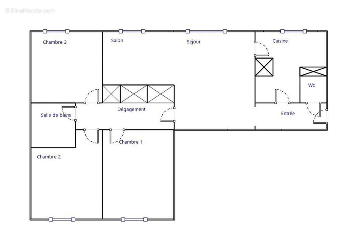
Découvrez ce bel appartement familial et lumineux de 4 pièces d'une superficie de 75,48 m² au 4ème étage avec ascenseur, niché au cœur d'un secteur calme et recherché du 13ème arrondissement. Ce logement est situé dans une résidence sécurisée bien entretenue avec gardien.

Dès l'entrée, vous serez séduit par une distribution optimale :

Espace de vie : Un séjour lumineux et une cuisine indépendante (possibilité d'ouverture pour un bel espace de vie contemporain).

Côté nuit : Trois chambres confortables, parfaites pour une famille ou pour aménager un bureau en télétravail.

Commodités : Une salle de bain fonctionnelle et des WC séparés.

Le plus : Une cave saine complète ce bien, idéale pour le stockage.

Situé au pied des commerces, des écoles et à deux pas des métros (Place d’Italie ou Campo-Formio), cet appartement offre un cadre de vie urbain privilégié tout en restant préservé de l'agitation.

À visiter sans tarder !

Une cave complète ce bien.

Un appartement idéal pour une famille ou un investissement, alliant calme, confort et accessibilité.

Nombre de lots dans la copropriété : 146
Pas de procédure en cours
DPE : D (200)

Taxe Foncière en 2025 : 1 550 €
Quote-part mensuelle des charges courantes du budget prévisionnel 2023 : 310 € soit 3 720 € / an.

Chauffage et production d’eau chaude : Collectif gaz

Honoraires à la charge du vendeur et Frais de notaire à la charge de l'acquéreur.

MODALITES DE VISITES ET DE REMISE DES OFFRES D’ACHAT Visites sur rendez-vous, renseignements et dépôt des candidatures avec dossier complet en nous contactant au [Coordonnées masquées].

Modalités de remise des offres : Par mail, remise en mains propres ou par tout autre moyen.

Conformément à l'article l.561-5 du code monétaire et financier, la copie de la pièce d'identité de tous les visiteurs sera demandée avant la visite. Nous vous remercions de faciliter cette démarche à votre conseiller.

Conformément à l’article R123-237 du code de commerce :

Trans’Actif Immobilier SAS

24 rue de Paradis-75 010 PARIS

N°SIRET 514 367 978 00046 - RCS Paris

Confortement l’article 94 du décret n°72-678 du 20 juillet 1972 « l’agence ne doit recevoir ni détenir d’autres fonds, effets ou valeurs que ceux représentatifs de sa rémunération ou de ses honoraires ».

Les informations sur les risques auxquels ce bien est exposé sont disponibles sur le site Géorisques : www.georisques.gouv.fr
Voir plus

Référence: 5670C0872 - CB
DPE
A
B
C
D
E
F
G
GES
A
B
C
D
E
F
G
Appartement à PARIS-13E
Appartement à PARIS-13E
Appartement à PARIS-13E
Appartement à PARIS-13E
Appartement à PARIS-13E
Appartement à PARIS-13E
Appartement à PARIS-13E
Appartement à PARIS-13E
Appartement à PARIS-13E
Appartement à PARIS-13E
Appartement à PARIS-13E
Appartement à PARIS-13E
Appartement à PARIS-13E
Géorisques

Les informations sur les risques auxquels ce bien est exposé sont disponibles sur le site Géorisques : www.georisques.gouv.fr

Ce site est protégé par hCaptcha Politique de confidentialité et Conditions d’utilisation s’appliquent.

En poursuivant votre navigation sans modifier vos paramètres, vous acceptez l'utilisation de cookies susceptibles de réaliser des statistiques de visite. Cliquez ici pour plus d'informations