Appartement calme et lumineux - T4 - 79 m² avec Balcon vue Tour Eiffel et Parkings - Rue Lucien Sampaix, Châtillon

— Chatillon 92320 —
399 000 €
79 m²
4 pièces
parkingbalcon/terrasseascenseur

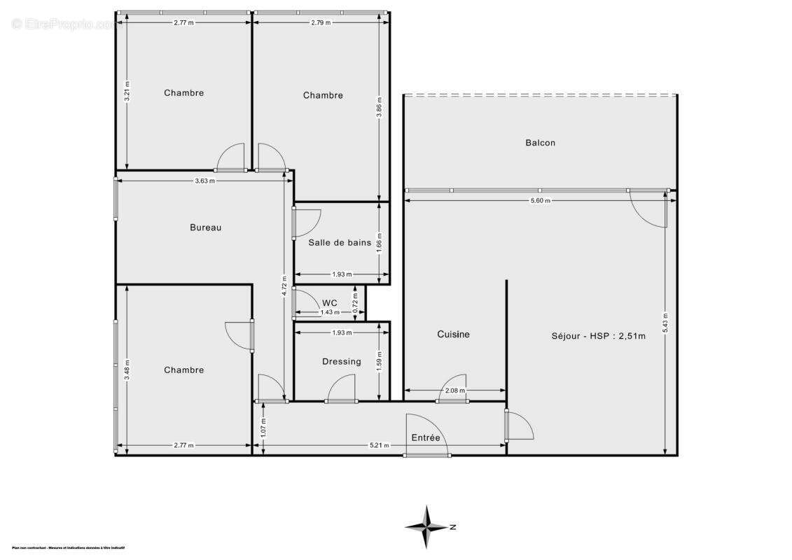
Situé au 4ème étage d'un immeuble (avec ascenseur) de 1982, cet appartement offre une surface Carrez de 78.64 m2. Exposé ouest, il bénéficie d'une bonne luminosité. Le bien dispose d'un grand balcon de 11 m2 et de deux parkings (dont un en sous terrain).

Planifiez facilement votre visite en choisissant le créneau qui vous convient depuis le site d'Hosman.

L'agencement de l'appartement comprend quatre pièces avec trois chambres et espace bureau. Il est équipé d'une cuisine semi-ouverte et d'une salle de bain avec baignoire rénovée en 2022, ainsi que de WC séparés.

Le chauffage et l'eau chaude sont alimentés par gaz individuel.

La taxe foncière annuelle est de 1514 €.

Localisation du bien :
Commodités: À proximité, vous trouverez divers commerces, restaurants et infrastructures culturelles. Le marché municipal est facilement accessible.
Espaces verts: La résidence offre un vaste espace vert entretenu et agréable.
Écoles: Les établissements scolaires comme l'école élémentaire Marcel Doret et le collège George Sand se situent dans un rayon de 500 mètres.
Transports: Arrêt de bus situé au pied de la résidence.
Proche de la future station de la ligne 15 (gare de Clamart), prévue en service fin 2026. La station Tramway Centre deChâtillon se trouve à 8minutes à pied.
La station de MétroChâtillon‐Montrouge (ligne 13) est à environ 15minutes à pied, offrant un accès aisé à Paris et aux environs.

Le bien est soumis au statut de copropriété. Les parties communes sont en bon état et des travaux récents incluent la sécurisation de la résidence en Juillet 2025.
Les charges de copropriété s'élèvent à 480 € par trimestre.

Hosman s'efforce de réinventer l'agence immobilière en offrant un service innovant et transparent aux
acheteurs et aux vendeurs. Nos frais d'agence sont de 10900 euros fixes à la charge du vendeur.

Si vous êtes un professionnel de l'immobilier (agent, mandataire ou chasseur immobilier), sachez que
toutes les annonces Hosman sont ouvertes à la collaboration. N'hésitez pas à nous contacter pour en
discuter.
Voir plus

Référence: 8254e4
Bien en copropriété. Charges de copropriété : 133 €.
Honoraires à la charge du vendeur.
DPE
A
B
C
D
E
F
G
GES
A
B
C
D
E
F
G
Appartement à CHATILLON
Appartement à CHATILLON
Appartement à CHATILLON
Appartement à CHATILLON
Appartement à CHATILLON
Appartement à CHATILLON
Appartement à CHATILLON
Appartement à CHATILLON
Appartement à CHATILLON
Appartement à CHATILLON
Appartement à CHATILLON
Appartement à CHATILLON
Appartement à CHATILLON
Appartement à CHATILLON
Géorisques

Les informations sur les risques auxquels ce bien est exposé sont disponibles sur le site Géorisques : www.georisques.gouv.fr

Ce site est protégé par hCaptcha Politique de confidentialité et Conditions d’utilisation s’appliquent.

En poursuivant votre navigation sans modifier vos paramètres, vous acceptez l'utilisation de cookies susceptibles de réaliser des statistiques de visite. Cliquez ici pour plus d'informations