Bénéficiez des services de nos partenaires locaux soigneusement sélectionnés
pour vous accompagner dans votre parcours d'achat immobilier

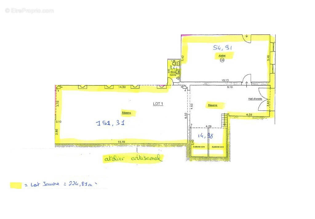
A vendre Local idéal pour artisan Volumes généreux coeur de bastide Libournaise

— Libourne 33500 —
231 000 €
224 m²

Nos partenaires locaux
Vous recherchez un espace fonctionnel pour développer votre activité artisanale ? Ce local offre une configuration idéale pour un atelier, un espace de production ou une activité mixte.
Il se compose de :
. Un hall d’entrée accessible par une porte de garage avec rideau métallique motorisé, parfait pour les livraisons et le matériel volumineux . Un bureau / atelier modulable, adaptable selon vos besoins . Un vaste espace de stockage offrant de beaux volumes . Des sanitaires
Ce local fait actuellement partie d’un ensemble immobilier. Une division du lot ainsi que la création de compteurs individuels (eau/électricité) seront à prévoir.
Grâce à ses surfaces généreuses, ses accès pratiques et sa configuration polyvalente, ce bien présente un fort potentiel pour une activité artisanale, professionnelle ou mixte.
Voir plus

Bien en copropriété. Nombre de lots : 11.
Honoraires d'agence de 10% à la charge de l'acquéreur
Barème des honoraires
Commerce à LIBOURNE
Commerce à LIBOURNE
Commerce à LIBOURNE
Commerce à LIBOURNE
Commerce à LIBOURNE
Géorisques

Les informations sur les risques auxquels ce bien est exposé sont disponibles sur le site Géorisques : www.georisques.gouv.fr

Ce site est protégé par hCaptcha Politique de confidentialité et Conditions d’utilisation s’appliquent.

En poursuivant votre navigation sans modifier vos paramètres, vous acceptez l'utilisation de cookies susceptibles de réaliser des statistiques de visite. Cliquez ici pour plus d'informations