Bénéficiez des services de nos partenaires locaux soigneusement sélectionnés
pour vous accompagner dans votre parcours d'achat immobilier

Maison F6 avec garage et atelier

— La Ville-Du-Bois 91620 —
375 000 €
120 m² / 692 m²
6 pièces
parkingjardin

Nos partenaires locaux
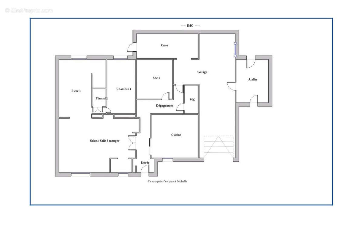
A découvrir absolument, à La Ville du Bois, dans un quartier pavillonnaire recherché, nous vous proposons, sur un terrain de 692 m2, cette maison avec une vie de plain-pied possible, de type F6 de 120 m2 habitables (222 m2 en surface totale, annexes incluses).
Une fois le portail franchi, vous apprécierez les places de stationnement et l'accès direct au garage placé entre les deux entrées : d'un côté l'atelier qui peut être aménagé en dépendance avec son propre jardin arrière de 125 m2 ; de l'autre, l'entrée de l'habitation principale.
Le rez-de-chaussée se compose d'une cuisine dînatoire située en face du vaste séjour/salle à manger, ouvert sur la terrasse avant et le jardin d'agrément. Prolongé d'un espace bureau/bilbiothèque qui permet d'avoir au total une pièce à vivre de 38 m2, donnant accès à un petit jardin arrière. Une chambre, une salle d'eau récente, des wc séparés et une buanderie rendent ce niveau encore plius confortable à vivre.
Au 1er étage, vous apprécierez les deux chambres classiques, ainsi qu'une troisième sous mansarde, un dressing lumineux, une salle d'eau et des wc.
L'entretien impeccable de cette demeure familiale vous séduira, ainsi que le ravalement réalisé récemment et les nombreuses possibilités d'aménagement.
Située proche d'espaces naturels, à proximité des commerces, des écoles jusqu'au lycée, avec un accès en 2 min au plateau de Nozay qui dessert les grands axes routiers comme la A10 ou la N118 et un bon maillage de bus jusqu'aux gares les plus proches : Massy-Palaiseau (RER C-B et TGV) et Epinay sur Orge (RER C). - Annonce rédigée et publiée par un Agent Mandataire -
Voir plus

Référence: 27577
Honoraires à la charge du vendeur.
Barème des honoraires
DPE
A
B
C
D
E
F
G
GES
A
B
C
D
E
F
G
Maison à LA VILLE-DU-BOIS
Maison à LA VILLE-DU-BOIS
Maison à LA VILLE-DU-BOIS
Maison à LA VILLE-DU-BOIS
Maison à LA VILLE-DU-BOIS
Maison à LA VILLE-DU-BOIS
Maison à LA VILLE-DU-BOIS
Maison à LA VILLE-DU-BOIS
Maison à LA VILLE-DU-BOIS
Maison à LA VILLE-DU-BOIS
Maison à LA VILLE-DU-BOIS
Maison à LA VILLE-DU-BOIS
Maison à LA VILLE-DU-BOIS
Maison à LA VILLE-DU-BOIS
Maison à LA VILLE-DU-BOIS
Maison à LA VILLE-DU-BOIS
Maison à LA VILLE-DU-BOIS
Maison à LA VILLE-DU-BOIS
Maison à LA VILLE-DU-BOIS
Maison à LA VILLE-DU-BOIS
Maison à LA VILLE-DU-BOIS
Maison à LA VILLE-DU-BOIS
Maison à LA VILLE-DU-BOIS
Maison à LA VILLE-DU-BOIS
Maison à LA VILLE-DU-BOIS
Maison à LA VILLE-DU-BOIS
Maison à LA VILLE-DU-BOIS
Maison à LA VILLE-DU-BOIS
Géorisques

Les informations sur les risques auxquels ce bien est exposé sont disponibles sur le site Géorisques : www.georisques.gouv.fr

Ce site est protégé par hCaptcha Politique de confidentialité et Conditions d’utilisation s’appliquent.

En poursuivant votre navigation sans modifier vos paramètres, vous acceptez l'utilisation de cookies susceptibles de réaliser des statistiques de visite. Cliquez ici pour plus d'informations