Bénéficiez des services de nos partenaires locaux soigneusement sélectionnés
pour vous accompagner dans votre parcours d'achat immobilier

Appartement 65 m² à Juvisy-Sur-Orge

— Juvisy-Sur-Orge 91260 —
262 500 €
65 m²
3 pièces
parkingbalcon/terrasseascenseur

Nos partenaires locaux
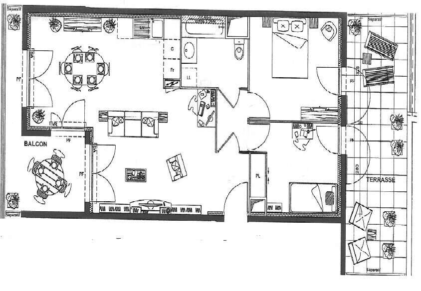
Découvrez ce magnifique appartement T3 de 65,40 m², niché au 2ème étage d'une résidence de standing construite en 2012. Cet appartement vous offre un cadre de vie idéal pour les familles ou les professionnels en quête de sérénité.

Le séjour de 30m² est spacieux et baigné de lumière grâce à son exposition sud-est., la cuisine aménagée, est un véritable espace convivial. Le séjour donne sur un balcon de 10m² avec un coin repas.
Cet appartement comprend une salle de bains avec wc ainsi que deux chambres qui donnent sur une terrasse de 19 m² idéale pour profiter des beaux jours et des soirées étoilées.

Le chauffage collectif garantit un confort thermique optimal tout au long de l'année. L'ascenseur facilite l'accès à votre logement, et le stationnement intérieur sécurisé vous assure une tranquillité d'esprit.

La gare de Juvisy est à 5 minutes à pied et à proximité, vous trouverez plusieurs commodités pratiques pour faciliter votre quotidien.

Honoraires à la charge du vendeur. Dans une copropriété de 187 lots. Quote-part moyenne du budget prévisionnel 2 916 €/an. Aucune procédure n'est en cours. Classe énergie C, Classe climat C Montant moyen estimé des dépenses annuelles d'énergie pour un usage standard, établi à partir des prix de l'énergie de l'année 2021 : entre 390.00 et 560.00 €. Les informations sur les risques auxquels ce bien est exposé sont disponibles sur le site Géorisques : georisques.gouv.fr.
Voir plus

Référence: VA2553-WURTZ
Bien en copropriété. Nombre de lots : 187. Charges de copropriété : 2916 €.
Honoraires à la charge du vendeur.
Barème des honoraires
DPE
A
B
C
D
E
F
G
GES
A
B
C
D
E
F
G
Appartement à JUVISY-SUR-ORGE
Appartement à JUVISY-SUR-ORGE
Appartement à JUVISY-SUR-ORGE
Appartement à JUVISY-SUR-ORGE
Appartement à JUVISY-SUR-ORGE
Appartement à JUVISY-SUR-ORGE
Appartement à JUVISY-SUR-ORGE
Géorisques

Les informations sur les risques auxquels ce bien est exposé sont disponibles sur le site Géorisques : www.georisques.gouv.fr

Ce site est protégé par hCaptcha Politique de confidentialité et Conditions d’utilisation s’appliquent.

En poursuivant votre navigation sans modifier vos paramètres, vous acceptez l'utilisation de cookies susceptibles de réaliser des statistiques de visite. Cliquez ici pour plus d'informations