Bénéficiez des services de nos partenaires locaux soigneusement sélectionnés
pour vous accompagner dans votre parcours d'achat immobilier

St Cyr Sur Loire - Résidence l'Eclat

— Saint-Cyr-Sur-Loire 37540 —
434 000 €
80 m² / 24 m²
3 pièces
jardin

Nos partenaires locaux
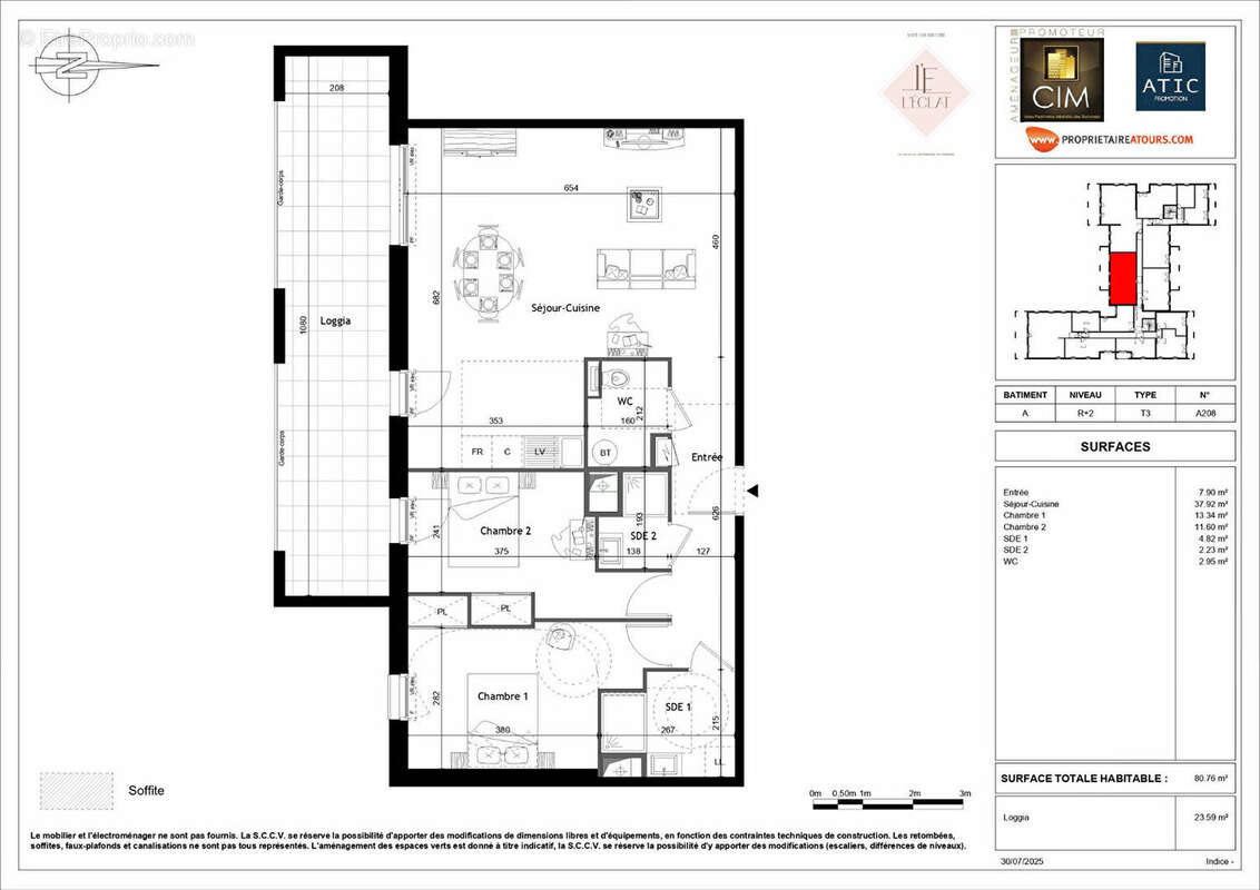
Découvrez ce programme neuf allant du T1 au T4 idéalement situé à Saint Cyr sur Loire proche commerces, bus fil bleu et un environnement verdoyant. Cette résidence de standing dont la livraison est prévue pour le 4ème trimestre 2027 vous propose un T3 au 2ème étage de 80.76 m² avec 2 places de parking. Luminosité, intimité et calme . Renseignez vous pour connaître votre futur projet Laure DORADOUX [Coordonnées masquées] Voici le lien https://www.atic-promotion.fr/l-eclat/

Référence: 1628.A208
Appartement à SAINT-CYR-SUR-LOIRE
Appartement à SAINT-CYR-SUR-LOIRE
Géorisques

Les informations sur les risques auxquels ce bien est exposé sont disponibles sur le site Géorisques : www.georisques.gouv.fr

Ce site est protégé par hCaptcha Politique de confidentialité et Conditions d’utilisation s’appliquent.

En poursuivant votre navigation sans modifier vos paramètres, vous acceptez l'utilisation de cookies susceptibles de réaliser des statistiques de visite. Cliquez ici pour plus d'informations