Bénéficiez des services de nos partenaires locaux soigneusement sélectionnés
pour vous accompagner dans votre parcours d'achat immobilier

Appartement Courbevoie Centre- Ville Gare 4/5 pièces 95 m²

— Courbevoie 92400 —
624 750 €
95 m²
5 pièces
balcon/terrasseascenseur

Nos partenaires locaux
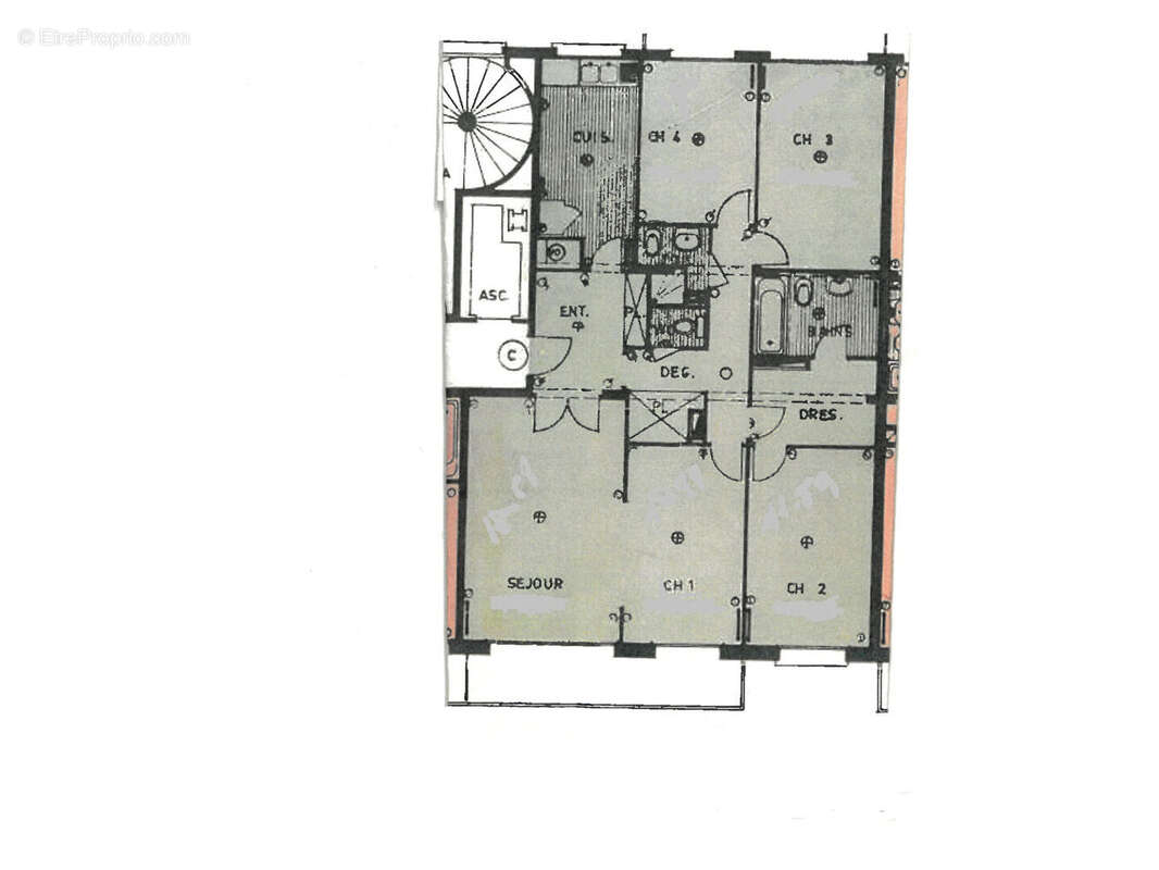
Appartement 4/5 pièces 95 m² Étage élevé Balcons Vue dégagée. Situé au 5ème étage avec ascenseur d'un immeuble en Pierre de Taille. L'appartement se compose d'une entrée, d'un salon / salle à manger de 29 m², ouvrant sur un balcon d'une cuisine indépendante dinatoire. De trois chambres, dont deux avec balcon .D'une salle de bains, d'une salle d'eau et d''un WC indépendant. Cave en sous-sol. L'ensemble est clair, calme, avec un plan fonctionnel. Gare SNCF Courbevoie à 3 minutes à pied. Accès rapide Métro ligne 1, RER A, Tram T2. Proximité immédiate des écoles, commerces et services. Un emplacement idéal pour une famille ou des actifs travaillant à La Défense ou à Paris. Visite virtuelle sur demande. (5.00 % honoraires TTC à la charge de l'acquéreur.) Copropriété de 213 lots - dont 100 lots habitation. Charges annuelles : 5540 euros. Magda PATRICIO (EI) Agent Commercial - Numéro RSAC : 888254919 - NANTERRE.
Voir plus

Référence: 13529
Bien en copropriété. Nombre de lots : 213. Charges de copropriété : 5540 €.
Honoraires d'agence de 5% à la charge de l'acquéreur
Barème des honoraires
DPE
A
B
C
D
E
F
G
GES
A
B
C
D
E
F
G
Appartement à COURBEVOIE
Appartement à COURBEVOIE
Appartement à COURBEVOIE
Appartement à COURBEVOIE
Appartement à COURBEVOIE
Appartement à COURBEVOIE
Appartement à COURBEVOIE
Appartement à COURBEVOIE
Appartement à COURBEVOIE
Appartement à COURBEVOIE
Appartement à COURBEVOIE
Géorisques

Les informations sur les risques auxquels ce bien est exposé sont disponibles sur le site Géorisques : www.georisques.gouv.fr

Ce site est protégé par hCaptcha Politique de confidentialité et Conditions d’utilisation s’appliquent.