Bénéficiez des services de nos partenaires locaux soigneusement sélectionnés
pour vous accompagner dans votre parcours d'achat immobilier

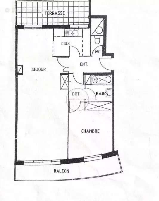
Appartement 74 m² à Paris-12e

— Paris-12e 75012 —
690 000 €
74 m²
3 pièces
parkingbalcon/terrasseascenseur

Nos partenaires locaux
Paris (75012) secteur Jardin de Reuilly, Opportunity vous propose au métro Montgallet, à proximité de la coulée verte, des transports et des commerces.
En étage élevé avec ascenseur d'un immeuble moderne de 1994 entretenu et sécurisé.
Un appartement traversant, lumineux et très calme aménagée en: une entrée, une salon de 25m² avec grand balcon, une salle à manger avec loggia et une cuisine semi-ouverte, une chambre avec rangements, une salle de bains, un toilettes séparées.
Une cave au sous-sol et possibilité de parking en sus.

- Nous vous informons que conformément à l'article L.561-5 du code monétaire et financier, une pièce d'identité vous sera demandée avant chaque visite.

- La présente annonce immobilière vise 1 lot principal situé dans une copropriété formant 84 lots au total ne faisant l'objet d'aucune procédure en cours et d'un montant moyen de la quote-part du budget prévisionnel de 252 euros par mois soit 3 024 euros annuel déclaré par le vendeur.

- Prix de vente avec honoraires d'agence inclus à la charge de l’acquéreur. 690 000 euros
Prix hors honoraires : 670 000 euros soit 2,99 % d’honoraires d’agence TTC.

- Information d'affichage énergétique sur ce bien: DPE D indice 217 et GES B indice 6.
DPE ancienne version réalisé selon une méthode qui ne garantit pas la même fiabilité que celle en vigueur depuis le 01/07/2021

- La présente annonce immobilière a été rédigée sous la responsabilité éditoriale de M. Da Cunha, pour l'agence Opportunity Montauban Transactions immatriculée au Tribunal de Montauban sous le numéro 899281844
Voir plus

Référence: 85676379
DPE
A
B
C
D
E
F
G
Appartement à PARIS-12E
Appartement à PARIS-12E
Appartement à PARIS-12E
Appartement à PARIS-12E
Appartement à PARIS-12E
Appartement à PARIS-12E
Appartement à PARIS-12E
Appartement à PARIS-12E
Géorisques

Les informations sur les risques auxquels ce bien est exposé sont disponibles sur le site Géorisques : www.georisques.gouv.fr

Ce site est protégé par hCaptcha Politique de confidentialité et Conditions d’utilisation s’appliquent.

En poursuivant votre navigation sans modifier vos paramètres, vous acceptez l'utilisation de cookies susceptibles de réaliser des statistiques de visite. Cliquez ici pour plus d'informations