Bénéficiez des services de nos partenaires locaux soigneusement sélectionnés
pour vous accompagner dans votre parcours d'achat immobilier

Appartement 2 pièces avec balcon Dernier niveau sous combles

— Draveil 91210 —
236 000 €
39 m²
2 pièces
parkingbalcon/terrasse

Nos partenaires locaux
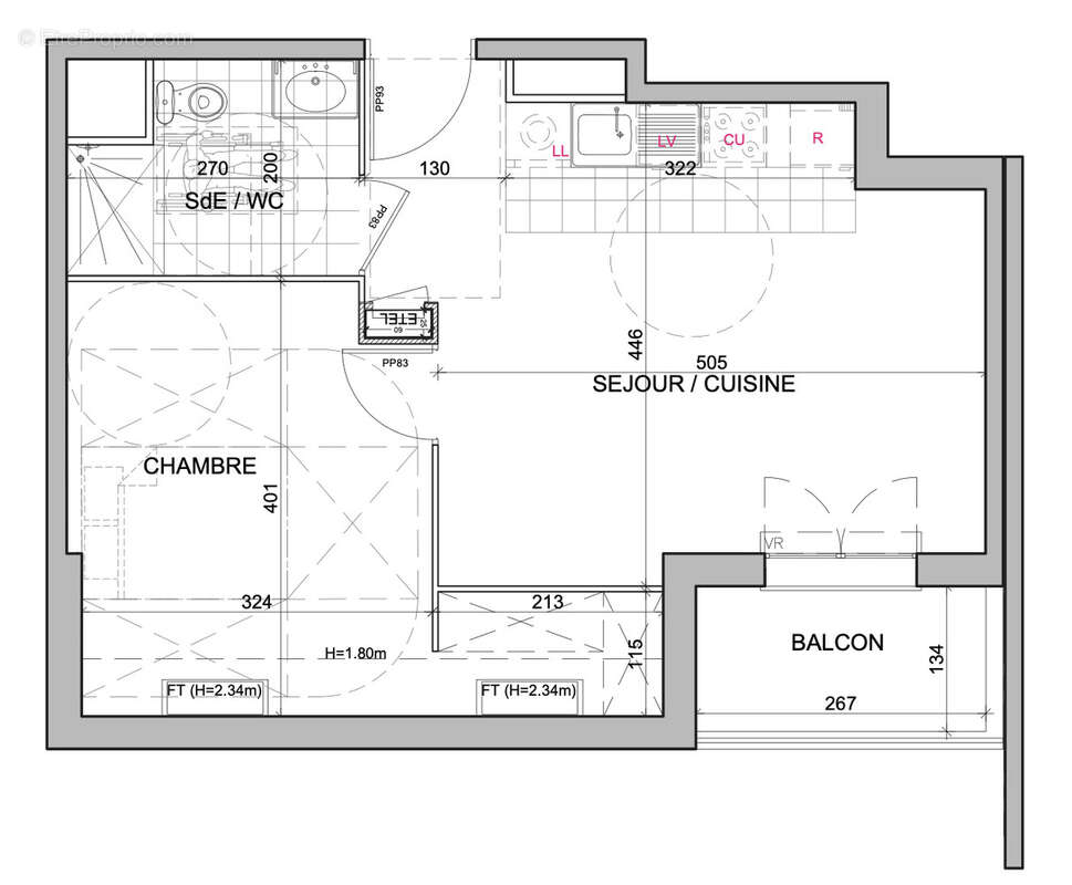
Appartement 2 pièces situé au dernier étage sous combles , à proximité des commodités.
Le logement développe une surface habitable de 39,71 m2. Il se compose d’un séjour avec cuisine intégrée de 22,40 m2, d’une chambre de 12,54 m2, ainsi que d’une salle d’eau avec WC de 4,77 m2. Le séjour donne accès à un balcon de 3,58 m2, constituant un espace extérieur attenant au logement.
La résidence comprend plusieurs logements répartis sur différents niveaux. Les accès sont sécurisés. Des stationnements et des locaux vélos complètent l’ensemble.
Contactez-nous pour plus d'informations ! 
Une place de stationnement est incluse dans le prix.
Images d'illustration, non contractuelles
Voir plus

Bien en copropriété. Nombre de lots : 84.
Barème des honoraires
DPE
A
B
C
D
E
F
G
GES
A
B
C
D
E
F
G
Appartement à DRAVEIL
Appartement à DRAVEIL
Appartement à DRAVEIL
Appartement à DRAVEIL
Géorisques

Les informations sur les risques auxquels ce bien est exposé sont disponibles sur le site Géorisques : www.georisques.gouv.fr

Ce site est protégé par hCaptcha Politique de confidentialité et Conditions d’utilisation s’appliquent.

En poursuivant votre navigation sans modifier vos paramètres, vous acceptez l'utilisation de cookies susceptibles de réaliser des statistiques de visite. Cliquez ici pour plus d'informations