Bénéficiez des services de nos partenaires locaux soigneusement sélectionnés
pour vous accompagner dans votre parcours d'achat immobilier

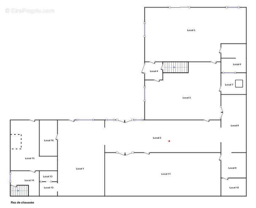
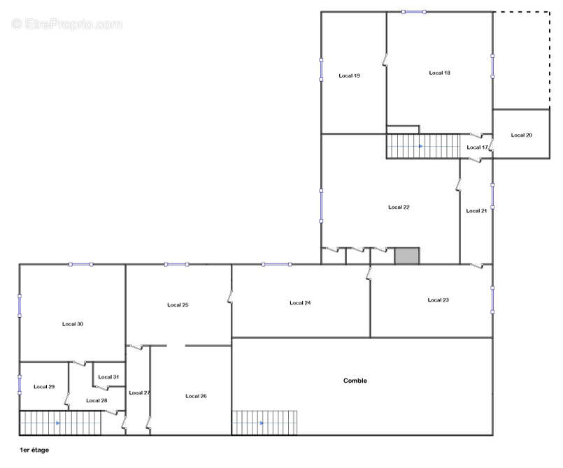
Immeuble de rapport Saillenard (71580) 320m2 avec cour

— Saillenard 71580 —
195 000 €
320 m² / 474 m²
jardin

Nos partenaires locaux
NOUVEAUTE ET EXCLUSIVITE STEPHANE PLAZA IMMOBILIER LONS LE SAUNIER pour cet immeuble en pleine propriété de plus de 320m² exploitables. IDEAL INVESTISSEUR et/ou PROFESSIONNEL. C'est Charlotte MACHADO qui vous présente ce bien dans le village dynamique de Saillenard, à 16km de Lons-le-Saunier, 15 minutes de Louhans et 5 minutes de l'autoroute (A39). Contact au [Coordonnées masquées]. Cet immeuble en pleine propriété avec cour privée à fort potentiel se compose en rez-de-chaussée d'un local commercial de 228m². Un changement de destination est envisageable pour transformation en appartement(s). Au 1er étage, un appartement de 92m² et au 2ème étage de combles aménageables. Idéalement situé en plein coeur de Saillenard, à un carrefour stratégique, cet immeuble de rapport offre de multiples possibilités d'aménagement pour un investissement locatif pur ou un projet mixte (appartements + activités professionnelles et/ou commerciales). Fort potentiel de valorisation et de rentabilité après réaménagement. Côté technique: fenêtres PVC double vitrage, assainissement tout-à-l'égout, pas de travaux toiture, chaudière fioul, DPE-G. Pour plus de renseignements, contactez Charlotte MACHADO au [Coordonnées masquées], agent immobilier, RSAC 979 222 361, membre du réseau Stéphane Plaza Immobilier. Mandat exclusif 200746, honoraires 5,5% TTC à la charge du vendeur. Retrouvez ce bien sur notre site pour plus d'infos lonslesaunier.stephaneplazaimmobilier.com Les informations sur les risques auxquels ce bien est exposé sont disponibles sur le site Géorisques www.georisques.gouv.fr Commerçant indépendant membre du réseau Stéphane Plaza Immobilier. Charlotte MACHADO (EI) Agent Commercial - Numéro RSAC : 979 222 361 - Lons-Le-Saunier.
Voir plus

Référence: 200746
Honoraires à la charge du vendeur.
Barème des honoraires
DPE
A
B
C
D
E
F
G
GES
A
B
C
D
E
F
G
Appartement à SAILLENARD
Appartement à SAILLENARD
Appartement à SAILLENARD
Appartement à SAILLENARD
Appartement à SAILLENARD
Appartement à SAILLENARD
Appartement à SAILLENARD
Appartement à SAILLENARD
Appartement à SAILLENARD
Appartement à SAILLENARD
Appartement à SAILLENARD
Appartement à SAILLENARD
Appartement à SAILLENARD
Appartement à SAILLENARD
Appartement à SAILLENARD
Géorisques

Les informations sur les risques auxquels ce bien est exposé sont disponibles sur le site Géorisques : www.georisques.gouv.fr

Ce site est protégé par hCaptcha Politique de confidentialité et Conditions d’utilisation s’appliquent.

En poursuivant votre navigation sans modifier vos paramètres, vous acceptez l'utilisation de cookies susceptibles de réaliser des statistiques de visite. Cliquez ici pour plus d'informations