Bénéficiez des services de nos partenaires locaux soigneusement sélectionnés
pour vous accompagner dans votre parcours d'achat immobilier

Appartement Marseille 3 pièce(s) 88 m2

— Marseille-2e 13002 —
469 000 €
88 m²
3 pièces

Nos partenaires locaux
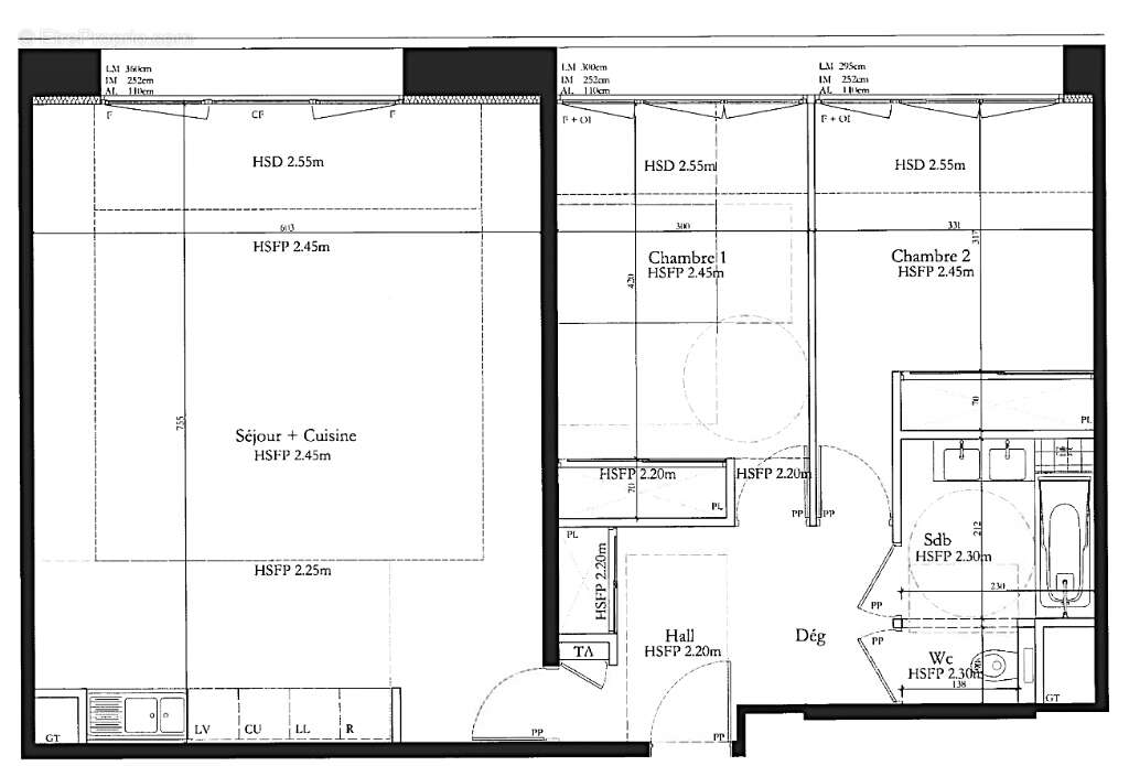
MARSEILLE 2e (13002) Le Castel (rue Mazenod) T3 88 m² Carrez Grand séjour 47 m² 3e/7 DPE B A deux pas de la Cathédrale de la Major, du MuCEM et du centre commercial "Les Terrasses du Port" découvrez ce superbe T3 de 88 m² Carrez situé rue Mazenod au 3e étage sur 7 avec ascenseur, au sein de la résidence Le Castel. Un emplacement recherché au coeur d'Euroméditerranée/La Joliette, où tout se fait facilement à pied, tout en restant parfaitement connecté aux axes A55 / A7 / A50. Le Castel n'est pas une résidence comme les autres : il s'agit de la réhabilitation haut de gamme d'un immeuble Art déco conçu par l'architecte Gaston Castel (fin des années 1920), avec la conservation/restauration d'éléments patrimoniaux, dont des façades classées. L'appartement donne sur la très calme rue Mazenod récemment réaménagée offrant une spectaculaire perspective sur la cathédrale de la Major. A l'intérieur, l'appartement séduit par ses volumes rares et sa distribution idéale : - Entrée spacieuse d'environ 9 m² avec rangements - Pièce de vie spectaculaire : séjour d'environ 47 m² , avec cuisine américaine aménagée et électroménager haut de gamme*(réfrigérateur, congélateur, four, lave-vaisselle, hotte) - 2 chambres avec placards (env. 15 m² et 12,7 m²) - Salle de bain moderne avec double vasque (env. 5 m²) - WC séparés Confort, insonorisation et sobriété énergétique sont au rendez-vous : DPE B / GES A grâce au système Thassalia (réseau de chaleur et de froid utilisant l'énergie de l'eau de mer, déployé sur Euroméditerranée). Charges : 240 euros/mois, incluant notamment le système Thassalia (eau chaude, chauffage et climatisation). Aucune procédure en cours dans la copropriété. Alix ROUSSEAU (EI) Agent Commercial - Numéro RSAC : - .
Voir plus

Référence: 79
Honoraires à la charge du vendeur.
DPE
A
B
C
D
E
F
G
GES
A
B
C
D
E
F
G
Appartement à MARSEILLE-2E
Appartement à MARSEILLE-2E
Appartement à MARSEILLE-2E
Appartement à MARSEILLE-2E
Appartement à MARSEILLE-2E
Appartement à MARSEILLE-2E
Appartement à MARSEILLE-2E
Appartement à MARSEILLE-2E
Appartement à MARSEILLE-2E
Appartement à MARSEILLE-2E
Appartement à MARSEILLE-2E
Appartement à MARSEILLE-2E
Appartement à MARSEILLE-2E
Appartement à MARSEILLE-2E
Géorisques

Les informations sur les risques auxquels ce bien est exposé sont disponibles sur le site Géorisques : www.georisques.gouv.fr

Ce site est protégé par hCaptcha Politique de confidentialité et Conditions d’utilisation s’appliquent.

En poursuivant votre navigation sans modifier vos paramètres, vous acceptez l'utilisation de cookies susceptibles de réaliser des statistiques de visite. Cliquez ici pour plus d'informations