Bénéficiez des services de nos partenaires locaux soigneusement sélectionnés
pour vous accompagner dans votre parcours d'achat immobilier

Vente maison Marseille 13ème - Estimation gratuite - gestion et Syndic disponibles

— Marseille-13e 13013 —
329 000 €
275 m²
5 pièces
parking

Nos partenaires locaux
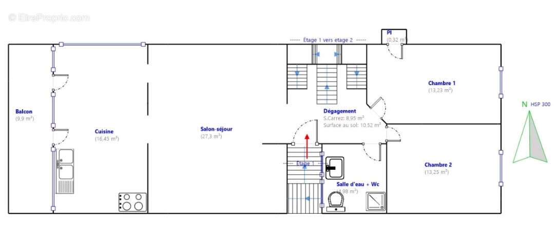
Maison Marseille 13013, 5 pièces de 107 m2 carrez pour 275m² au sol, triplex balcon, parking. Jérémy de l'agence Human Immobilier Marseille vous propose en exclusivité : Situé dans le secteur de Saint-Just, immeuble R+2 proposant, au rez-de-chaussée, un garage d'une superficie de 62 m² ainsi qu'un espace atelier de 25 m² avec mezzanine de 24 m². L'étage principal développe une surface d'environ 84 m² et se compose de deux chambres, d'un séjour, d'une cuisine indépendante, d'une salle d'eau avec WC, ainsi que d'un accès à un balcon. L'ensemble bénéficie de beaux volumes et d'une bonne luminosité. Les combles ont été aménagés et offrent deux chambres supplémentaires de 17 m² loi Carrez chacune. Taxe foncière : 1592 euros REF : JG-VERD Nos agences spécialisées dans l'immobilier à Marseille, vous accompagne dans vos projets de vente, achat et location sur Marseille et ses environs. Nous proposons également des services de gestion locative, de syndic de copropriété et des estimations immobilières offertes et sans engagement. Contactez Jeremy Guigues pour une estimation gratuite de votre bien Jeremy GUIGUES (EI) Agent Commercial - Numéro RSAC : 879 656 379 - MARSEILLE.
Voir plus

Référence: 1496
Honoraires à la charge du vendeur.
Barème des honoraires
DPE
A
B
C
D
E
F
G
GES
A
B
C
D
E
F
G
Maison à MARSEILLE-13E
Maison à MARSEILLE-13E
Maison à MARSEILLE-13E
Maison à MARSEILLE-13E
Maison à MARSEILLE-13E
Maison à MARSEILLE-13E
Maison à MARSEILLE-13E
Maison à MARSEILLE-13E
Maison à MARSEILLE-13E
Maison à MARSEILLE-13E
Maison à MARSEILLE-13E
Maison à MARSEILLE-13E
Maison à MARSEILLE-13E
Géorisques

Les informations sur les risques auxquels ce bien est exposé sont disponibles sur le site Géorisques : www.georisques.gouv.fr

Ce site est protégé par hCaptcha Politique de confidentialité et Conditions d’utilisation s’appliquent.