Bénéficiez des services de nos partenaires locaux soigneusement sélectionnés
pour vous accompagner dans votre parcours d'achat immobilier

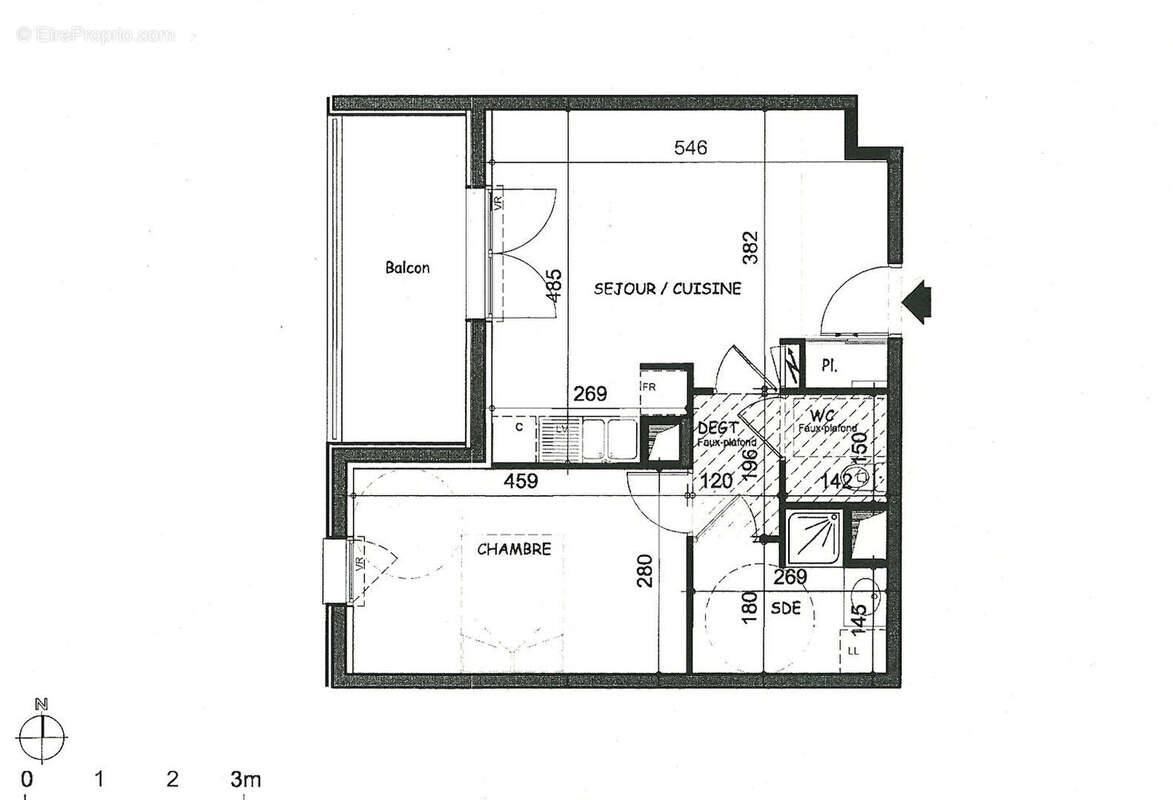
Appartement Tours 2 pièce(s) 45.36 m2

— Tours 37000 —
149 900 €
45 m²
2 pièces
balcon/terrasseascenseur

Nos partenaires locaux
Une exclusivité LaFORÊT Situé au 6e étage sur 7 d'une résidence récente de 2013, cet appartement T2 coche toutes les cases pour un premier achat, un pied-à-terre ou un investissement. Idéalement placé à deux pas du tram, il offre un quotidien simple et fluide, avec les commerces, services et transports accessibles à pied. L'appartement se distingue par sa luminosité, grâce à son étage élevé. Il se compose d'une pièce de vie agréable, d'une cuisine fonctionnelle, d'une chambre confortable et d'une salle d'eau moderne. La résidence est bien entretenue, sécurisée, et répond aux standards actuels de confort et de performance énergétique. Un bien clé en main, dans un secteur recherché, alliant emplacement, confort et modernité. A découvrir rapidement. (7.07 % honoraires TTC à la charge de l'acquéreur.) Vincent PETIT (EI) Agent Commercial - Numéro RSAC : 2023AC00100 - TOURS (37).
Voir plus

Référence: 278
Honoraires d'agence de 7.07% à la charge de l'acquéreur
Barème des honoraires
DPE
A
B
C
D
E
F
G
GES
A
B
C
D
E
F
G
Appartement à TOURS
Appartement à TOURS
Appartement à TOURS
Appartement à TOURS
Appartement à TOURS
Appartement à TOURS
Appartement à TOURS
Appartement à TOURS
Appartement à TOURS
Appartement à TOURS
Appartement à TOURS
Géorisques

Les informations sur les risques auxquels ce bien est exposé sont disponibles sur le site Géorisques : www.georisques.gouv.fr

Ce site est protégé par hCaptcha Politique de confidentialité et Conditions d’utilisation s’appliquent.