Bénéficiez des services de nos partenaires locaux soigneusement sélectionnés
pour vous accompagner dans votre parcours d'achat immobilier

Montpellier- hopitaux facultes apt t3

— Montpellier 34090 —
215 000 €
60 m²
3 pièces
parking

Nos partenaires locaux
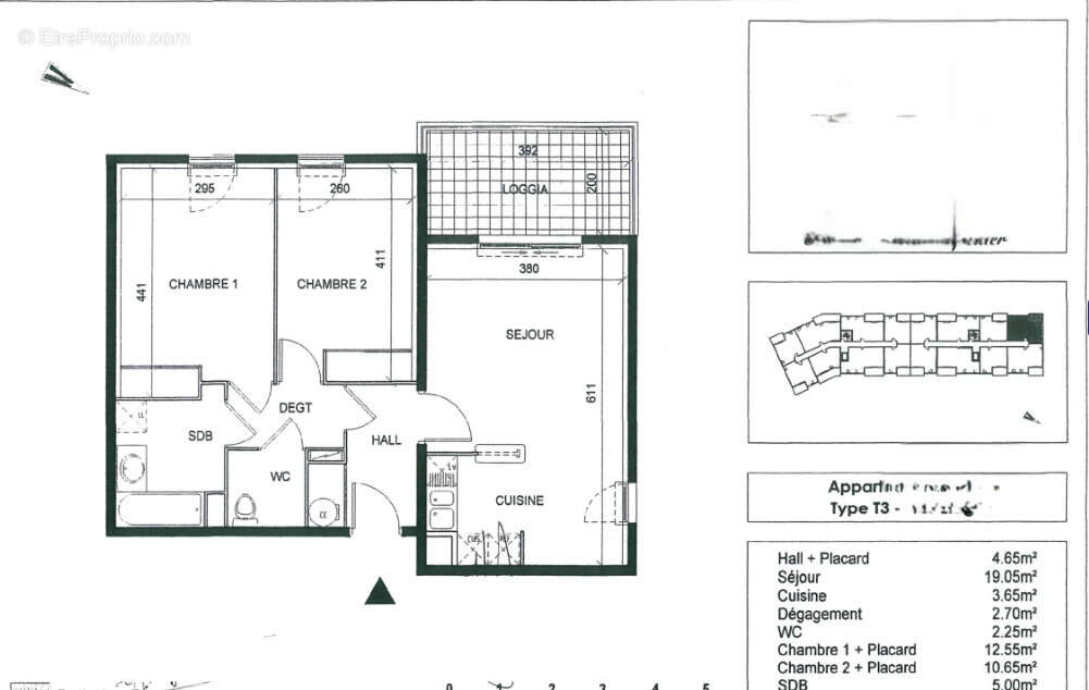
MONTPELLIER - QUARTIER HOPITAUX FACULTES- Dans une résidence securisée située à proximité de l’école supérieur de chimie, appartement de type T3 de 60m2 situé au 1er étage avec ascenseur comprenant un séjour avec cuisine donnant sur une terrasse de 7m2 exposée ouest , deux chambres, une salle de bains . Ainsi qu’un garage. Libre de tout locataire à compter de juillet 2026.
Bien soumis au statut juridique de la copropriété Charges annuelles de copropriété (Montant moyen annuel quote-part du budget prévisionnel vendeur) :1500€
Pour tous renseignements complementaires ou visite veuillez contacter : jessica ANDRIEUX [Coordonnées masquées] - Agence AMJ IMMO
Voir plus

Bien en copropriété.
Honoraires d'agence de 4.88% à la charge de l'acquéreur
Barème des honoraires
DPE
A
B
C
D
E
F
G
GES
A
B
C
D
E
F
G
Appartement à MONTPELLIER
Appartement à MONTPELLIER
Appartement à MONTPELLIER
Appartement à MONTPELLIER
Appartement à MONTPELLIER
Appartement à MONTPELLIER
Appartement à MONTPELLIER
Appartement à MONTPELLIER
Appartement à MONTPELLIER
Géorisques

Les informations sur les risques auxquels ce bien est exposé sont disponibles sur le site Géorisques : www.georisques.gouv.fr

Ce site est protégé par hCaptcha Politique de confidentialité et Conditions d’utilisation s’appliquent.

En poursuivant votre navigation sans modifier vos paramètres, vous acceptez l'utilisation de cookies susceptibles de réaliser des statistiques de visite. Cliquez ici pour plus d'informations