Bénéficiez des services de nos partenaires locaux soigneusement sélectionnés
pour vous accompagner dans votre parcours d'achat immobilier

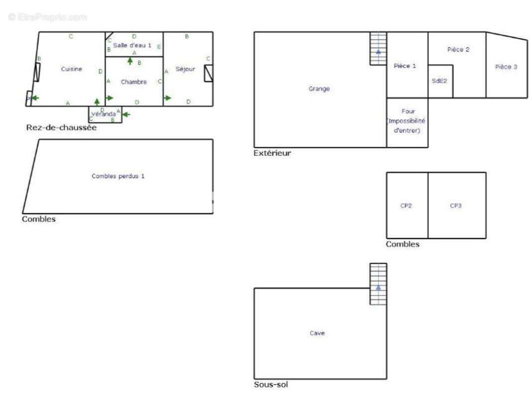
Maison 50 m² à Huisseau-Sur-Cosson

— Huisseau-Sur-Cosson 41350 —
119 900 €
50 m² / 292 m²
2 pièces
parking

Nos partenaires locaux
41350 - HUISSEAU-SUR-COSSON - QUARTIER RESIDENTIEL - 2 PIÈCES - 1 CHAMBRE - 50 m² - IDEAL POUR INVESTISSEMENT LOCATIF

efficity, l'agence qui estime votre bien en ligne, vous propose cette charmante maison située dans un quartier résidentiel prisé d'Huisseau-sur-Cosson.

En mauvais état général, cette propriété offre de belles perspectives d'aménagement et de rénovation pour en faire un véritable petit bijou. Orientée au sud, vous pourrez profiter d'une exposition ensoleillée tout au long de la journée dans un environnement calme et paisible.

D'une surface d'environ 48 m², cette maison de plain-pied dispose d'un séjour lumineux de 15 m². Les combles aménageables offrent un potentiel d'agrandissement non négligeable. De plus, une dépendance de 50 m² vous permettra de bénéficier d'un espace supplémentaire pour divers projets.

Vous disposerez de 292 m² de terrain, idéal pour profiter des beaux jours en extérieur. Deux places de stationnement extérieur sont également possibles.

Construite entre 1920 et 1944, cette maison dispose d'un toit en ardoise. Des travaux sont à prévoir pour redonner tout son charme à ce bien et en faire un véritable cocon douillet.

N'attendez plus pour visiter ce bien aux multiples possibilités et laissez libre cours à votre imagination pour en faire un lieu de vie chaleureux et accueillant. Contactez moi rapidement pour organiser une visite.
Les informations sur les risques auxquels ce bien est exposé sont disponibles sur le site Georisque : georisques. gouv. fr
Vincent Limas - EI - est Agent Commercial mandataire en immobilier, immatriculé au Registre Spécial des Agents Commerciaux du Tribunal de Commerce de Tours sous le n°879882322.
Siège social du mandant : effiCity, 48 avenue de Villiers - 75017 PARIS - Société par Actions Simplifiée, société au capital de 132 373,05 euros, immatriculée au RCS Paris 497 617 746 et titulaire de la Carte professionnelle CPI 75[Coordonnées masquées]02 025 - CCI Paris IDF - Caisse de Garantie : GALIAN Assurances 89 rue de la Boétie 75008 Paris
Voir plus

Référence: 203973
Honoraires à la charge du vendeur.
Barème des honoraires
DPE
A
B
C
D
E
F
G
GES
A
B
C
D
E
F
G
Maison à HUISSEAU-SUR-COSSON
Maison à HUISSEAU-SUR-COSSON
Maison à HUISSEAU-SUR-COSSON
Maison à HUISSEAU-SUR-COSSON
Maison à HUISSEAU-SUR-COSSON
Maison à HUISSEAU-SUR-COSSON
Maison à HUISSEAU-SUR-COSSON
Maison à HUISSEAU-SUR-COSSON
Maison à HUISSEAU-SUR-COSSON
Maison à HUISSEAU-SUR-COSSON
Maison à HUISSEAU-SUR-COSSON
Maison à HUISSEAU-SUR-COSSON
Maison à HUISSEAU-SUR-COSSON
Maison à HUISSEAU-SUR-COSSON
Maison à HUISSEAU-SUR-COSSON
Maison à HUISSEAU-SUR-COSSON
Maison à HUISSEAU-SUR-COSSON
Maison à HUISSEAU-SUR-COSSON
Maison à HUISSEAU-SUR-COSSON
Maison à HUISSEAU-SUR-COSSON
Maison à HUISSEAU-SUR-COSSON
Géorisques

Les informations sur les risques auxquels ce bien est exposé sont disponibles sur le site Géorisques : www.georisques.gouv.fr

Ce site est protégé par hCaptcha Politique de confidentialité et Conditions d’utilisation s’appliquent.