Bénéficiez des services de nos partenaires locaux soigneusement sélectionnés
pour vous accompagner dans votre parcours d'achat immobilier

Terrain 332 m² à Mallemort

— Mallemort 13370 —
148 000 €
332 m²

Nos partenaires locaux
Situé sur un emplacement privilégié à 400m à pied du centre de Mallemort, au 133 Avenue de Craponne, terrain plat et constructible orienté Sud d'une surface de 332 m². Commodités, transports et établissements scolaires à proximité.

Terrain vendu :
- Entièrement viabilisé à neuf (Eau AEP - EDF - tout à l'égout EU / EV - PTT) ;
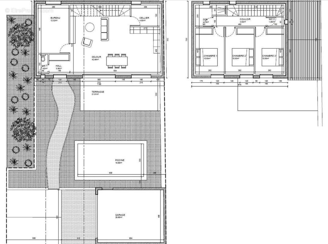
- Avec un permis de construire accepté réalisé par un architecte : maison individuelle T5 en R + 1 de 106.75 m², garage de 28.9 m², terrasse de 21.81 m², piscine et deux places de stationnements devant le garage. Permis modifiable ;
- LIBRE CONSTRUCTEUR ;
- Avec chemin d'accès, espace vert et local poubelle créés à neuf (communs pour le lotissement de 3 lots).

PLU zone UB : L'emprise au sol totale des constructions est limitée à 40% de la superficie du terrain, la hauteur maximale des constructions est limitée à 7 m à l'égout de la toiture (1 étage), et la hauteur maximale des annexes est limitée à 3 mètres à l'égout et 5 m au faitage. Piscinable. Les espaces non imperméabilisés (traités et plantés) ou éco aménageables doivent représenter au moins 30% de la superficie du terrain.

Terrain lot n°1 résultant de la création du 'Lotissement Les jardins de Gaia' (3 terrains constructibles à vendre, voir ma page), suite au permis d'aménager PA01305323P0002 accordé.

Dossier sur demande. N'hésitez pas à me contacter.

Les informations sur les risques auxquels ce bien est exposé sont disponibles sur le site Géorisques : www.georisques.gouv.fr
Prix de vente : 148 000 ¤
Honoraires charge vendeur

Contactez votre conseiller SAFTI : Mathias SOULIER, Tél. : [Coordonnées masquées], E-mail : [Coordonnées masquées] - EI - Agent commercial immatriculé au RSAC de AIX EN PROVINCE sous le numéro 879663607.Informations LOI ALUR : Honoraires charge vendeur. (gedeon_26118_31817763)
Voir plus

Référence: 1321227
Honoraires à la charge du vendeur.
Barème des honoraires
Photo 1 - Terrain à MALLEMORT
Photo 1
Photo 2 - Terrain à MALLEMORT
Photo 2
Photo 3 - Terrain à MALLEMORT
Photo 3
Photo 4 - Terrain à MALLEMORT
Photo 4
Photo 5 - Terrain à MALLEMORT
Photo 5
Photo 6 - Terrain à MALLEMORT
Photo 6
Photo 7 - Terrain à MALLEMORT
Photo 7
Géorisques

Les informations sur les risques auxquels ce bien est exposé sont disponibles sur le site Géorisques : www.georisques.gouv.fr

Ce site est protégé par hCaptcha Politique de confidentialité et Conditions d’utilisation s’appliquent.

En poursuivant votre navigation sans modifier vos paramètres, vous acceptez l'utilisation de cookies susceptibles de réaliser des statistiques de visite. Cliquez ici pour plus d'informations