Bénéficiez des services de nos partenaires locaux soigneusement sélectionnés
pour vous accompagner dans votre parcours d'achat immobilier

Commerce 131 m² à Marseille-1e

— Marseille-1e 13001 —
398 000 €
131 m²
3 pièces
balcon/terrasse

Nos partenaires locaux
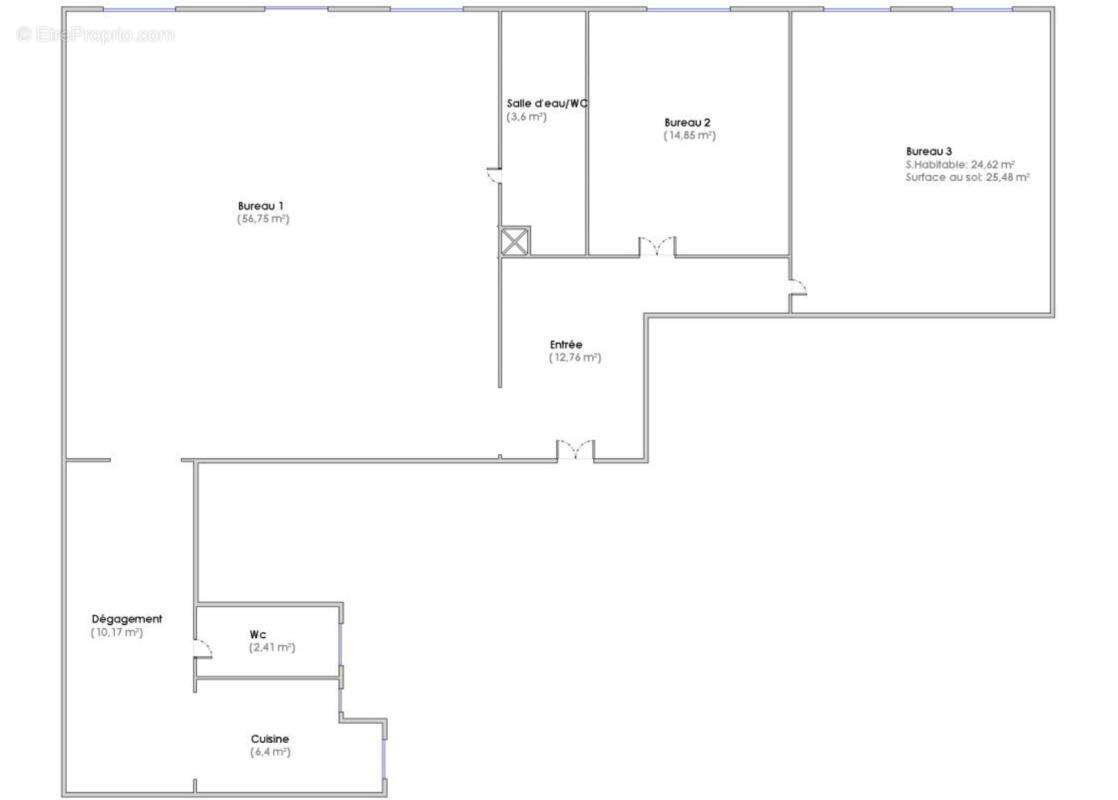
13001 – MARSEILLE – RUE BRETEUIL – BUREAU DE 131 m²

Efficity, l'agence qui estime votre bien en ligne, vous propose ce superbe bureau lumineux idéalement situé au cœur de Marseille, dans le très recherché quartier de la rue Breteuil.

D'une surface généreuse de 131,56 m², ce bureau en excellent état général offre un cadre de travail confortable et parfaitement adapté à toute activité professionnelle. Son agencement en plain-pied assure une circulation fluide et une organisation optimale des espaces.

Situé au dernier étage d'un immeuble de 4 étages avec ascenseur, il bénéficie d'une exposition idéale, apportant une belle luminosité naturelle tout au long de la journée, ainsi qu'une vue dégagée sur les toits de Marseille, un véritable atout pour un environnement de travail agréable et inspirant.

Une opportunité rare dans ce secteur prisé, à ne pas manquer.
Contactez-nous dès maintenant pour organiser une visite et découvrir tout le potentiel de ce bien.

Mickael – EffiCity Immobilier
Téléphone : [Coordonnées masquées]
Email : à [Coordonnées masquées]
Efficity Marseille St Giniez Immobilier & Estimation
Les informations sur les risques auxquels ce bien est exposé sont disponibles sur le site Georisque : georisques. gouv. fr
Lucas Da Silva - EI - est Agent Commercial mandataire en immobilier, immatriculé au Registre Spécial des Agents Commerciaux du Tribunal de Commerce de Marseille sous le n°840954622.
Siège social du mandant : effiCity, 48 avenue de Villiers - 75017 PARIS - Société par Actions Simplifiée, société au capital de 132 373,05 euros, immatriculée au RCS Paris 497 617 746 et titulaire de la Carte professionnelle CPI 75[Coordonnées masquées]02 025 - CCI Paris IDF - Caisse de Garantie : GALIAN Assurances 89 rue de la Boétie 75008 Paris
Voir plus

Référence: 205410
Bien en copropriété. Nombre de lots : 18. Charges de copropriété : 375 €.
Honoraires d'agence de 5.29% à la charge de l'acquéreur
Barème des honoraires
DPE
A
B
C
D
E
F
G
GES
A
B
C
D
E
F
G
Commerce à MARSEILLE-1E
Commerce à MARSEILLE-1E
Commerce à MARSEILLE-1E
Commerce à MARSEILLE-1E
Commerce à MARSEILLE-1E
Géorisques

Les informations sur les risques auxquels ce bien est exposé sont disponibles sur le site Géorisques : www.georisques.gouv.fr

Ce site est protégé par hCaptcha Politique de confidentialité et Conditions d’utilisation s’appliquent.

En poursuivant votre navigation sans modifier vos paramètres, vous acceptez l'utilisation de cookies susceptibles de réaliser des statistiques de visite. Cliquez ici pour plus d'informations