Maison de 100m² livrée Hors d'eau à SAINT MARTIN LA SAUVETE

— Saint-Martin-La-Sauvete 42260 —
85 000 €
100 m² / 3 050 m²
4 pièces
jardin

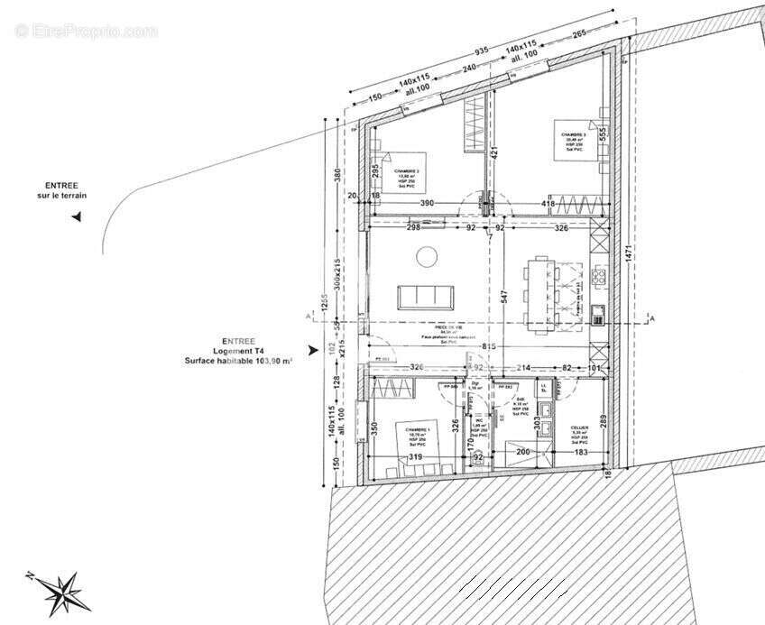
EXCLUSIVITÉ - Ancienne grange réhabilité en maison hors d 'eau. A VENDRE DANS VOTRE AGENCE GUY HOQUET BOEN SUR LIGNON Beau Potentiel de Transformation et Terrain Spacieux. Venez découvrir cette grange en cours de rénovation, offrant un potentiel exceptionnel pour les amoureux des projets sur mesure. Un permis de construire est déjà accordé pour la transformation en logement de 100 m², comprenant trois chambres, un cellier, une salle d'eau, un WC, et une grande pièce de vie pour une future habitation qui allie charme et fonctionnalité. Vous pouvez laisser libre votre imagination si vous êtes bricoleur. Possibilité de créer un espace de vie unique dans un cadre calme et spacieux, avec toutes les autorisations en main pour démarrer rapidement votre projet de rénovation. Ce bien sera livré hors d'eau. (murs créés plus qu'à mettre vos fenêtres, toit réalisé avec sa zinguerie). Le bien est implanté sur un terrain de 3050 m², offrant un espace idéal pour un jardin, une terrasse ou encore des aménagements extérieurs personnalisés. On trouve un accès à l'autoroute A89 (direction Lyon - Clermont Ferrand et Saint Etienne) à 10 km. Pour vos loisirs, vous pourrez compter sur une bibliothèque et un tennis à quelques minutes à peine. Un restaurant, une boulangerie et une épicerie sont également accessibles. Elle est à vendre pour la somme de 85 000 euros. Les frais d'agence sont à la charge du vendeur. Les informations sur les risques auxquels ce bien est exposé sont disponibles sur le site Géorisques : www.georisques.gouv.fr. Votre agence immobilière Guy Hoquet BOEN-SUR-LIGNON vous invite à découvrir toutes les possibilités de cette grange à vendre en prenant RDV avec l'un de nos conseillers en immobilier.
Voir plus

Référence: 7775
Honoraires à la charge du vendeur.
Barème des honoraires
Maison à SAINT-MARTIN-LA-SAUVETE
Maison à SAINT-MARTIN-LA-SAUVETE
Maison à SAINT-MARTIN-LA-SAUVETE
Maison à SAINT-MARTIN-LA-SAUVETE
Maison à SAINT-MARTIN-LA-SAUVETE
Maison à SAINT-MARTIN-LA-SAUVETE
Maison à SAINT-MARTIN-LA-SAUVETE
Maison à SAINT-MARTIN-LA-SAUVETE
Géorisques

Les informations sur les risques auxquels ce bien est exposé sont disponibles sur le site Géorisques : www.georisques.gouv.fr

Ce site est protégé par hCaptcha Politique de confidentialité et Conditions d’utilisation s’appliquent.

En poursuivant votre navigation sans modifier vos paramètres, vous acceptez l'utilisation de cookies susceptibles de réaliser des statistiques de visite. Cliquez ici pour plus d'informations