Magnifique Villa, grand garage, piscine, 8393m2 de terrain, VUE PYRENEES

— Aurignac 31420 —
259 700 €
155 m² / 8 393 m²
7 pièces
balcon/terrassejardinpiscine

Contact : Kossel IMMO, Karl et Sabine de D-HABITAT [Coordonnées masquées] (carte pro CPI 30[Coordonnées masquées]31 733) - [Coordonnées masquées]
Cette Belle Propriété est composée d'une Magnifique Villa rénovée avec goût et avec beaucoup de confort, de grandes dépendances pratiques, d'une piscine, d'un beau terrain de 8393m2, le tout avec une Vue Magique sur les Pyrénées.
Elle est idéale pour une famille nombreuse (5 chambres), un artisan (dépendances adaptées) ou quelqu'un qui souhaite avoir deux trois petits animaux au pré (env.4500m2 de pré sur le terrain).
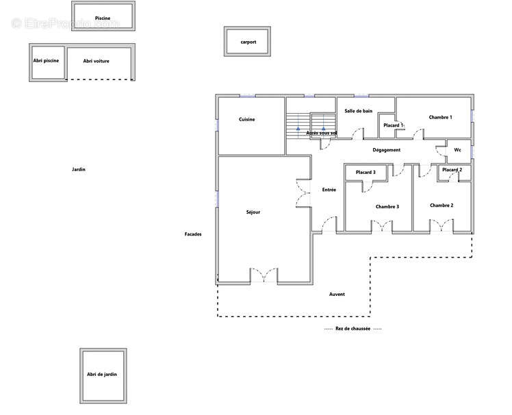
La Villa: D’une superficie de 155m2 habitables, cette Villa tout confort a été rénovée avec goût et comprend en rez-de-chaussée : une entrée desservant un grand séjour (env.30m2) donnant sur une terrasse, avec insert à bois et vue sur les Pyrénées, une cuisine équipée, trois chambres toutes avec placards/dressing, une salle de bain, des toilettes séparées. A l’étage où on accède par un escalier en bois, nous trouvons deux chambres, une salle d’eau avec toilettes ainsi que deux grands greniers servant de débarras. Une terrasse couverte et une terrasse non couverte, toutes deux avec vue Pyrénées. En sous-sol, un grand espace (voir dépendances). Plans disponibles en fin des photos sur notre site.
Les dépendances : Un carport ouvert pour abriter une voiture, Un grand garage d’environ 40m2 fermé sur trois côtés, un local piscine, un abri jardin. En sous-sol de la maison, environ 130m2 de surface comprenant un garage, un atelier, un espace buanderie, une chaufferie, une cave.
Le terrain : D’une superficie totale de 8393m2, le terrain est arboré et fleuri, avec de nombreux espaces où se poser en toute tranquillité. Une serre de 8X4m sur le terrain, permettant de faire pousser des légumes d’été et d’hiver ! Une piscine sans vis-à-vis (rénovée en 2024) agrémente la propriété, indispensable pour se rafraichir lorsqu’il fait chaud !
Technique : Chauffage central pompe à chaleur ou fioul + insert à bois (installation récente) dans la pièce de vie principale / Double vitrage, moustiquaires, volets roulants électriques / Fosse septique / Diags : pas d’amiante, pas de plomb, pas de termites, DPE C / Taxe Foncière 1257 euros / Exemple Hauteurs de plafond : cuisine 2.44m, grand séjour 2.5m (les photos grand angle donnent l'impression de plafond bas, mais non !).
Situation : Dans un petit village, à 15min de Boulogne Sur Gesse.
Suivez-nous sur https://www.facebook.com/Simorre.immo et Mandataires Karl-Kossel (l-agence-immobiliere.fr) - Annonce rédigée et publiée par un Agent Mandataire -
Voir plus

Référence: 219422
Honoraires d'agence de 3.88% à la charge de l'acquéreur
Barème des honoraires
DPE
A
B
C
D
E
F
G
GES
A
B
C
D
E
F
G
Maison à AURIGNAC
Maison à AURIGNAC
Maison à AURIGNAC
Maison à AURIGNAC
Maison à AURIGNAC
Maison à AURIGNAC
Maison à AURIGNAC
Maison à AURIGNAC
Maison à AURIGNAC
Maison à AURIGNAC
Maison à AURIGNAC
Maison à AURIGNAC
Maison à AURIGNAC
Maison à AURIGNAC
Maison à AURIGNAC
Maison à AURIGNAC
Maison à AURIGNAC
Maison à AURIGNAC
Maison à AURIGNAC
Maison à AURIGNAC
Maison à AURIGNAC
Maison à AURIGNAC
Maison à AURIGNAC
Maison à AURIGNAC
Maison à AURIGNAC
Maison à AURIGNAC
Maison à AURIGNAC
Maison à AURIGNAC
Maison à AURIGNAC
Maison à AURIGNAC
Maison à AURIGNAC
Maison à AURIGNAC
Maison à AURIGNAC
Maison à AURIGNAC
Maison à AURIGNAC
Maison à AURIGNAC
Maison à AURIGNAC
Maison à AURIGNAC
Maison à AURIGNAC
Maison à AURIGNAC
Maison à AURIGNAC
Maison à AURIGNAC
Maison à AURIGNAC
Maison à AURIGNAC
Maison à AURIGNAC
Maison à AURIGNAC
Maison à AURIGNAC
Maison à AURIGNAC
Maison à AURIGNAC
Géorisques

Les informations sur les risques auxquels ce bien est exposé sont disponibles sur le site Géorisques : www.georisques.gouv.fr

Ce site est protégé par hCaptcha Politique de confidentialité et Conditions d’utilisation s’appliquent.

En poursuivant votre navigation sans modifier vos paramètres, vous acceptez l'utilisation de cookies susceptibles de réaliser des statistiques de visite. Cliquez ici pour plus d'informations