Bénéficiez des services de nos partenaires locaux soigneusement sélectionnés
pour vous accompagner dans votre parcours d'achat immobilier

Appartement 61 m² à Saint-Martin-D'heres

— Saint-Martin-D'heres 38400 —
133 000 €
61 m²
4 pièces

Nos partenaires locaux
T3 lumineux avec loggia – Calme, traversant & fort potentiel

Situé dans un quartier calme, à proximité des centres de santé, du campus universitaire et des centres commerciaux, cet appartement offre un emplacement pratique et recherché.

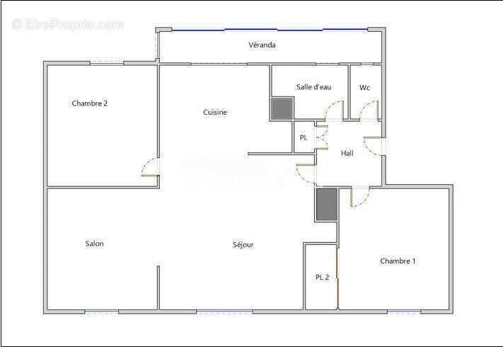
D'une surface d'environ 61,10 m², cet ancien T4 transformé en T3 est traversant et bénéficie d'une belle luminosité.
Il donne exclusivement côté cour et parc, sans vis-à-vis proche, pour un cadre de vie paisible.
La création d'une troisième chambre est facilement envisageable.

Il se compose d'un séjour agréable, d'une cuisine ouverte aménagée et équipée, de deux chambres, d'une salle d'eau et de WC indépendants.

Les atouts :
- Loggia
- Cave
- Stationnement facile
- Environnement calme et verdoyant

Actuellement loué meublé, le bien peut être libéré dès janvier prochain ou conservé pour profiter d'un excellent rendement locatif.

Un bien polyvalent, idéal résidence principale ou investissement.

Contactez moi dès maintenant pour organiser une visite.
Laurent Figueiredo [Coordonnées masquées], [Coordonnées masquées]
Agent commercial, RSAC 941 139 685 de Grenoble. Honoraires charge vendeur, plus d'informations sur notre site lifehome.fr.

Confrères agents immobiliers : je coopère, n'hésitez pas à me contacter.

Honoraires à la charge du vendeur. Dans une copropriété de 83 lots. Quote-part moyenne du budget prévisionnel 1 900 €/an. Aucune procédure n'est en cours. Classe énergie D, Classe climat C. Date de réalisation du DPE : 31-05-2018. Les informations sur les risques auxquels ce bien est exposé sont disponibles sur le site Géorisques : georisques.gouv.fr.

Votre conseiller lifehome IMMO : Laurent FIGUEIREDO
Agent commercial (Entreprise individuelle)
RSAC 941139685
RCP Galian.
Chers confrères professionnels de l'immobilier, vous avez des clients ? Contactez-moi, je coopère.
Voir plus

Référence: VA3158-LIFEHOME
Bien en copropriété. Nombre de lots : 83. Charges de copropriété : 1900 €.
Honoraires à la charge du vendeur.
Barème des honoraires
DPE
A
B
C
D
E
F
G
GES
A
B
C
D
E
F
G
Appartement à SAINT-MARTIN-D'HERES
Appartement à SAINT-MARTIN-D'HERES
Appartement à SAINT-MARTIN-D'HERES
Appartement à SAINT-MARTIN-D'HERES
Appartement à SAINT-MARTIN-D'HERES
Appartement à SAINT-MARTIN-D'HERES
Appartement à SAINT-MARTIN-D'HERES
Appartement à SAINT-MARTIN-D'HERES
Appartement à SAINT-MARTIN-D'HERES
Géorisques

Les informations sur les risques auxquels ce bien est exposé sont disponibles sur le site Géorisques : www.georisques.gouv.fr

Ce site est protégé par hCaptcha Politique de confidentialité et Conditions d’utilisation s’appliquent.

En poursuivant votre navigation sans modifier vos paramètres, vous acceptez l'utilisation de cookies susceptibles de réaliser des statistiques de visite. Cliquez ici pour plus d'informations