Bénéficiez des services de nos partenaires locaux soigneusement sélectionnés
pour vous accompagner dans votre parcours d'achat immobilier

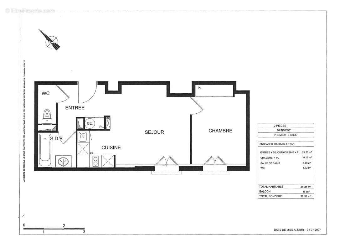
Appartement 38 m² à Saint-Fargeau-Ponthierry

— Saint-Fargeau-Ponthierry 77310 —
119 500 €
38 m²
2 pièces
parking

Nos partenaires locaux
Idéal investisseur – Forom® Immobilier

Forom Immobilier vous propose en exclusivité cet appartement T2 d'une surface d'environ 38,31 m² au 1er étage avec ascenseur situé dans une résidence sécurisée dans le centre-ville de Saint Fargeau Ponthierry.

Le logement dispose d'un séjour, une cuisine ouverte équipée, une chambre avec placard, une salle de bains, un WC et une place de parking en sous-sol.

• Loyer mensuel : 677€ / mois soit 622€ HC + 55€ charges locatives
• Rentabilité : 6,80% brute
• Charges de copropriété : 106€ / mois
• Taxe foncière : 1 151€ / an (dont 201€ de taxe d'ordure ménagère remboursée par le locataire)
• Date de fin de bail : 11/08/2029
• DPE : D
• Nombre de lots : 128
• Honoraires charge vendeur

Honoraires à la charge du vendeur. Dans une copropriété de 128 lots. Aucune procédure n'est en cours. Classe énergie D, Classe climat A Montant moyen estimé des dépenses annuelles d'énergie pour un usage standard, établi à partir des prix de l'énergie de l'année 2021 : entre 540.00 et 780.00 €. Les informations sur les risques auxquels ce bien est exposé sont disponibles sur le site Géorisques : georisques.gouv.fr.
Voir plus

Référence: 3992-FOROM
Bien en copropriété. Nombre de lots : 128.
Honoraires à la charge du vendeur.
Barème des honoraires
DPE
A
B
C
D
E
F
G
GES
A
B
C
D
E
F
G
Appartement à SAINT-FARGEAU-PONTHIERRY
Appartement à SAINT-FARGEAU-PONTHIERRY
Appartement à SAINT-FARGEAU-PONTHIERRY
Géorisques

Les informations sur les risques auxquels ce bien est exposé sont disponibles sur le site Géorisques : www.georisques.gouv.fr

Ce site est protégé par hCaptcha Politique de confidentialité et Conditions d’utilisation s’appliquent.

En poursuivant votre navigation sans modifier vos paramètres, vous acceptez l'utilisation de cookies susceptibles de réaliser des statistiques de visite. Cliquez ici pour plus d'informations