Bénéficiez des services de nos partenaires locaux soigneusement sélectionnés
pour vous accompagner dans votre parcours d'achat immobilier

Maison 186 m² à Pecquencourt

— Pecquencourt 59146 —
285 000 €
186 m² / 655 m²
7 pièces
balcon/terrassejardin

Nos partenaires locaux
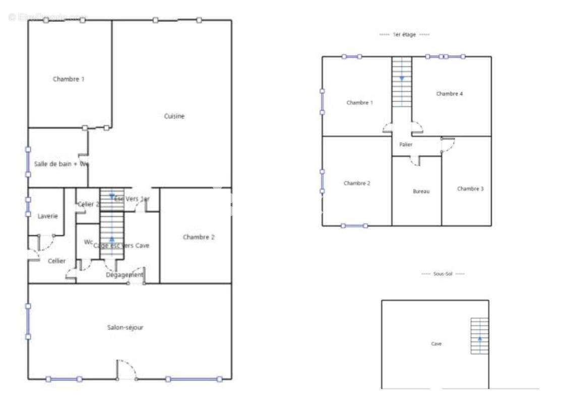
Maison - 186 m² - 7 pièces - 1 garage - 1 cave - Terrasse et jardin.

Bienvenue chez Audrey Falempe et Efficity, l'Agence qui estime votre bien en ligne, vous présente cette belle maison individuelle rénovée de 186 m² pouvant séduire une famille, des personnes cherchant un plain-pied ainsi qu'une profession libérale par la disposition de ses pièces notamment au RDC.

La porte d'entrée dessert :
* Un vaste salon / séjour (37 m²) exposé Sud/Est,
* Une buanderie et cellier (12 m²),
* Un WC séparé,
* Un bureau ou dressing (9,7 m²),
* Une vaste cuisine équipée récente exposée Nord/Ouest (32 m²) avec sa grande baie vitrée vous offrant une vue sur le jardin,
* Une salle de bain baignée de lumière (10,7 m²) avec douche à l'italienne, baignoire et WC suspendu,
* Une vaste chambre (16 m²) ou un bureau avec vue sur le jardin.
* L'accès à la cave (15 m²)

Au premier étage, un palier dessert la partie nuit avec un beau parquet pin et ouvre sur :
* Une chambre (13 m²) exposée Sud/Ouest,
* Une deuxième chambre (16 m²) exposée Nord/Ouest,
* Une troisième chambre (13,6 m²) exposée Sud/Ouest,
* Une quatrième chambre (10 m²) exposée Sud/Est,
* Un bureau (8,1 m²) exposé Sud/Est,

L'extérieur vous offre une une terrasse de 56 m² sur un vaste jardin de 300 m² clos ainsi qu'un garage de 18 m².

Les +++ de ce bien :

* On pose ses meubles !
* Possibilité de profession libérale
* Maison pouvant séduire des personnes recherchant un plain-pied
* Cuisine récente via cuisiniste
* Salle de bain récente
* DPE D
* Huisseries double vitrage
* Cave
* Garage
* Fibre optique
* VMC

Prix de vente : 285 000 Euros, honoraires d'agence inclus.

Les honoraires sont à la charge du vendeur.

Contacter Audrey Falempe au [Coordonnées masquées] pour plus d'informations et organiser une visite.
Les informations sur les risques auxquels ce bien est exposé sont disponibles sur le site Georisque : georisques. gouv. fr
Audrey Falempe - EI - est Agent Commercial mandataire en immobilier, immatriculé au Registre Spécial des Agents Commerciaux du Tribunal de Commerce de Lille sous le n°922711999.
Siège social du mandant : effiCity, 48 avenue de Villiers - 75017 PARIS - Société par Actions Simplifiée, société au capital de 132 373,05 euros, immatriculée au RCS Paris 497 617 746 et titulaire de la Carte professionnelle CPI 75[Coordonnées masquées]02 025 - CCI Paris IDF - Caisse de Garantie : GALIAN Assurances 89 rue de la Boétie 75008 Paris
Voir plus

Référence: 206201
Honoraires à la charge du vendeur.
Barème des honoraires
DPE
A
B
C
D
E
F
G
GES
A
B
C
D
E
F
G
Maison à PECQUENCOURT
Maison à PECQUENCOURT
Maison à PECQUENCOURT
Maison à PECQUENCOURT
Maison à PECQUENCOURT
Maison à PECQUENCOURT
Maison à PECQUENCOURT
Maison à PECQUENCOURT
Géorisques

Les informations sur les risques auxquels ce bien est exposé sont disponibles sur le site Géorisques : www.georisques.gouv.fr

Ce site est protégé par hCaptcha Politique de confidentialité et Conditions d’utilisation s’appliquent.

En poursuivant votre navigation sans modifier vos paramètres, vous acceptez l'utilisation de cookies susceptibles de réaliser des statistiques de visite. Cliquez ici pour plus d'informations