Bénéficiez des services de nos partenaires locaux soigneusement sélectionnés
pour vous accompagner dans votre parcours d'achat immobilier

Maison de charme entièrement rénovée avec terrasses et garage

— Vichy 03200 —
546 000 €
170 m² / 120 m²
8 pièces
parkingbalcon/terrassejardin

Nos partenaires locaux
Idéalement située à Vichy à quelques pas du parc des sources et des bords d'Allier, cette charmante maison des années 1930, entièrement rénovée avec goût, offre un cadre de vie rare, alliant emplacement privilégié, volumes généreux et prestations de qualité.

Un bien coup de cœur, pensé pour le confort et la convivialité.

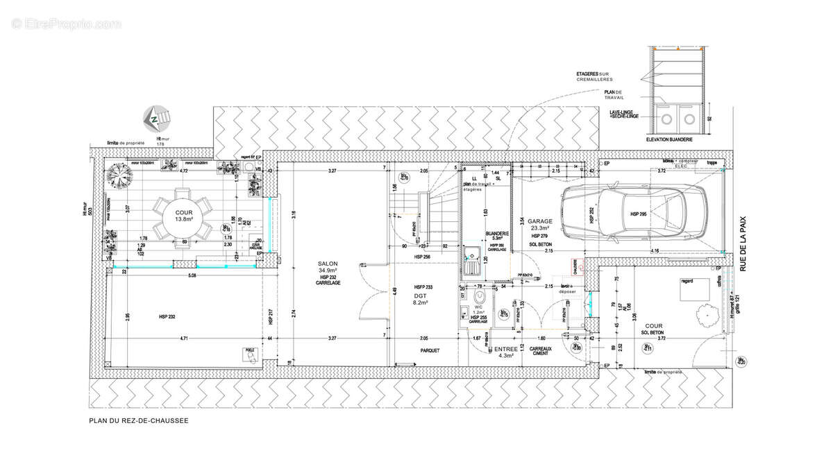
Rez-de-chaussée :
Vous découvrirez un garage avec porte motorisée, une buanderie, . Un couloir d’entrée accessible depuis le garage ou la cour côté rue dessert un WC séparé avec lave-mains et un salon de 34,9 m2, à aménager selon vos envies, agrémenté d’un poêle à bois et ouvert sur une cour intérieure de 13,8 m2, idéale pour un espace détente à l’abri des regards.

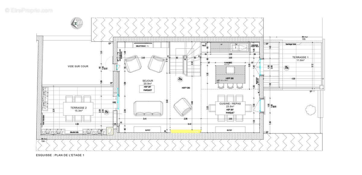
Premier étage :
Véritable cœur de la maison, ce niveau accueille une magnifique pièce de vie de près de 50 m2, baignée de lumière, avec une cuisine ouverte entièrement équipée, réalisée avec des matériaux et prestations haut de gamme, ainsi qu’une cave à vin. Cet espace s’ouvre sur deux superbes terrasses :
- une terrasse côté sud de 11,6 m2, accessible depuis la cuisine,
- une seconde terrasse de plus de 15 m2, côté salon TV, véritable prolongement de la pièce de vie grâce à de larges baies vitrées à galandage.

Deuxième étage :
Vous y trouverez une belle suite parentale de 23,6 m2 avec dressing, une seconde chambre de 12,2 m2, une spacieuse salle de bains de 9,1 m2 avec douche et baignoire, ainsi qu’un WC séparé.

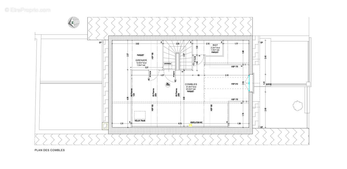
Troisième étage :
Les combles, d’une surface au sol de plus de 45 m2, restent à aménager et offrent un fort potentiel : chambres supplémentaires, suite parentale, bureau ou espace loisirs selon vos besoins.

Confort & prestations
- Chauffage et eau chaude par chaudière gaz à condensation (2022)
- Fenêtres double vitrage
- Poêle à bois en complément
- Maison entièrement rénovée, aucun gros travaux à prévoir

Taxe foncière : 2 500 €

DPE Classe Energie : D GES : D Consommation énergie primaire : 224 kWh/m2/an. Consommation énergie finale : 219 kWh/m2/an. Montant estimé des dépenses annuelles d’énergie pour un usage standard : entre 2 820 € et 3880 € par an, prix moyens des énergies indexés au 1er janvier 2023 (abonnements compris)

Réf : T2025-48
Les informations sur les risques auxquels ce bien est exposé sont disponibles sur le site Géorisques : https://www.georisques.gouv.fr
Voir plus

Honoraires d'agence de 3.62% à la charge de l'acquéreur
DPE
A
B
C
D
E
F
G
GES
A
B
C
D
E
F
G
Maison à VICHY
Maison à VICHY
Maison à VICHY
Maison à VICHY
Maison à VICHY
Maison à VICHY
Maison à VICHY
Maison à VICHY
Maison à VICHY
Maison à VICHY
Maison à VICHY
Maison à VICHY
Maison à VICHY
Maison à VICHY
Maison à VICHY
Maison à VICHY
Maison à VICHY
Maison à VICHY
Maison à VICHY
Maison à VICHY
Maison à VICHY
Maison à VICHY
Maison à VICHY
Maison à VICHY
Maison à VICHY
Maison à VICHY
Maison à VICHY
Maison à VICHY
Maison à VICHY
Géorisques

Les informations sur les risques auxquels ce bien est exposé sont disponibles sur le site Géorisques : www.georisques.gouv.fr

Ce site est protégé par hCaptcha Politique de confidentialité et Conditions d’utilisation s’appliquent.

En poursuivant votre navigation sans modifier vos paramètres, vous acceptez l'utilisation de cookies susceptibles de réaliser des statistiques de visite. Cliquez ici pour plus d'informations