Bénéficiez des services de nos partenaires locaux soigneusement sélectionnés
pour vous accompagner dans votre parcours d'achat immobilier

Appartement 2 pièces

— Creteil 94000 —
229 000 €
48 m²
2 pièces
parkingbalcon/terrasseascenseur

Nos partenaires locaux
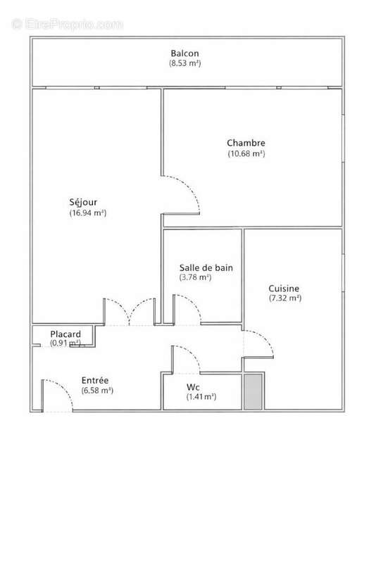
Au coeur d'un environnement pavillonnaire recherché, découvrez ce charmant 2 pièces sans vis-à-vis, situé au 2ème étage sur 6 avec ascenseur et avec un accès aux personnes à mobilité réduite d'une résidence de standing en pierre de taille, sécurisée et parfaitement entretenue. L'appartement se compose d'une entrée avec grand rangement, d'une cuisine séparée et aménagée, d'une salle de bains, de WC indépendants, ainsi que d'un séjour lumineux ouvrant sur un agréable balcon. La chambre, bénéficiant d'une double orientation, dispose également d'un accès direct au balcon par une porte-fenêtre, offrant une belle luminosité tout au long de la journée. Situé dans une rue calme, ce bien allie confort et praticité : métro à 10 minutes à pied, bus, écoles et commerces à moins de 5 minutes. Un appartement idéal pour un premier achat ou un investissement de qualité, dans un cadre de vie paisible et privilégié. Un box Au plaisir de vous le présenter !!! Copropriété de 68 lots - dont 22 lots habitation. Charges annuelles : 2360 euros. Isabelle Lorang (EI) Agent Commercial - Numéro RSAC : 102032042 - CRETEIL.
Voir plus

Référence: 1868
Bien en copropriété. Nombre de lots : 68. Charges de copropriété : 2360 €.
Honoraires à la charge du vendeur.
Barème des honoraires
DPE
A
B
C
D
E
F
G
GES
A
B
C
D
E
F
G
Appartement à CRETEIL
Appartement à CRETEIL
Appartement à CRETEIL
Appartement à CRETEIL
Appartement à CRETEIL
Appartement à CRETEIL
Appartement à CRETEIL
Appartement à CRETEIL
Appartement à CRETEIL
Appartement à CRETEIL
Appartement à CRETEIL
Géorisques

Les informations sur les risques auxquels ce bien est exposé sont disponibles sur le site Géorisques : www.georisques.gouv.fr

Ce site est protégé par hCaptcha Politique de confidentialité et Conditions d’utilisation s’appliquent.