Bénéficiez des services de nos partenaires locaux soigneusement sélectionnés
pour vous accompagner dans votre parcours d'achat immobilier

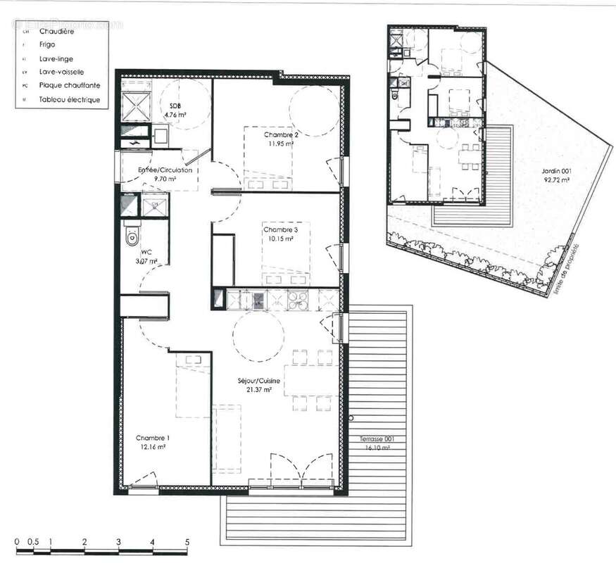
4 pièces de 79,17 m2 au Rez de Jardin

— Toulon 83000 —
292 906 €
73 m² / 93 m²
4 pièces
parkingbalcon/terrassejardinascenseur

Nos partenaires locaux
FRAIS DE NOTAIRE OFFERTS

Quartier du Las - Immeuble LE TOULONNAIS
Profitez du Prêt à Taux Zéro (PTZ) , d'une TVA réduite à 5,5 % et des taux bancaires favorables pour devenir propriétaire pour le prix d'un loyer.

Nous vous proposons un appartement de 4 pièces de 73,15 m2 au REZ DE JARDIN composé d’un séjour-cuisine donnant sur sa vaste terrasse de 16,10 m2 et sur un jardin exposée sud est d'environ 92,72 m2, de trois chambres, deux salles d’eau et d’un wc indépendant.

Parking possible en plus. Prix sur demande

Honoraires à charge Vendeur. Barème sur le site de l'agence.
Voir plus

Référence: 86738920
Barème des honoraires
Appartement à TOULON
Appartement à TOULON
Appartement à TOULON
Géorisques

Les informations sur les risques auxquels ce bien est exposé sont disponibles sur le site Géorisques : www.georisques.gouv.fr

Ce site est protégé par hCaptcha Politique de confidentialité et Conditions d’utilisation s’appliquent.

En poursuivant votre navigation sans modifier vos paramètres, vous acceptez l'utilisation de cookies susceptibles de réaliser des statistiques de visite. Cliquez ici pour plus d'informations