Maison clé en main 3 chambres grande piéces de vie

— Sainte-Cecile 85110 —
155 000 €
100 m² / 250 m²
5 pièces
jardin

À deux pas du centre de Sainte-Cécile, découvrez cette maison en pierre actuellement en cours de rénovation complète, vendue terminée et prête à vivre.
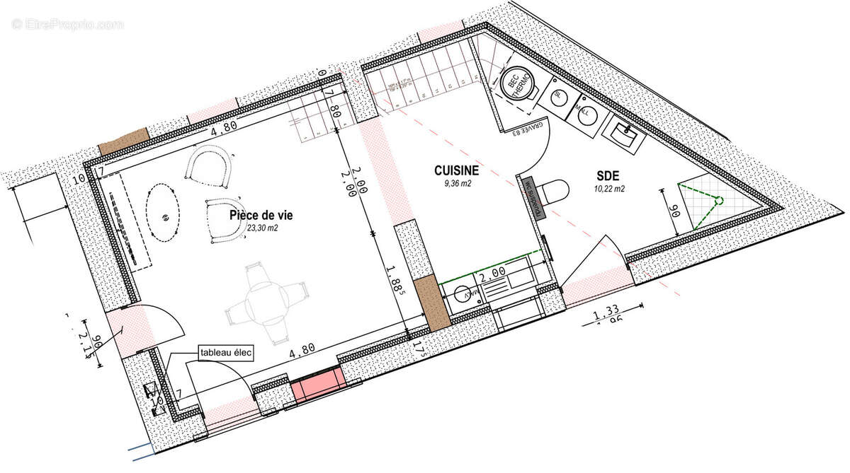
Environ 100 m2 habitables Belle pièce de vie lumineuse avec cuisine ouverte (~35 m2) 3 chambres à l’étage Salle de bain + 2 WC Cellier pratique
À l’extérieur : Cour / terrain d’environ 250 m2 Stationnement privatif
Rénovation complète (maison neuve dans de l’ancien) Possibilité de personnalisation selon l’avancement Commerces et écoles à pied
Idéal premier achat ou investissement locatif
Pour plus d’informations ou découvrir le projet et les plans, contactez-moi directement
Bien adapté :à une résidence principale (premier achat, sans travaux)à un investissement locatif (format T4 recherché, entretien limité) - Annonce rédigée et publiée par un Agent Mandataire -
Voir plus

Honoraires d'agence de 3.33% à la charge de l'acquéreur
Barème des honoraires
DPE
A
B
C
D
E
F
G
GES
A
B
C
D
E
F
G
Maison à SAINTE-CECILE
Maison à SAINTE-CECILE
Maison à SAINTE-CECILE
Géorisques

Les informations sur les risques auxquels ce bien est exposé sont disponibles sur le site Géorisques : www.georisques.gouv.fr

Ce site est protégé par hCaptcha Politique de confidentialité et Conditions d’utilisation s’appliquent.